Büros
ID D0521Provisionsfrei
Aktualisiert
Büroimmobilie - Neuss - D0521
41460, Neuss, Nordrhein-Westfalen
9 € - 10 € / m²
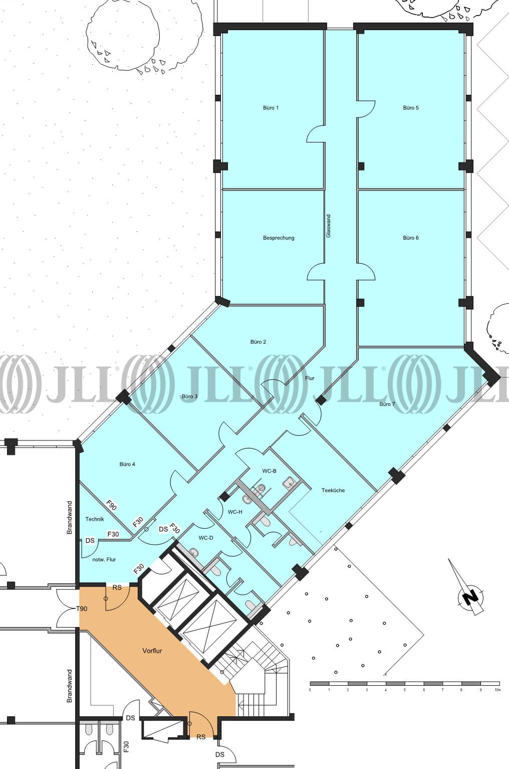
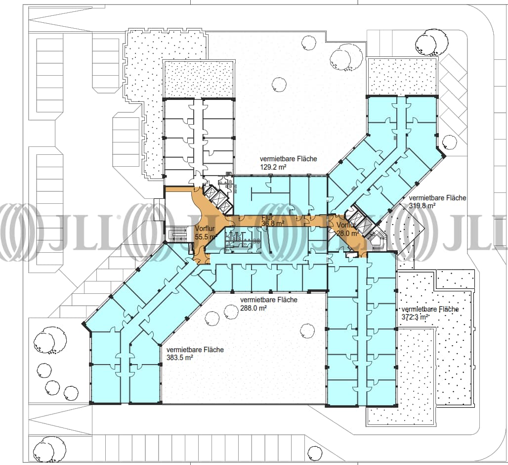
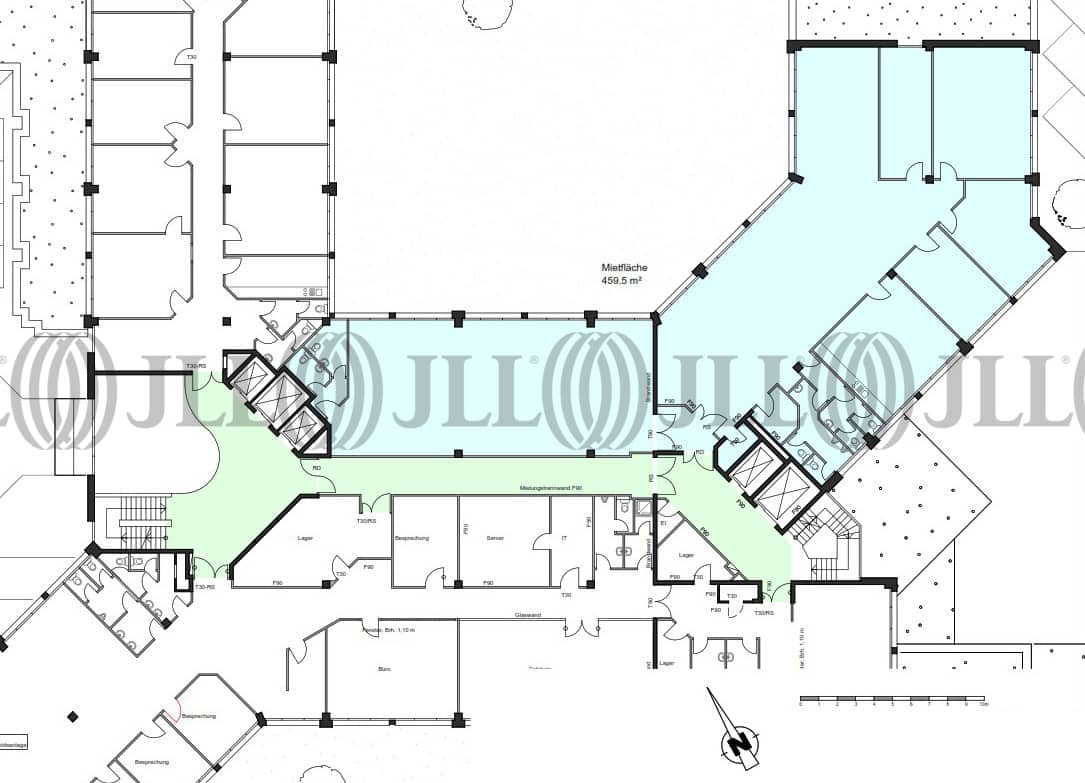
- Fläche129 - 2.509 m²
- VerfügbarkeitAuf Anfrage
- Objekt
- Ausstattung
- Lage und Verkehrsanbindung
- Grundrisse
- Exposé herunterladen
- Ihr Kontakt
- Anfrage senden
Objekt
Der 5-geschossige Rotklinkerbau liegt leicht zurückversetzt am Hammfelddamm. Das Gebäude ist sternförmig gegliedert und jede Büroetage wird durch zwei Treppenhäuser erschlossen. Der Eingangsbereich aus Glas ist architektonisch sehr reizvoll gestaltet und mit einer PKW-Vorfahrt versehen.
Zertifizierungen
Energieausweis
Für diese Liegenschaft liegt ein Bedarfsausweis vom 13.08.2025 vom Eigentümer/Vermieter vor. Die wesentlichen Energieträger der Liegenschaft sind Erdgas schwer, Strom. Der Endenergiebedarf Strom beträgt 47 kWh/(m²*a). Der Endenergiebedarf Wärme beträgt 179 kWh/(m²*a).Verfügbare Fläche
Lage und Verkehrsanbindung
Eine Mischung aus modernen Gewerbeparks und attraktivem Wohnumfeld prägen den Standort Neuss, in welchem sich bereits namhafte Unternehmen niedergelassen haben. Durch die Autobahnen A 46 / A 52 / A 57 und ein gutes ÖPNV-Netz ist eine optimale Anbindung nach Düsseldorf und in das Umland gegeben.
- Flughafen, Düsseldorf, Fahrzeit: 19 min
- Bundesautobahn, A 57, Fahrzeit: 5 min
- Bundesautobahn, A 46, Fahrzeit: 7 min
- Hauptbahnhof, Neuss, Fahrzeit: 7 min
- Straßenbahn/Tram, Langemarckstraße 709, Gehzeit: 7 min
- Bus, Stadthalle/Museum 830, 841, 849, 851, 852, 854, 858, 864, 869, 874, Gehzeit: 11 min
Ihr Kontakt

Anna-Louisa Kratochvil
Ihr Kontakt











