Büros
ID D0518Büroimmobilie - Neuss - D0518
41460, Neuss, Nordrhein-Westfalen
Provisionspflichtig: bei Anmietung 3 Netto-Monatsmieten zzgl. gesetzlicher Umsatzsteuer.** der Wert kann je nach Vertragslaufzeit variieren.
Kontaktieren Sie uns für den Preis
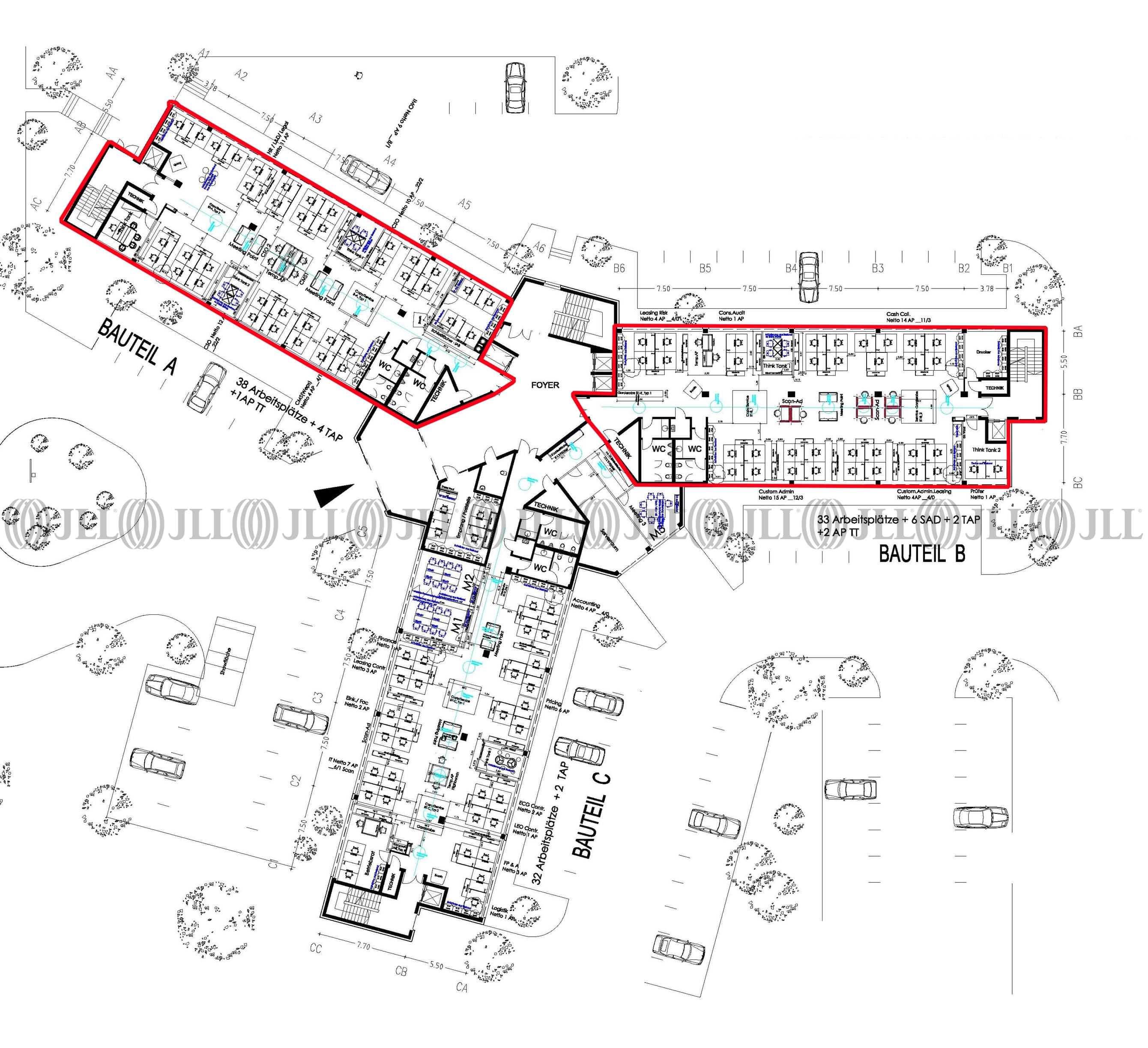
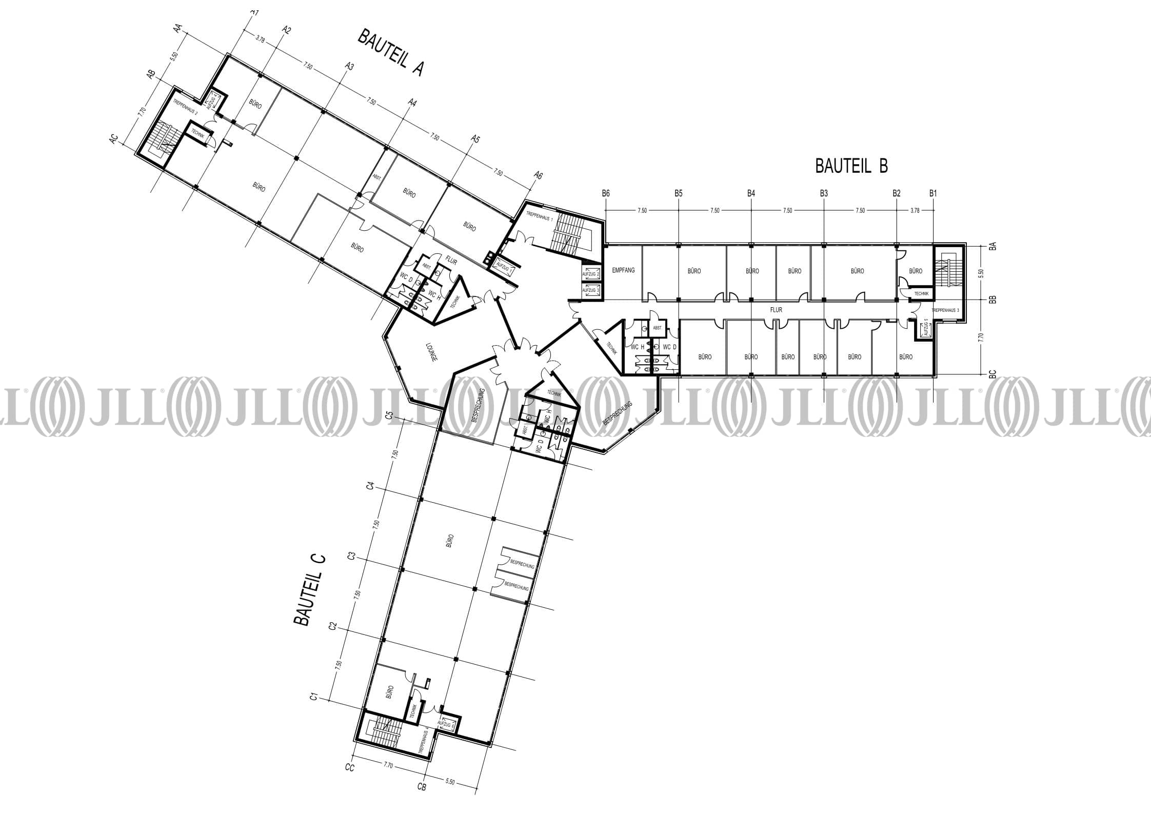
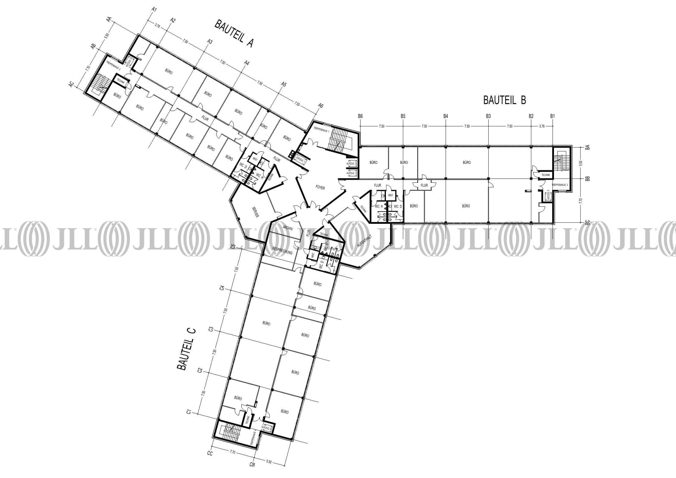
- Fläche555 - 5.613 m²
- VerfügbarkeitSofort
- Objekt
- Ausstattung
- Lage und Verkehrsanbindung
- Grundrisse
- Exposé herunterladen
- Ihr Kontakt
- Anfrage senden
Objekt
Bei dieser Liegenschaft handelt es sich um ein 6-geschossiges Büro- und Verwaltungsgebäude mit einer Granitfassade. Die Büroflächen verfügen u. a. über nachfolgende Ausstattungsmerkmale.
Zertifizierungen
Energieausweis
Für diese Liegenschaft liegt ein Bedarfsausweis vom 25.02.2025 vom Eigentümer/Vermieter vor. Die wesentlichen Energieträger der Liegenschaft sind Erdgas schwer, Strom. Der Endenergiebedarf Strom beträgt 192 kWh/(m²*a). Der Endenergiebedarf Wärme beträgt 21.5 kWh/(m²*a).Verfügbare Fläche
Lage und Verkehrsanbindung
Eine Mischung aus modernen Gewerbeparks und attraktivem Wohnumfeld prägen den Standort Neuss, in welchem sich bereits namhafte Unternehmen niedergelassen haben. Durch die Autobahnen A 46 / A 52 / A 57 und ein gutes ÖPNV-Netz ist eine optimale Anbindung nach Düsseldorf und in das Umland gegeben.
- Flughafen, Düsseldorf, Fahrzeit: 18 min
- Bundesautobahn, A 57, Fahrzeit: 4 min
- Bundesautobahn, A 52, Fahrzeit: 7 min
- Hauptbahnhof, Neuss, Fahrzeit: 7 min
- S-Bahn, Rheinpark Center S8, S11, S28, Gehzeit: 9 min
- Bus, Rheinpark Center 842, 874, Gehzeit: 8 min
Ihr Kontakt

Janice Lehmann
Ihr Kontakt







