Büros
ID D0512Büroimmobilie - Neuss - D0512
41460, Neuss, Nordrhein-Westfalen
Provisionspflichtig: bei Anmietung 3 Netto-Monatsmieten zzgl. gesetzlicher Umsatzsteuer.** der Wert kann je nach Vertragslaufzeit variieren.
9 € / m²
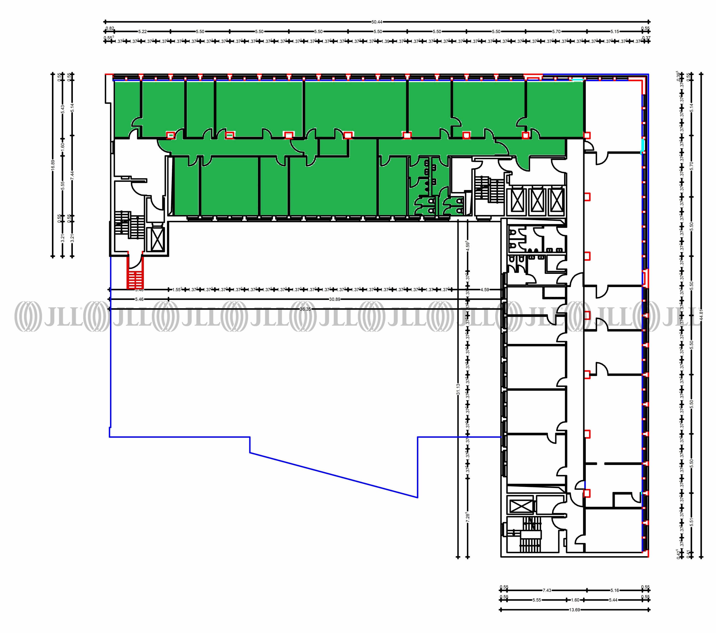
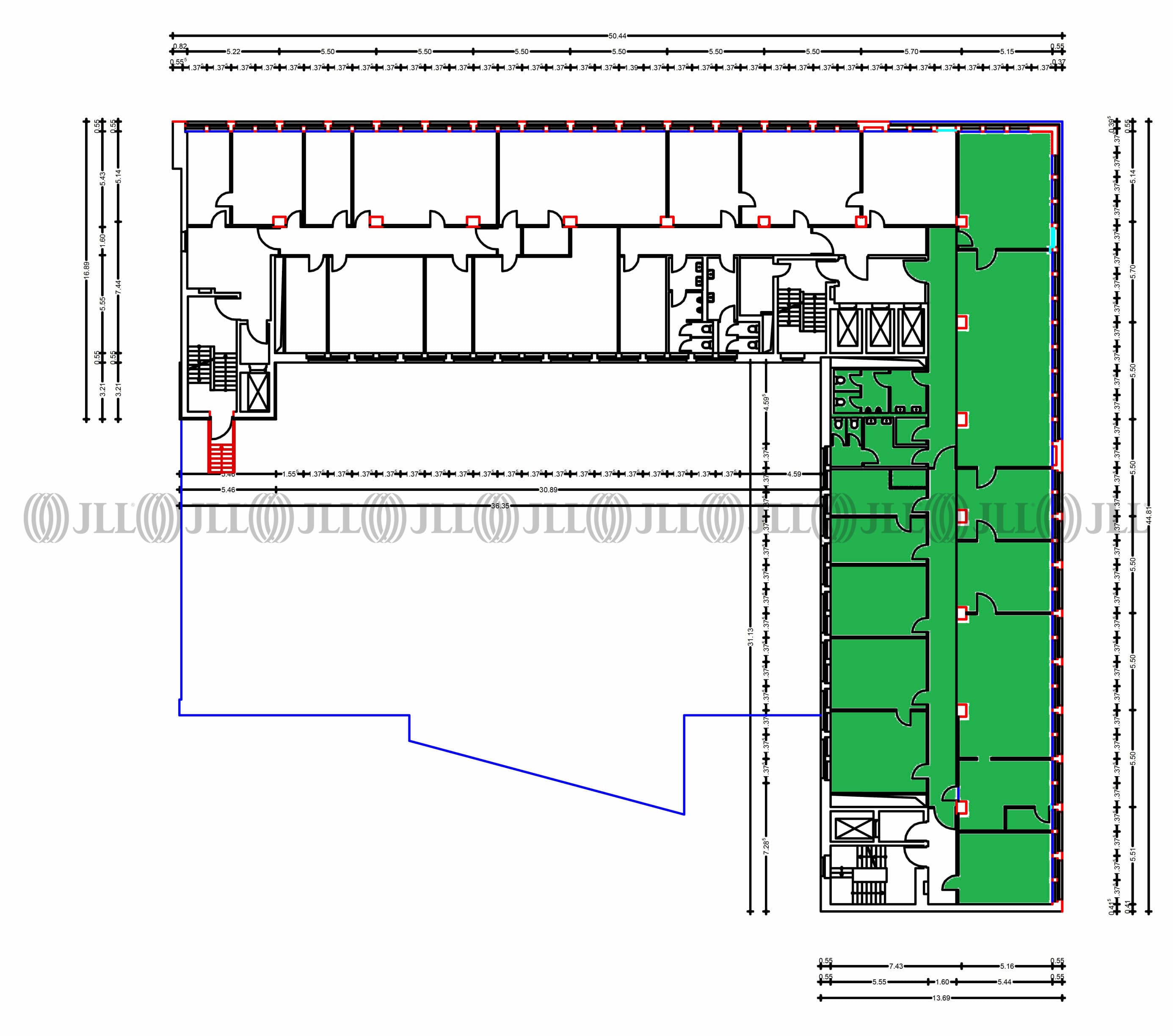
- Fläche906 - 1.812 m²
- VerfügbarkeitAuf Anfrage
- Objekt
- Ausstattung
- Lage und Verkehrsanbindung
- Grundrisse
- Exposé herunterladen
- Ihr Kontakt
- Anfrage senden
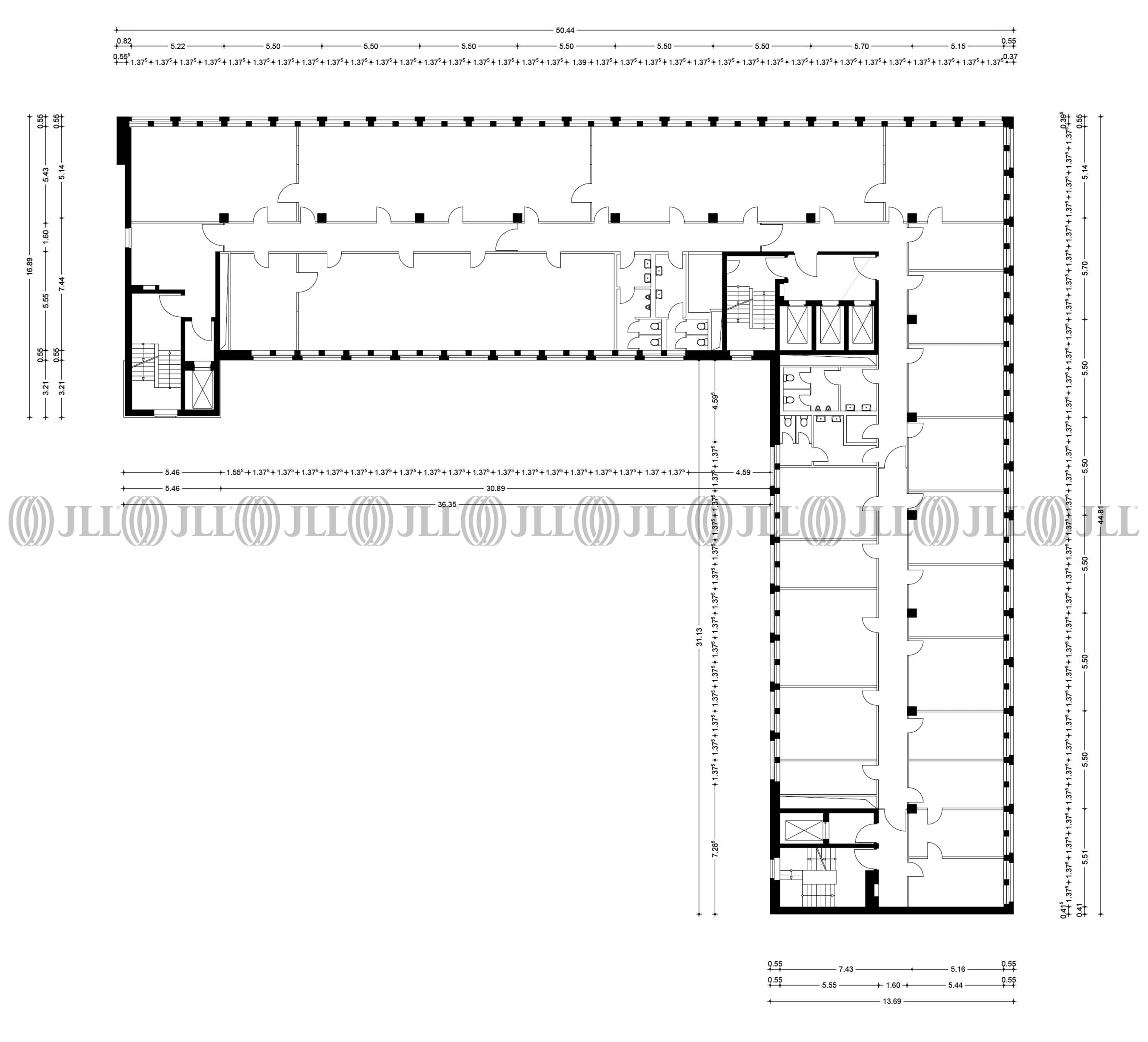
Objekt
Das L-förmig geschnittene Bürohaus verfügt über eine Stein-Glasfassade und lässt aufgrund seiner zwei Treppenhauskerne eine kleinteilige Aufteilung zu. Die zur Verfügung stehenden Flächen bieten einen hervorragenden Ausblick über Neuss.
Verfügbare Fläche
Lage und Verkehrsanbindung
Das Objekt befindet sich im Neusser Stadtteil Hammfeld. Eine Mischung aus modernen Gewerbeparks und attraktivem Wohnumfeld prägt den Standort, in welchem sich bereits namhafte Unternehmen niedergelassen haben. Durch die Autobahnen A 46 / A 52 / A 57 und ein gutes ÖPNV-Netz ist eine optimale Anbindung nach Düsseldorf und in das Umland gegeben.
- Flughafen, Düsseldorf, Fahrzeit: 19 min
- Bundesautobahn, A 57, Fahrzeit: 5 min
- Bundesautobahn, A 46, Fahrzeit: 7 min
- Hauptbahnhof, Neuss, Fahrzeit: 2 min
- Straßenbahn/Tram, Stadthalle / Museum 709, Gehzeit: 11 min
- Bus, Stadthalle / Museum 828, 830, Gehzeit: 11 min
Ihr Kontakt

Janice Lehmann
Ihr Kontakt




