Büros
ID D0491Provisionsfrei
Aktualisiert
Büroimmobilie - Düsseldorf, Heerdt - D0491
Heerdt, 40549, Düsseldorf, Nordrhein-Westfalen
15,50 € / m²
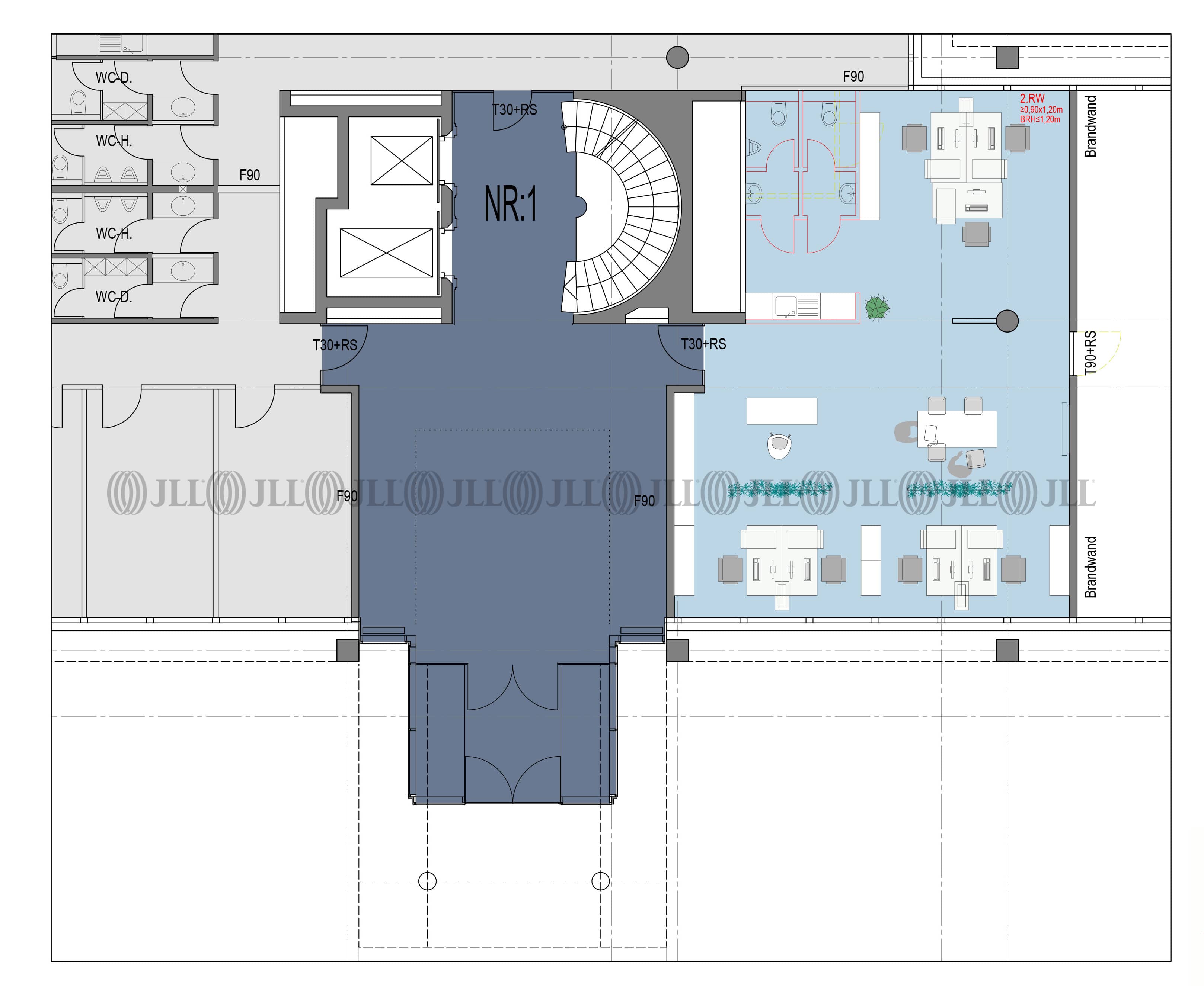
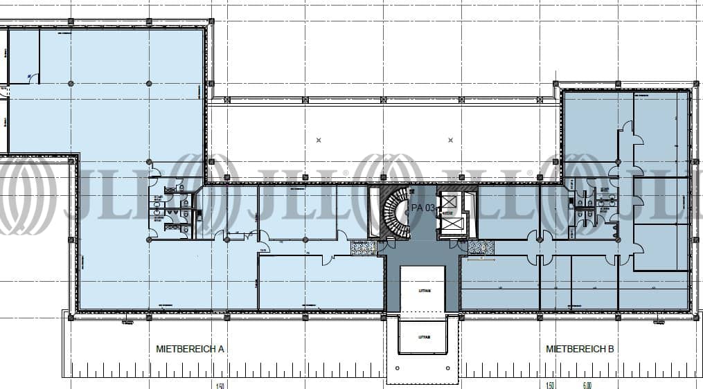
- Fläche214 - 9.002 m²
- VerfügbarkeitSofort
- Objekt
- Ausstattung
- Lage und Verkehrsanbindung
- Grundrisse
- Exposé herunterladen
- Ihr Kontakt
- Anfrage senden
Objekt
Der moderne Bürokomplex besticht nicht nur durch seine elegante Struktur sowie die begrünten Innenhöfe, sondern auch durch die direkte Lage am neuen Vodafone Campus.
Zertifizierungen
Energieausweis
DGNB: GoldFür diese Liegenschaft liegt ein Verbrauchsausweis vom 2021-05-10 vom Eigentümer/Vermieter vor. Die wesentlichen Energieträger der Liegenschaft sind Strom,Erdgas schwer. Der Endenergieverbrauch Strom beträgt 17.30 kWh/(m²*a). Der Endenergieverbrauch Wärme beträgt 29.20 kWh/(m²*a).
Verfügbare Fläche
Lage und Verkehrsanbindung
Das Objekt befindet sich im etablierten Bürostandort Seestern. Ursprünglich als Entlastungszentrum in der nordrhein-westfälischen Landeshauptstadt Düsseldorf gegründet, haben sich hier in den vergangenen Jahren zahlreiche namhafte Unternehmen niedergelassen. Die linksrheinische Lage besitzt eine sehr gute Infrastruktur (z.B. Hotels, Kitas, Restaurants, etc.) sowie eine gute Anbindung an das Autobahnnetz.
- Hauptbahnhof, Düsseldorf, Fahrzeit: 12 min
- U-Bahn, Prinzenallee U74, U76, U77, Gehzeit: 2 min
- Bus, Am Seestern 828, 836, 863, Gehzeit: 8 min
- Bundesautobahn, A 52, Fahrzeit: 2 min
- Bundesautobahn, A 57, Fahrzeit: 5 min
- Flughafen, Düsseldorf, Fahrzeit: 12 min
Ihr Kontakt

Anna-Louisa Kratochvil
Ihr Kontakt









