Büros
ID D0479Büroimmobilie - Düsseldorf, Derendorf - D0479
Derendorf, 40476, Düsseldorf, Nordrhein-Westfalen
Provisionspflichtig: bei Anmietung 3 Netto-Monatsmieten zzgl. gesetzlicher Umsatzsteuer.** der Wert kann je nach Vertragslaufzeit variieren.
Kontaktieren Sie uns für den Preis
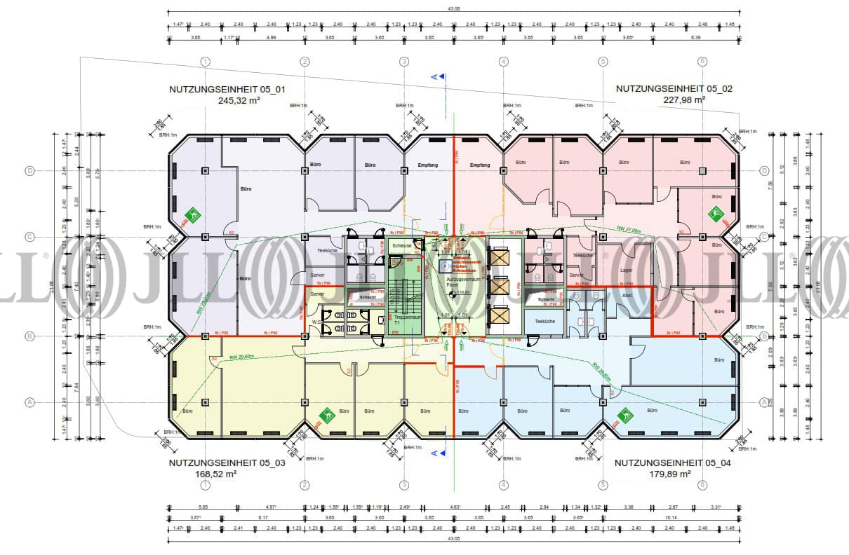
- Fläche185 - 2.958 m²
- VerfügbarkeitSofort
- Objekt
- Ausstattung
- Lage und Verkehrsanbindung
- Grundrisse
- Exposé herunterladen
- Ihr Kontakt
- Anfrage senden
Objekt
Das markante 6-geschossige Bürohaus besticht durch seinen repräsentativen Eingangsbereich sowie die moderne Glasfassade. Durch die bodentiefen Fenster sind die Büroflächen äußerst lichtdurchflutet. Eine Kühlung sowie fast 4 m Deckenhöhe komplettieren den hohen Ausstattungsstandard.
Zertifizierungen
Energieausweis
BREEAM: GoodFür diese Liegenschaft liegt ein Bedarfsausweis vom 18.04.2024 vom Eigentümer/Vermieter vor. Die wesentlichen Energieträger der Liegenschaft sind Strom, Wärmepumpe. Der Endenergiebedarf Strom beträgt 21.0 kWh/(m²*a). Der Endenergiebedarf Wärme beträgt 41.2 kWh/(m²*a).
Verfügbare Fläche
Lage und Verkehrsanbindung
Die Liegenschaft befindet sich nahe der Düsseldorfer City in unmittelbarer Nachbarschaft vieler namhafter Unternehmen. Der Kennedydamm zeichnet sich durch die Nähe zum Rheinufer und der optimalen Verkehrsanbindung in Richtung City und Umland aus. Auch der Flughafen ist in wenigen Minuten erreichbar.
- Hauptbahnhof, Düsseldorf, Fahrzeit: 7 min
- Straßenbahn/Tram, Spichernplatz 705, 707, Gehzeit: 8 min
- Bus, Frankenplatz 721, 722, 756, 758, Gehzeit: 1 min
- Bundesautobahn, A 44, Fahrzeit: 4 min
- Bundesautobahn, A 52, Fahrzeit: 5 min
- Flughafen, Düsseldorf, Fahrzeit: 7 min
Ihr Kontakt

Nell Ewert
Ihr Kontakt














