Büros
ID D0474Büroimmobilie - Düsseldorf, Golzheim - D0474
Golzheim, 40474, Düsseldorf, Nordrhein-Westfalen
Provisionspflichtig: bei Anmietung 3 Netto-Monatsmieten zzgl. gesetzlicher Umsatzsteuer.** der Wert kann je nach Vertragslaufzeit variieren.
23 € - 25 € / m²
- Fläche318 - 4.403 m²
- VerfügbarkeitSofort
- Objekt
- Ausstattung
- Lage und Verkehrsanbindung
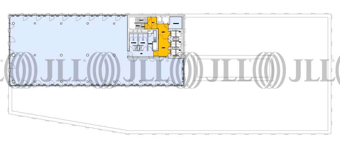
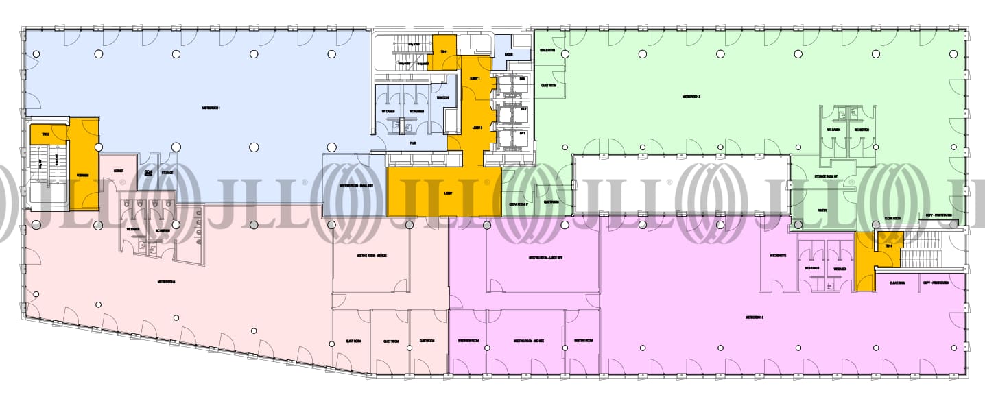
- Grundrisse
- Exposé herunterladen
- Ihr Kontakt
- Anfrage senden
Objekt
Das Gebäude wird mit seiner einzigartigen, repräsentativen Fassade mit integrierter LED-Beleuchtung und großzügigen Glasflächen ein architektonischer Blickfang. Es wird über eine großzügige, 2-geschossige Lobby erschlossen, zwei vertikale Wandgärten sowie ein weitläufiger Dachgarten für alle Mieter des Hauses sind nur einige Highlights.
Zertifizierungen
Energieausweis
LEED: GoldFür diese Liegenschaft liegt ein Bedarfsausweis vom 08.09.2016 vom Eigentümer/Vermieter vor. Die wesentlichen Energieträger der Liegenschaft sind Fernwärme, KWK, Nahwärme, Strom. Der Endenergiebedarf Strom beträgt 29.60 kWh/(m²*a). Der Endenergiebedarf Wärme beträgt 90.70 kWh/(m²*a).
Verfügbare Fläche
Lage und Verkehrsanbindung
Die Liegenschaft befindet sich nahe der Düsseldorfer City in unmittelbarer Nachbarschaft vieler namhafter Unternehmen. Der Kennedydamm zeichnet sich durch die Nähe zum Rheinufer und der optimalen Verkehrsanbindung in Richtung City und Umland aus. Auch der Flughafen ist in wenigen Minuten erreichbar.
- Hauptbahnhof, Düsseldorf, Fahrzeit: 12 min
- U-Bahn, Theodor-Heuss-Brücke U78, U79, Gehzeit: 3 min
- Bus, Theodor-Heuss-Brücke SB51, 729, 756, 758, 809, 834, 863, Gehzeit: 3 min
- Bundesautobahn, A 44, Fahrzeit: 6 min
- Bundesautobahn, A 52, Fahrzeit: 7 min
- Flughafen, Düsseldorf, Fahrzeit: 9 min
Ihr Kontakt

Janice Lehmann
Ihr Kontakt















