Büros
ID D0462Provisionsfrei
Büroimmobilie - Düsseldorf, Golzheim - D0462
Golzheim, 40474, Düsseldorf, Nordrhein-Westfalen
19,50 € / m²
- Fläche1.300 - 34.470 m²
- VerfügbarkeitSofort
- Objekt
- Ausstattung
- Lage und Verkehrsanbindung
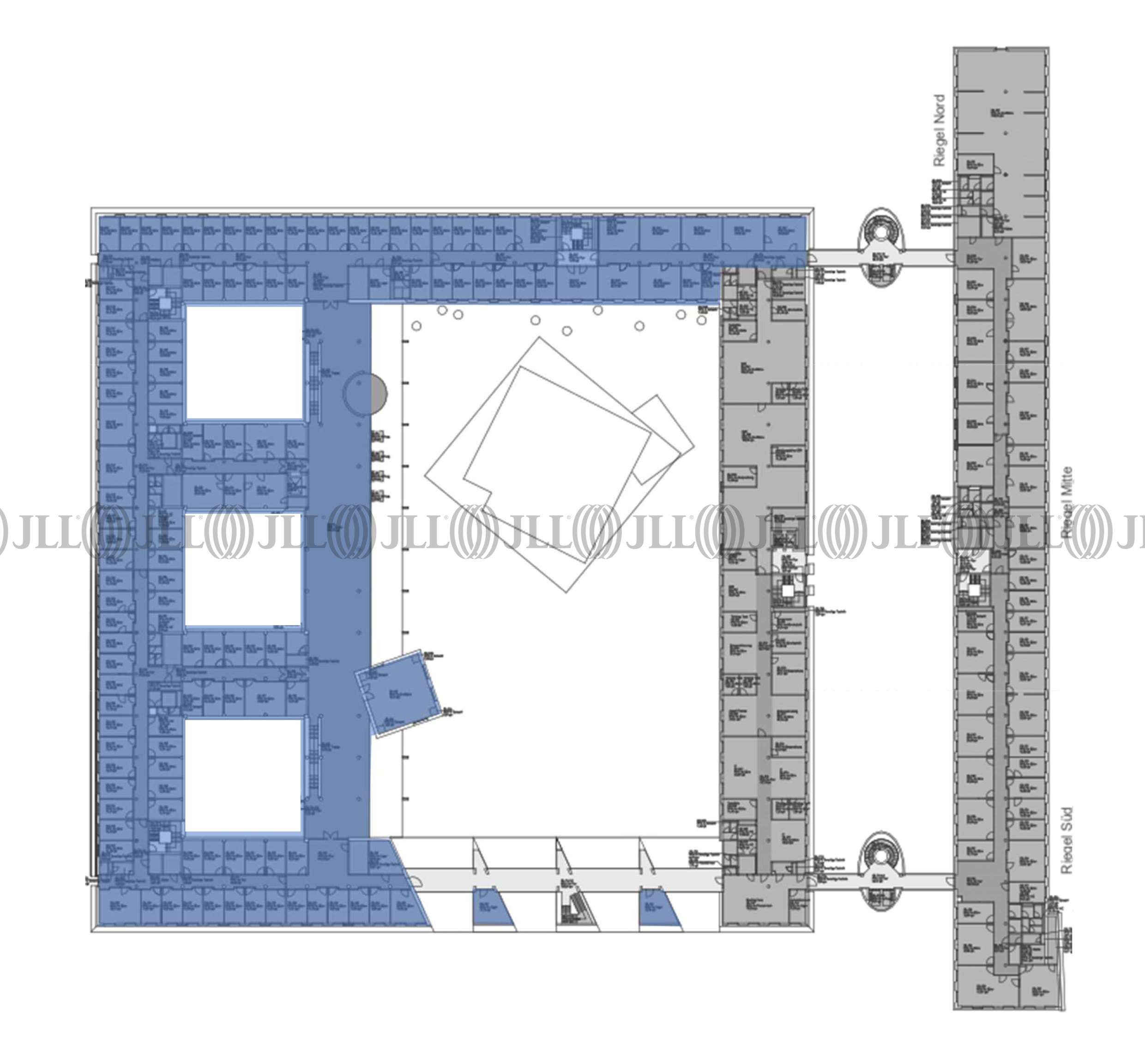
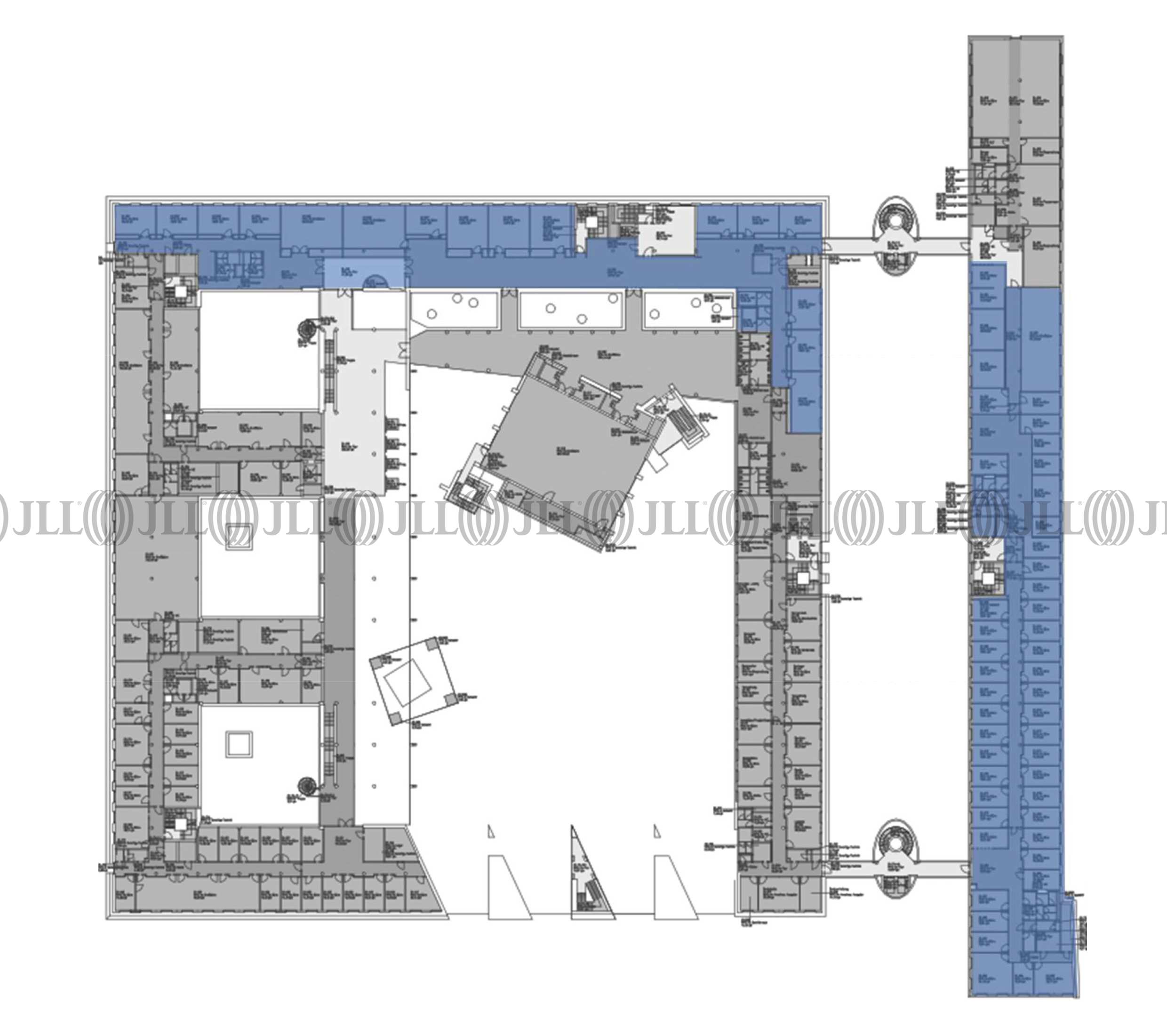
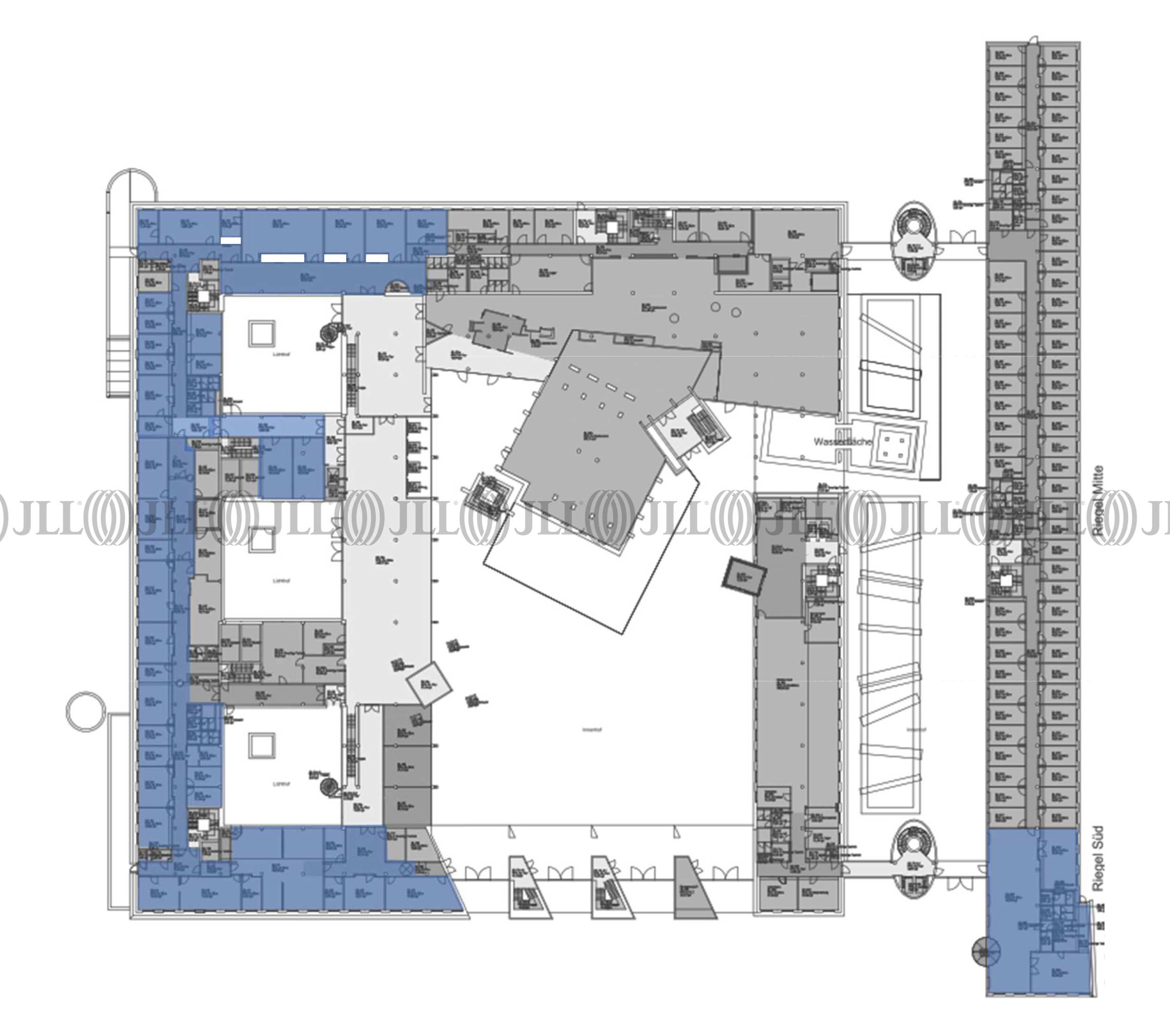
- Grundrisse
- Exposé herunterladen
- Ihr Kontakt
- Anfrage senden
Objekt
Das GRIDD ist eines der repräsentativsten Bürogebäude im Düsseldorfer Kennedydamm-Gebiet und bietet seinen Nutzern eine hochwertige Ausstattung. Durch die effiziente Bauweise sind jegliche Büroformen (Einzelbüro bis Großraumbüro) möglich. Die objekteigene Kantine kann durch die Mieter mitgenutzt werden.
Zertifizierungen
Energieausweis
Für diese Liegenschaft liegt ein Verbrauchsausweis vom 26.01.2023 vom Eigentümer/Vermieter vor. Die wesentlichen Energieträger der Liegenschaft sind Erdgas schwer, Fernwärme, Strom. Der Endenergieverbrauch Strom beträgt 42.60 kWh/(m²*a). Der Endenergieverbrauch Wärme beträgt 104.10 kWh/(m²*a).Verfügbare Fläche
Lage und Verkehrsanbindung
Die Liegenschaft befindet sich in unmittelbarer Nachbarschaft vieler namhafter Unternehmen. Der Kennedydamm zeichnet sich durch die Nähe zum Rheinufer und der optimalen Verkehrsanbindung in Richtung City und Umland aus. Auch der Flughafen ist in wenigen Minuten erreichbar.
- Flughafen, Düsseldorf, Fahrzeit: 9 min
- Bundesautobahn, A 44, Fahrzeit: 6 min
- Bundesautobahn, A 52, Fahrzeit: 8 min
- Bus, Theodor-Heuss-Brücke SB51, 729, 756, 758, 809, 834, 863, Gehzeit: 4 min
- U-Bahn, Theodor-Heuss-Brücke U78, U79, Gehzeit: 4 min
- Hauptbahnhof, Düsseldorf, Fahrzeit: 14 min
Ihr Kontakt

Richard Steimel
Ihr Kontakt








