Büros
ID D0459Provisionsfrei
Aktualisiert
Büroimmobilie - Düsseldorf, Golzheim - D0459
Golzheim, 40474, Düsseldorf, Nordrhein-Westfalen
28 € / m²
- Fläche215 m²
- VerfügbarkeitSofort
- Objekt
- Ausstattung
- Lage und Verkehrsanbindung
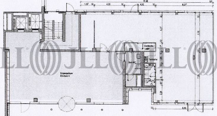
- Grundriss
- Exposé herunterladen
- Ihr Kontakt
- Anfrage senden
Objekt
Das 6-geschossige Bürogebäude verfügt über eine hochwertige weiße Glas-/ Kunststofffassade mit geschosshoher Verglasung.
Verfügbare Fläche
Lage und Verkehrsanbindung
Die Liegenschaft befindet sich nahe der Düsseldorfer City in unmittelbarer Nachbarschaft vieler namhafter Unternehmen. Der Kennedydamm zeichnet sich durch die Nähe zum Rheinufer und der optimalen Verkehrsanbindung in Richtung City und Umland aus. Auch der Flughafen ist in wenigen Minuten erreichbar. Dienstleister des täglichen Bedarfs befinden sich in der Nähe.
- Flughafen, Düsseldorf, Fahrzeit: 7 min
- Bundesautobahn, A 44, Fahrzeit: 5 min
- Bundesautobahn, A 52, Fahrzeit: 7 min
- Hauptbahnhof, Düsseldorf, Fahrzeit: 14 min
- U-Bahn, Theodor-Heuss-Brücke U78, U79, Gehzeit: 1 min
- Bus, Theodor-Heuss-Brücke M2, SB51, 729, 756, 758, 834, 863, Gehzeit: 1 min
Ihr Kontakt

Anna-Louisa Kratochvil
Ihr Kontakt





