Büros
ID D0452Büroimmobilie - Ratingen - D0452
40882, Ratingen, Nordrhein-Westfalen
Provisionspflichtig: bei Anmietung 3 Netto-Monatsmieten zzgl. gesetzlicher Umsatzsteuer.** der Wert kann je nach Vertragslaufzeit variieren.
10 € / m²
- Fläche246 - 2.888 m²
- VerfügbarkeitSofort
- Objekt
- Ausstattung
- Lage und Verkehrsanbindung
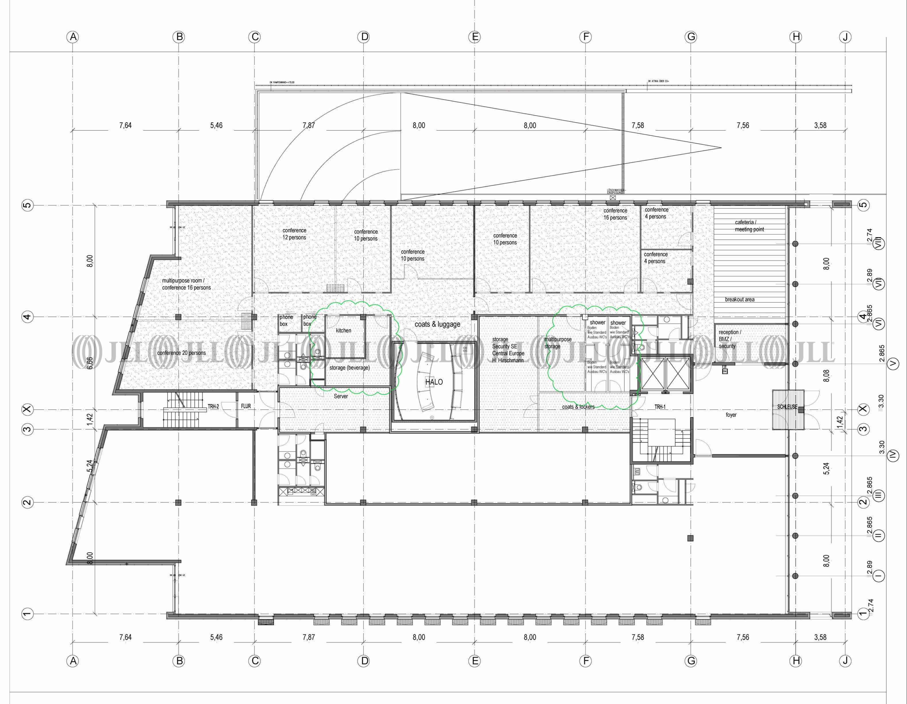
- Grundrisse
- Exposé herunterladen
- Ihr Kontakt
- Anfrage senden
Objekt
Dieses architektonisch aufwendig gestaltete Objekt verfügt über ein repräsentatives Erscheinungsbild und bietet den Mietern ein angenehmes Arbeitsumfeld sowie eine hochwertige Ausstattung.
Zertifizierungen
Energieausweis
Für diese Liegenschaft liegt ein Verbrauchsausweis vom 08.07.2025 vom Eigentümer/Vermieter vor. Die wesentlichen Energieträger der Liegenschaft sind Erdgas schwer, Strom. Der Endenergieverbrauch Strom beträgt 60.1 kWh/(m²*a). Der Endenergieverbrauch Wärme beträgt 45.7 kWh/(m²*a).Verfügbare Fläche
Lage und Verkehrsanbindung
Das Objekt befindet sich an einem zukunftsorientierten Büro- und Wohnstandort in Ratingen-Ost. Hier haben sich bereits diverse internationale und namhafte Firmen wie Mitsubishi Electric und Esprit niedergelassen. Die nahe gelegenen Autobahnen A 44 und A 52 sowie die S-Bahnstation binden das Objekt ideal an Düsseldorf sowie das Ruhrgebiet an. Eine Tankstelle befindet sich in der Nähe.
- Flughafen, Düsseldorf, Fahrzeit: 10 min
- Bundesautobahn, A 44, Fahrzeit: 2 min
- Bundesautobahn, A 3, Fahrzeit: 4 min
- Bus, Balcke-Dürr-Allee 749, Gehzeit: 1 min
- S-Bahn, Ratingen-Ost S6, Gehzeit: 3 min
Ihr Kontakt

Janice Lehmann
Ihr Kontakt









