Büros
ID D0441Büroimmobilie - Düsseldorf, Derendorf - D0441
Derendorf, 40476, Düsseldorf, Nordrhein-Westfalen
Provisionspflichtig: bei Anmietung 3 Netto-Monatsmieten zzgl. gesetzlicher Umsatzsteuer.** der Wert kann je nach Vertragslaufzeit variieren.
18,50 € - 23,55 € / m²
- Fläche229 - 604 m²
- VerfügbarkeitSofort
- Objekt
- Ausstattung
- Lage und Verkehrsanbindung
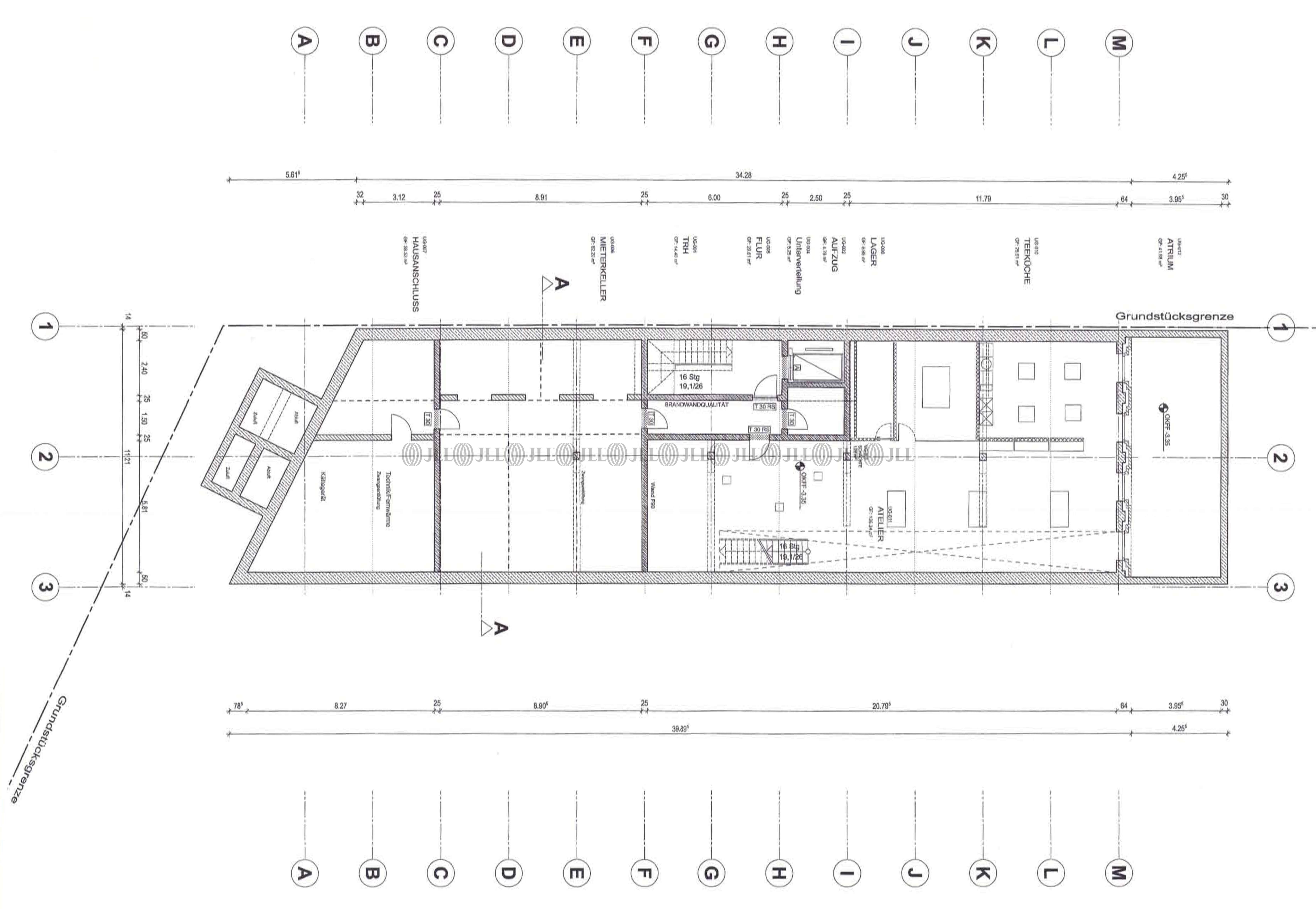
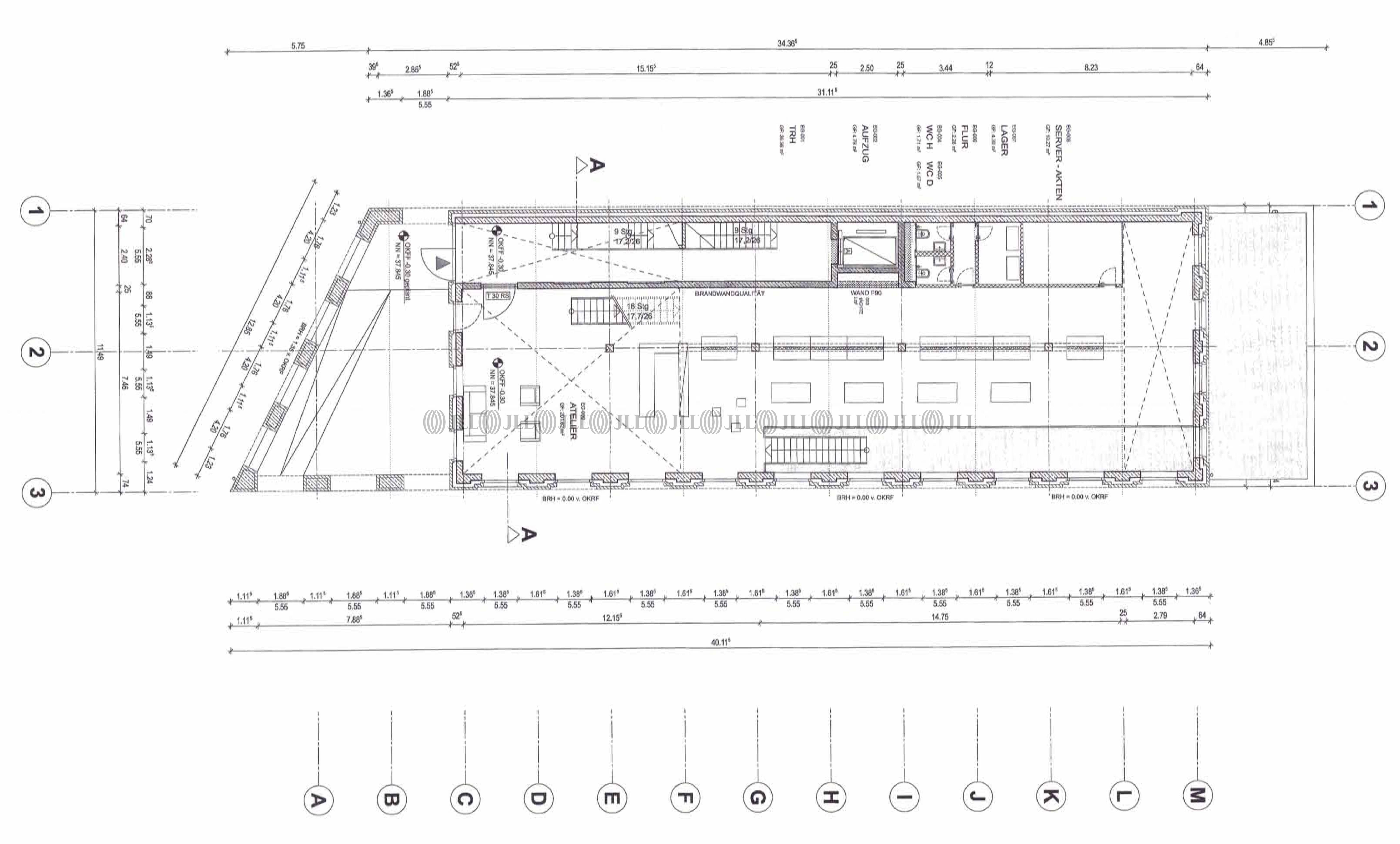
- Grundrisse
- Exposé herunterladen
- Ihr Kontakt
- Anfrage senden
Objekt
Das Gelbe Haus zeichnet sich vor allem durch seine auffallende Fassadengestaltung aus. Zudem bieten die modernen und offen gehaltenen Flächen viel Raum für kreatives Arbeiten. Durch die bodentiefen Fenster werden die Flächen lichtdurchflutet. Die Kombination aus gelber Klinkerfassade und modernen Büro- und Showroomflächen ergeben ein kreatives und Gesamtbild.
Verfügbare Fläche
Lage und Verkehrsanbindung
Das Objekt befindet sich in Düsseldorf-Derendorf. Es bestehen hervorragende Anbindungen zum Flughafen, zur Messe und zu der nahe gelegenen Autobahnanschlussstelle A 52 sowie den weiterführenden Autobahnen A 44 und die der A 3.
- Hauptbahnhof, Düsseldorf, Fahrzeit: 13 min
- Straßenbahn/Tram, Straßburger Straße 704, Fahrzeit: 2 min
- Bus, Heinrich-Ehrhardt-Straße 807, 834, Gehzeit: 3 min
- Bundesautobahn, A 52, Fahrzeit: 4 min
- Bundesautobahn, A 44, Fahrzeit: 5 min
- Flughafen, Düsseldorf, Fahrzeit: 8 min
Ihr Kontakt

Nell Ewert
Ihr Kontakt

