Büros
ID D0436Provisionsfrei
Büroimmobilie - Düsseldorf, Hafen - D0436
Hafen, 40221, Düsseldorf, Nordrhein-Westfalen
26 € / m²
- Fläche758 - 3.306 m²
- VerfügbarkeitSofort
- Objekt
- Ausstattung
- Lage und Verkehrsanbindung
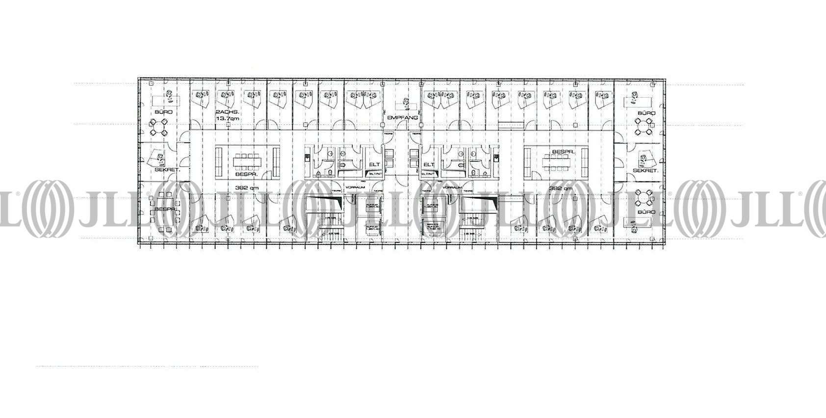
- Grundrisse
- Exposé herunterladen
- Ihr Kontakt
- Anfrage senden
Objekt
Das 17-geschossige Gebäude steht in exzellenter Lage direkt auf der Spitze der Speditionstraße. Das Objekt ist Teil dreier Gebäude, wovon eines als Hotel von Hyatt Regency genutzt wird. Die Flächen verfügen über eine hochwertige Ausstattung sowie einen unverbaubaren Wasserblick.
Zertifizierungen
Energieausweis
DGNB: Gold WIREDSCORE: SilverFür diese Liegenschaft liegt ein Verbrauchsausweis vom 08.12.2020 vom Eigentümer/Vermieter vor. Die wesentlichen Energieträger der Liegenschaft sind KWK, Strom. Der Endenergieverbrauch Strom beträgt 88.30 kWh/(m²*a). Der Endenergieverbrauch Wärme beträgt 155.00 kWh/(m²*a).
Verfügbare Fläche
Lage und Verkehrsanbindung
Das Objekt befindet sich inmitten des Düsseldorfer Medienhafens. Die Mischung aus altem Industriecharakter und der modernen, architektonisch ansprechenden Skyline, sorgt für ein hochwertiges Ambiente. Hotels, Gastronomie und die Nähe zur City runden den Standort ab. Zahlreiche namhafte Unternehmen haben das Potenzial bereits erkannt und machen den Standort zum „Place-to-be“ außerhalb des CBD.
- Flughafen, Düsseldorf, Fahrzeit: 15 min
- Bundesautobahn, A 46, Fahrzeit: 8 min
- Bundesautobahn, A 52, Fahrzeit: 8 min
- Straßenbahn/Tram, Speditionstraße 707, Gehzeit: 5 min
- Bus, Speditionstraße 723, 732, Gehzeit: 5 min
- Hauptbahnhof, Düsseldorf, Fahrzeit: 10 min
Ihr Kontakt

Janice Lehmann
Ihr Kontakt










