Büros
ID D0342Büroimmobilie - Düsseldorf, Stadtmitte - D0342
Stadtmitte, 40212, Düsseldorf, Nordrhein-Westfalen
Provisionspflichtig: bei Anmietung 3 Netto-Monatsmieten zzgl. gesetzlicher Umsatzsteuer.** der Wert kann je nach Vertragslaufzeit variieren.
26 € / m²
- Fläche188 - 10.903 m²
- VerfügbarkeitSofort
- Objekt
- Ausstattung
- Lage und Verkehrsanbindung
- Grundrisse
- Exposé herunterladen
- Ihr Kontakt
- Anfrage senden
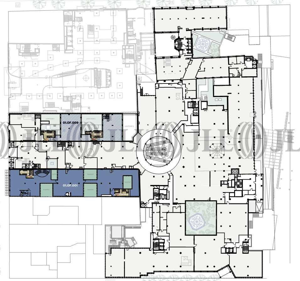
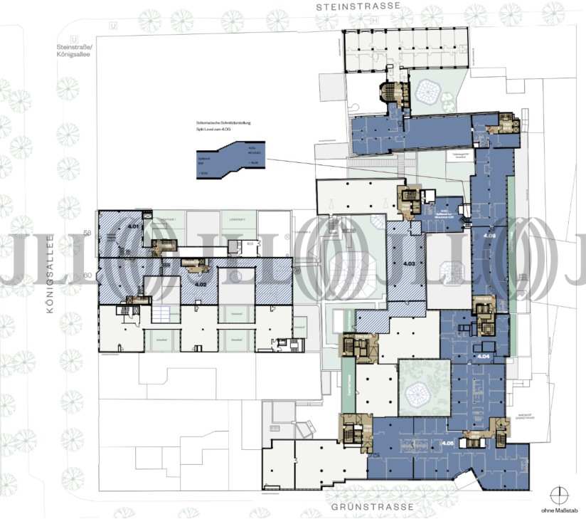
Objekt
Die sehr unterschiedlich zu gestaltenden Büroflächen verfügen über verschiedene Raumtiefen, sodass jegliche Büroformen (Kombi-, Großraum- und Einzelbüro) dargestellt werden können. Die Kö-Höfe bieten durch ihre prominente Lage beste infrastrukturelle Voraussetzungen und zugleich die Möglichkeit einer eigenen Adressbildung. Die Büroflächen der Kö-Höfe werden derzeit umfassend saniert.
Zertifizierungen
Energieausweis
Für diese Liegenschaft liegt ein Verbrauchsausweis vom 2019-05-10 vom Eigentümer/Vermieter vor. Der wesentliche Energieträger der Liegenschaft ist KWK. Der Endenergieverbrauch Strom beträgt 144.90 kWh/(m²*a). Der Endenergieverbrauch Wärme beträgt 105.10 kWh/(m²*a).Verfügbare Fläche
Lage und Verkehrsanbindung
Die Königsallee – eine der Prachtstraßen Europas. Perfekt angebunden, mitten im Herzen der Stadt gelegen und jedem ein Begriff; so lässt sich die Lage der Kö-Höfe und der Kö-Galerie, welche den Abschnitt des Boulevards zwischen Grünstraße und Steinstraße wohl wie kaum ein anderer Gebäudekomplex geprägt haben, am treffensten beschreiben. Dienstleister des täglichen Bedarfs befinden sich in der Nähe.
- Flughafen, Düsseldorf, Fahrzeit: 15 min
- Bundesautobahn, A 52, Fahrzeit: 8 min
- Bundesautobahn, A 46, Fahrzeit: 11 min
- Bus, Steinstraße / Königsallee SB50, 780, 782, 785, Gehzeit: 3 min
- Hauptbahnhof, Düsseldorf, Fahrzeit: 4 min
- U-Bahn, Steinstraße / Königsallee U70, U74, U75, U76, U77, U78, U79, Gehzeit: 3 min
- Straßenbahn/Tram, Steinstraße / Königsallee 701, Gehzeit: 3 min
Ihr Kontakt

Anna-Louisa Kratochvil
Ihr Kontakt






























