Büros
ID D0172Büroimmobilie - Düsseldorf, Heerdt - D0172
Heerdt, 40549, Düsseldorf, Nordrhein-Westfalen
Provisionspflichtig: bei Anmietung 3 Netto-Monatsmieten zzgl. gesetzlicher Umsatzsteuer.** der Wert kann je nach Vertragslaufzeit variieren.
15,90 € / m²
- Fläche510 - 2.430 m²
- VerfügbarkeitSofort
- Objekt
- Ausstattung
- Lage und Verkehrsanbindung
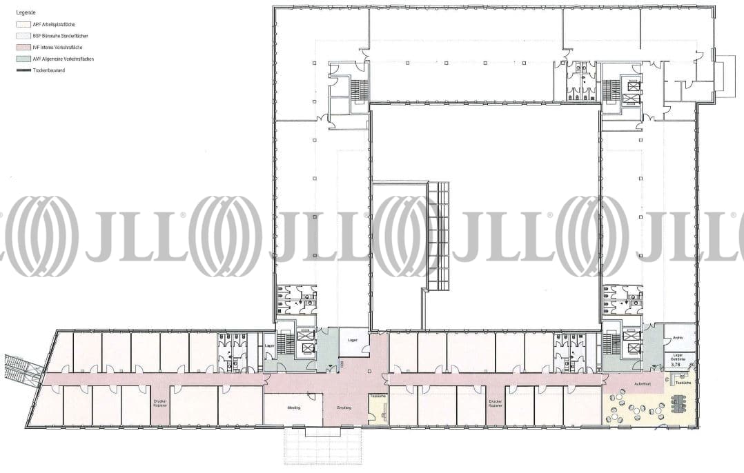
- Grundrisse
- Exposé herunterladen
- Ihr Kontakt
- Anfrage senden
Objekt
Die Penthouse-Fläche bietet nicht nur eine äußerst großzügige Terrasse, sondern profitiert sowohl von dem hochwertigen Kantinenkonzept der „East Village Eatery“ als auch von dem Konferenzzentrum des K-LAN. In der Nähe des neuen Vodafone Campus gelegen, ist in diesem Objekt alles auf die Anforderungen künftigen Arbeitens ausgerichtet.
Zertifizierungen
Energieausweis
DGNB: Bronze WIREDSCORE: GoldFür diese Liegenschaft liegt ein Verbrauchsausweis vom 03.05.2021 vom Eigentümer/Vermieter vor. Der wesentliche Energieträger der Liegenschaft ist Erdgas schwer. Der Endenergieverbrauch Strom beträgt 53.90 kWh/(m²*a). Der Endenergieverbrauch Wärme beträgt 61.40 kWh/(m²*a).
Verfügbare Fläche
Lage und Verkehrsanbindung
Das Objekt ist im linksrheinischen Düsseldorf-Heerdt gelegen und verfügt über eine sehr gute Verkehrsanbindung in Richtung City sowie stadtauswärts. Die ehemals dort herrschende Industriebranche ist einem bunten Mix aus Bürogebäuden, Großhandel und Wohnnutzung gewichen.
- Hauptbahnhof, Düsseldorf, Fahrzeit: 12 min
- U-Bahn, Löricker Straße U74, U76, Gehzeit: 5 min
- Bus, Schiessstraße 828, 833, Gehzeit: 1 min
- Bundesautobahn, A 52, Fahrzeit: 5 min
- Bundesautobahn, A 57, Fahrzeit: 7 min
- Flughafen, Düsseldorf, Fahrzeit: 19 min
Ihr Kontakt

Richard Steimel
Ihr Kontakt


















