Büros
ID D0168Büroimmobilie - Düsseldorf, Golzheim - D0168
Golzheim, 40474, Düsseldorf, Nordrhein-Westfalen
Provisionspflichtig: bei Anmietung 3 Netto-Monatsmieten zzgl. gesetzlicher Umsatzsteuer.** der Wert kann je nach Vertragslaufzeit variieren.
14,50 € / m²
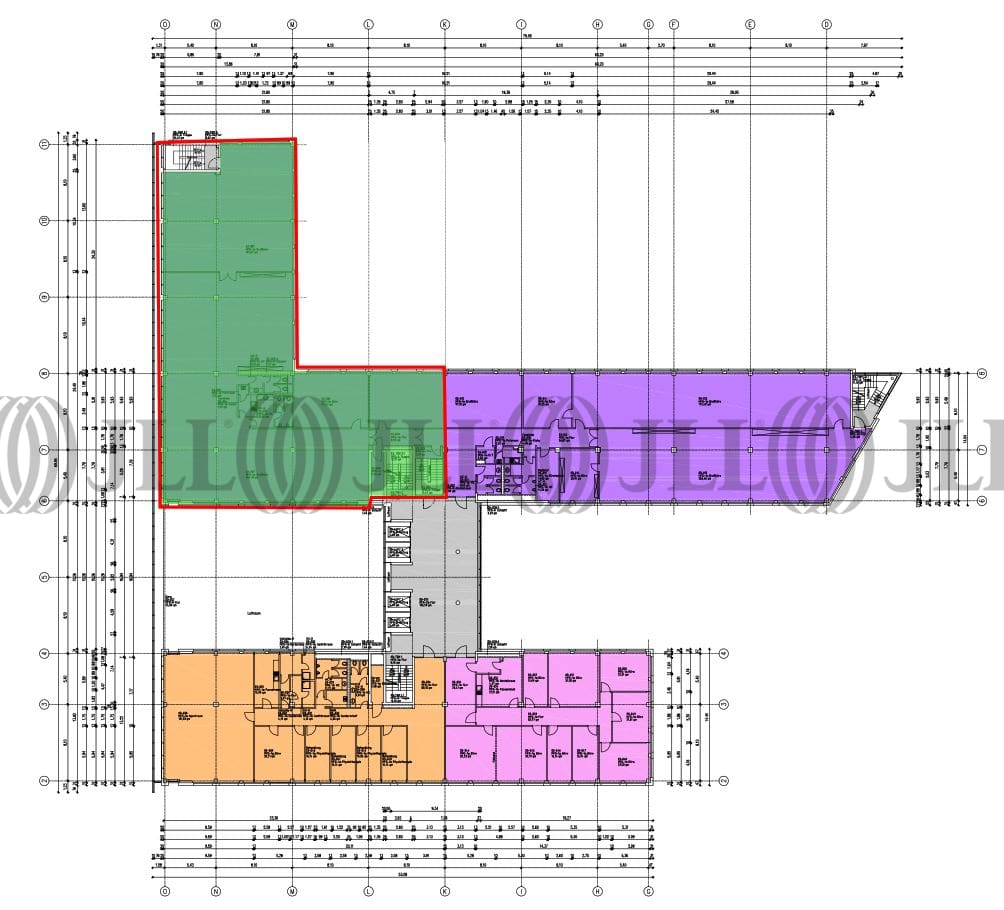
- Fläche416 - 4.294 m²
- VerfügbarkeitSofort
- Objekt
- Ausstattung
- Lage und Verkehrsanbindung
- Grundrisse
- Exposé herunterladen
- Ihr Kontakt
- Anfrage senden
Objekt
Über das repräsentative Foyer des 6-geschossigen Bürogebäudes gelangt man zu den einzelnen Büroetagen. Moderne Qualitäten und flexible Achsraster ermöglichen die Berücksichtigung individueller Nutzeranforderungen.
Zertifizierungen
Energieausweis
Für diese Liegenschaft liegt ein Verbrauchsausweis vom 2021-02-11 vom Eigentümer/Vermieter vor. Der wesentliche Energieträger der Liegenschaft ist Erdgas schwer. Der Endenergieverbrauch Strom beträgt 22.90 kWh/(m²*a). Der Endenergieverbrauch Wärme beträgt 89.90 kWh/(m²*a).Verfügbare Fläche
Lage und Verkehrsanbindung
Die Liegenschaft befindet sich nahe der Düsseldorfer City in unmittelbarer Nachbarschaft vieler namhafter Unternehmen. Der Kennedydamm zeichnet sich durch die Nähe zum Rheinufer und der optimalen Verkehrsanbindung in Richtung City und Umland aus. Auch der Flughafen ist in wenigen Minuten erreichbar.
- Hauptbahnhof, Düsseldorf, Fahrzeit: 10 min
- U-Bahn, Theodor-Heuss-Brücke U78, U79, Gehzeit: 3 min
- Bus, Theodor-Heuss-Brücke SB51, 729, 756, 758, 834, Gehzeit: 3 min
- Bundesautobahn, A 52, Fahrzeit: 7 min
- Bundesautobahn, A 44, Fahrzeit: 8 min
- Flughafen, Düsseldorf, Fahrzeit: 11 min
Ihr Kontakt

Anna-Louisa Kratochvil
Ihr Kontakt












