Büros
ID D0155Provisionsfrei
Büroimmobilie - Düsseldorf, Lichtenbroich - D0155
Lichtenbroich, 40472, Düsseldorf, Nordrhein-Westfalen
13,50 € / m²
- Fläche105 m²
- Verfügbarkeit01.02.2026
- Objekt
- Ausstattung
- Lage und Verkehrsanbindung
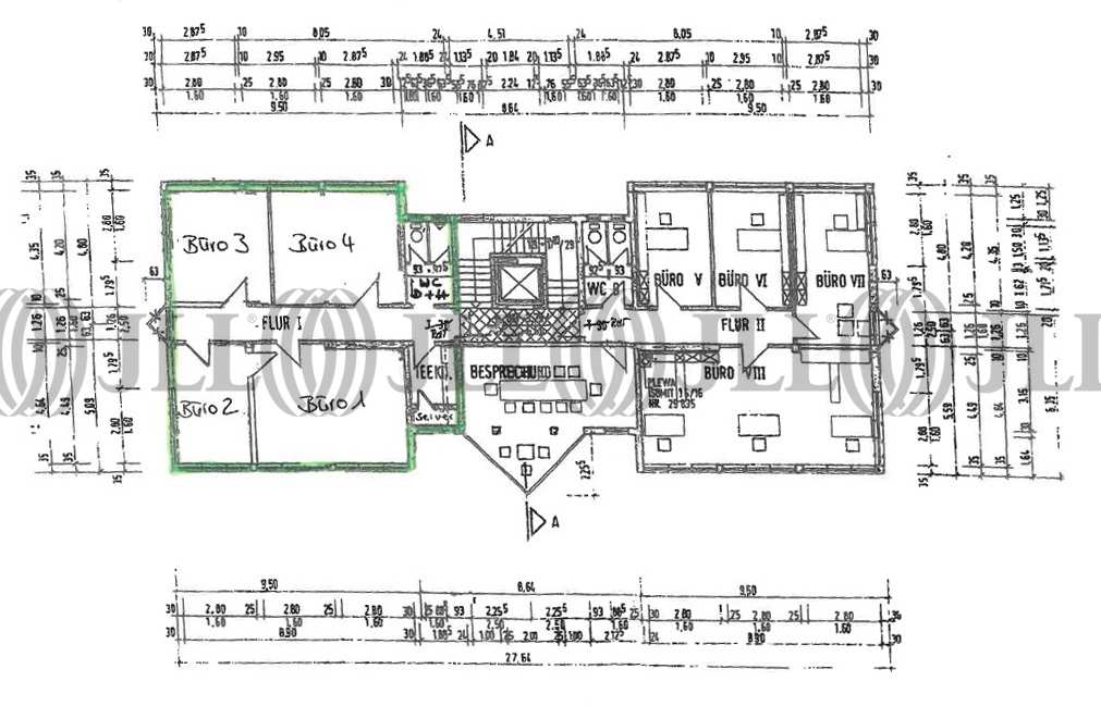
- Grundriss
- Exposé herunterladen
- Ihr Kontakt
- Anfrage senden
Objekt
Das gepflegte Bürogebäude bietet neben der gepflegten Fassade seinen Mietern den notwenigen Komfort. Moderne Büroflächen, Lagermöglichkeiten, Sichtbarkeiten für Firmennamen und ein Aufzug gehören hier zum Standard. Stellplätze am Haus runden das Gesamtpaket ab.
Zertifizierungen
Energieausweis
Für diese Liegenschaft liegt ein Verbrauchsausweis vom 2014-09-30 vom Eigentümer/Vermieter vor. Der wesentliche Energieträger der Liegenschaft ist Erdgas leicht. Der Endenergieverbrauch Strom beträgt 28.90 kWh/(m²*a). Der Endenergieverbrauch Wärme beträgt 103.60 kWh/(m²*a).Verfügbare Fläche
Lage und Verkehrsanbindung
Die Liegenschaft befindet sich in direkter Nähe des Düsseldorfer Flughafens und bietet damit, besonders international tätigen Unternehmen, beste Voraussetzungen. Auch das Umland ist durch die gute Anbindung an das Autobahnnetz schnell erreichbar. Der Airport Düsseldorf-International bietet zudem zahlreiche Einkaufsmöglichkeiten und ein breites Angebot an Gastronomie.
- Flughafen, Düsseldorf, Fahrzeit: 7 min
- Bundesautobahn, A 44, Fahrzeit: 7 min
- Bundesautobahn, A 52, Fahrzeit: 8 min
- Hauptbahnhof, Düsseldorf, Fahrzeit: 20 min
- Bus, Mündelheimer Weg 729, 759, 776, Gehzeit: 4 min
- Bahnhof, Flughafen S6, Gehzeit: 10 min
Ihr Kontakt

Katharina Ufelmann
Ihr Kontakt






