Büros
ID D0153Provisionsfrei
Aktualisiert
Büroimmobilie - Düsseldorf, Hafen - D0153
Hafen, 40221, Düsseldorf, Nordrhein-Westfalen
16 € - 26,50 € / m²
- Fläche125 - 2.433 m²
- VerfügbarkeitSofort
- Objekt
- Ausstattung
- Lage und Verkehrsanbindung
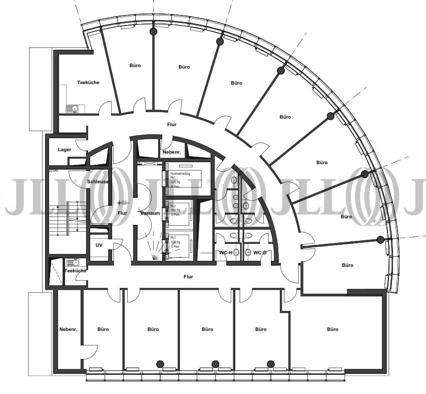
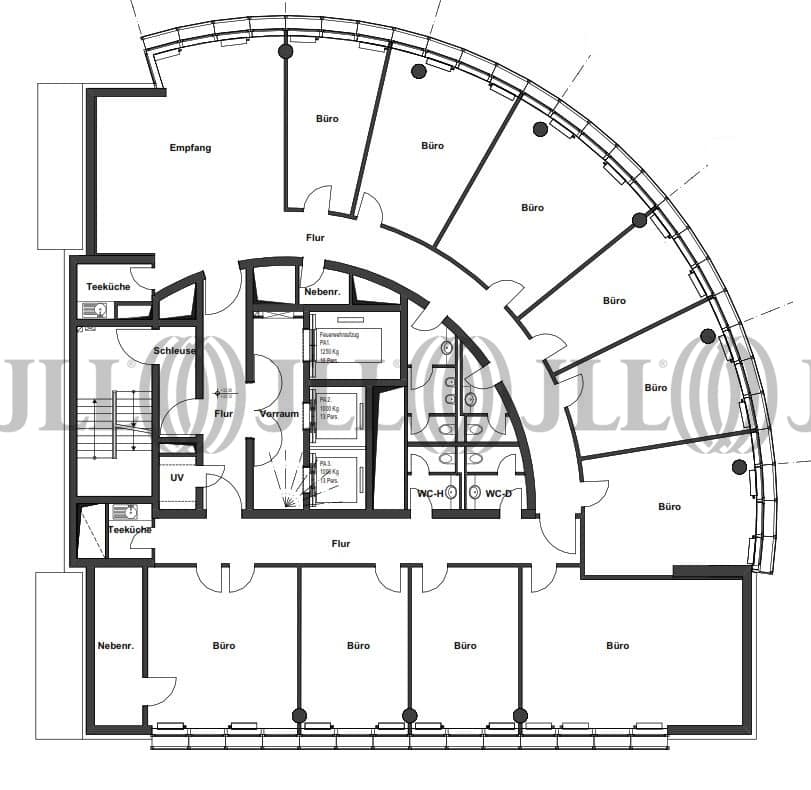
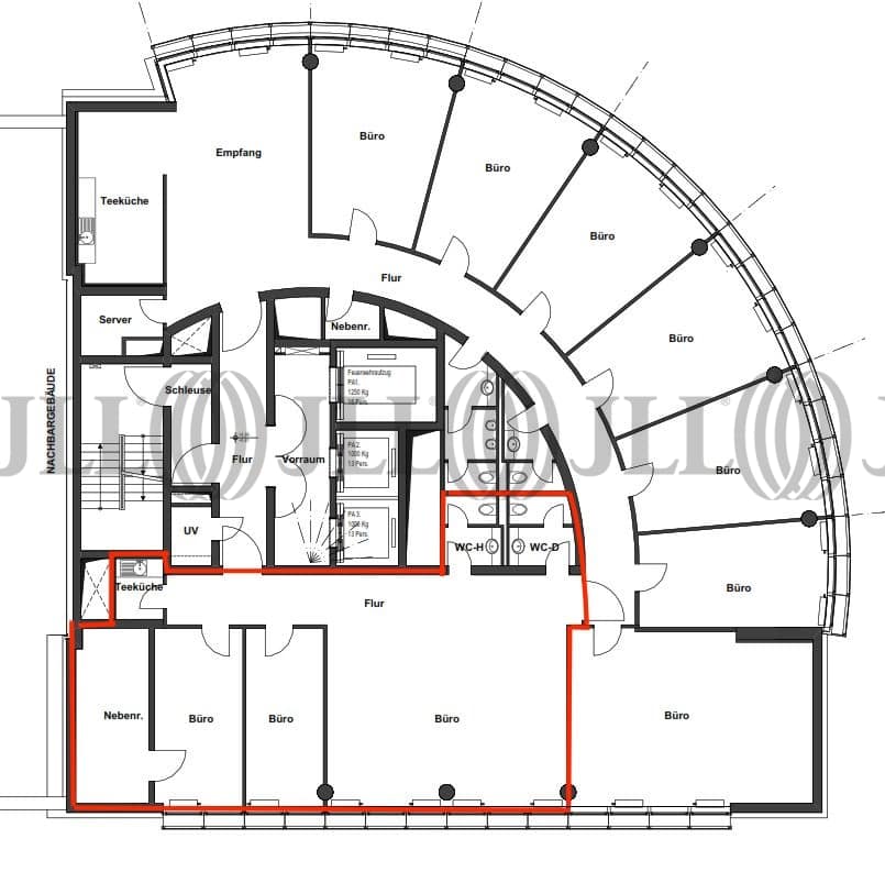
- Grundrisse
- Exposé herunterladen
- Ihr Kontakt
- Anfrage senden
Objekt
Mit ca. 67 m und 19 Geschossen gehört der Media Tower zu den wenigen Hochhäusern im Düsseldorfer Medienhafen mit einem ausgezeichneten Rundum-Blick. Im Erdgeschoss dieses exklusiven Hochhauses befinden sich Ausstellungsflächen auf zwei Ebenen.
Zertifizierungen
Energieausweis
DGNB: GoldFür diese Liegenschaft liegt ein Bedarfsausweis vom 03.07.2015 vom Eigentümer/Vermieter vor. Die wesentlichen Energieträger der Liegenschaft sind Fernwärme, Nahwärme. Der Endenergiebedarf Strom beträgt 98.00 kWh/(m²*a). Der Endenergiebedarf Wärme beträgt 137.00 kWh/(m²*a).
Verfügbare Fläche
Lage und Verkehrsanbindung
Das Objekt befindet sich inmitten des Düsseldorfer Medienhafens. Die Mischung aus altem Industriecharakter und der modernen, architektonisch ansprechenden Skyline, sorgt für ein hochwertiges Ambiente. Hotels, Gastronomie und die Nähe zur City runden den Standort ab. Zahlreiche namhafte Unternehmen haben das Potenzial bereits erkannt und machen den Standort zum „Place-to-be“ außerhalb des CBD.
- Flughafen, Düsseldorf, Fahrzeit: 12 min
- Bundesautobahn, A 52, Fahrzeit: 8 min
- Bundesautobahn, A 46, Fahrzeit: 8 min
- Bus, Franziusstraße 725, 726, 809, Gehzeit: 3 min
- Straßenbahn/Tram, Franziusstraße 708, 719, Gehzeit: 3 min
- Hauptbahnhof, Düsseldorf, Fahrzeit: 7 min
Ihr Kontakt

Anna-Louisa Kratochvil
Ihr Kontakt










