Büros
ID D0151Provisionsfrei
Büroimmobilie - Düsseldorf, Flingern Nord - D0151
Flingern Nord, 40237, Düsseldorf, Nordrhein-Westfalen
13 € - 14,90 € / m²
- Fläche207 - 3.173 m²
- VerfügbarkeitSofort
- Objekt
- Ausstattung
- Lage und Verkehrsanbindung
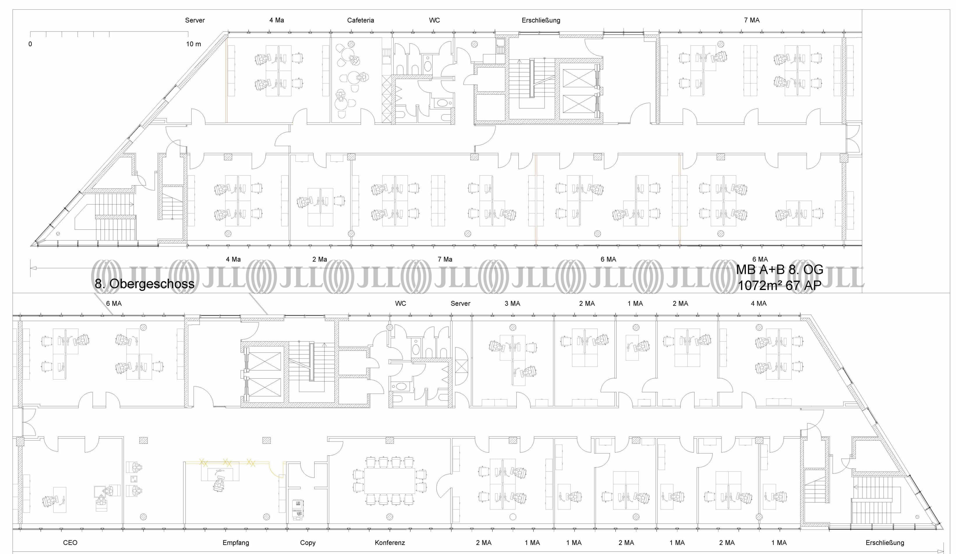
- Grundriss
- Exposé herunterladen
- Ihr Kontakt
- Anfrage senden
Objekt
Die attraktive Alu-Glasfassade setzt für die Architektur der Umgebung ein markantes Zeichen. Der in der Eingangshalle verlegte Naturstein setzt das positive äußere Erscheinungsbild im Inneren fort und unterstreicht die dezente Eleganz des Gebäudes.
Zertifizierungen
Energieausweis
Für diese Liegenschaft liegt ein Verbrauchsausweis vom 2019-10-28 vom Eigentümer/Vermieter vor. Die wesentlichen Energieträger der Liegenschaft sind Strom,KWK. Der Endenergieverbrauch Strom beträgt 72.10 kWh/(m²*a). Der Endenergieverbrauch Wärme beträgt 76.40 kWh/(m²*a).Verfügbare Fläche
Lage und Verkehrsanbindung
Das Objekt liegt im östlichen Stadtteil Grafenberg und verfügt über eine sehr gute ÖPNV-Anbindung in Richtung City. Namhafte Unternehmen haben sich bereits im attraktiven Umfeld bestehend aus Büro- und Wohngebieten eingefunden. Der Grafenberger Wald bildet im Osten des Gebiets eine „Grüne Oase“. Dienstleister des täglichen Bedarfs befinden sich in der Nähe.
- Hauptbahnhof, Düsseldorf, Fahrzeit: 12 min
- U-Bahn, Schlüterstraße / Arbeitsagentur U72, U73, U83, Gehzeit: 1 min
- Straßenbahn/Tram, Schlüterstraße / Arbeitsagentur 709, Gehzeit: 1 min
- Bus, Schlüterstraße / Arbeitsagentur 725, 733, Gehzeit: 1 min
- Bundesautobahn, A 52, Fahrzeit: 7 min
- Bundesautobahn, A 44, Fahrzeit: 9 min
- Flughafen, Düsseldorf, Fahrzeit: 15 min
Ihr Kontakt

Richard Steimel
Ihr Kontakt








