Büros
ID D0144Provisionsfrei
Aktualisiert
Büroimmobilie - Düsseldorf, Hafen - D0144
Hafen, 40221, Düsseldorf, Nordrhein-Westfalen
24 € - 25 € / m²
- Fläche280 - 2.172 m²
- VerfügbarkeitSofort
- Objekt
- Ausstattung
- Lage und Verkehrsanbindung
- Grundrisse
- Exposé herunterladen
- Ihr Kontakt
- Anfrage senden
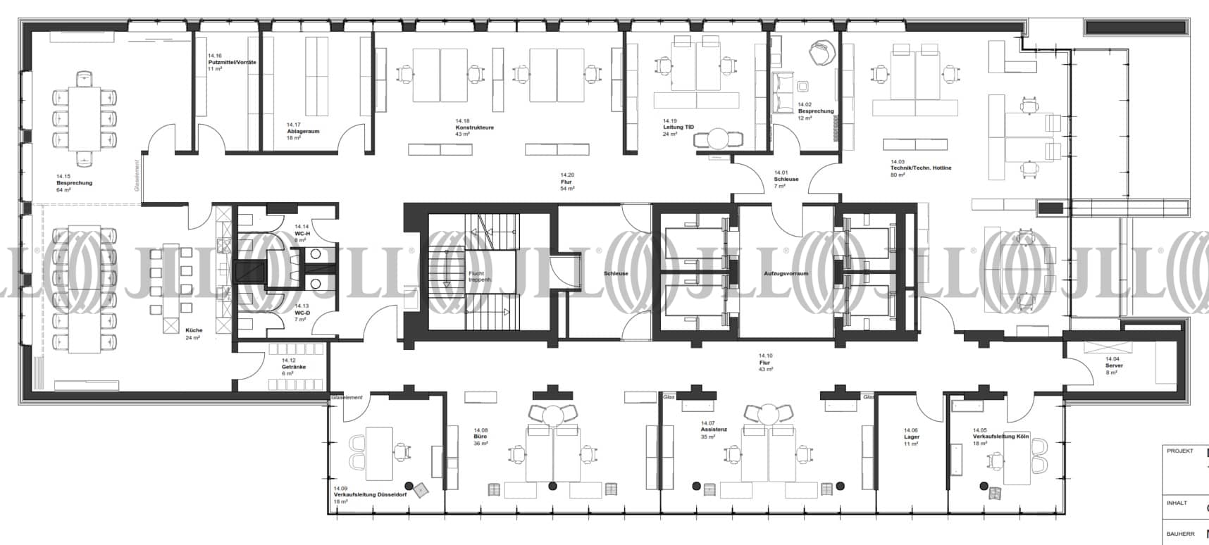
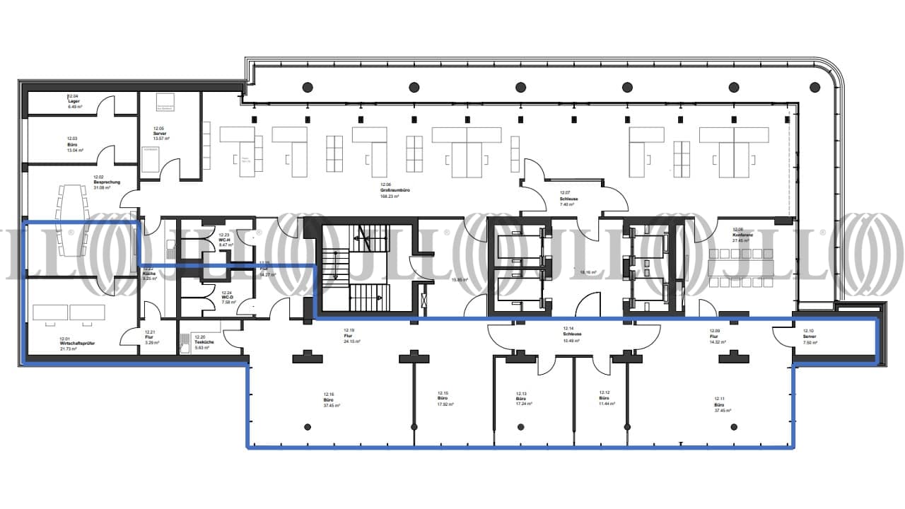
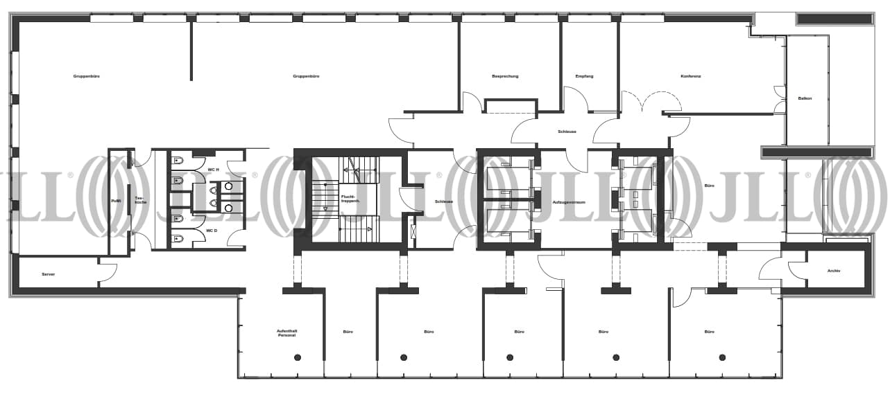
Objekt
Das 16-geschossige Bürohaus bietet eine moderne Architektur, welche sich im Inneren der Liegenschaft wieder findet. Aufgrund der Flexibilität können Mieteinheiten ab ca. 270 m² dargestellt werden. Die Mietflächen eignen sich ideal für eine Showroom-Nutzung; können jedoch auch als klassische Büroflächen genutzt werden.
Zertifizierungen
Energieausweis
Für diese Liegenschaft liegt ein Verbrauchsausweis vom 2022-02-01 vom Eigentümer/Vermieter vor. Die wesentlichen Energieträger der Liegenschaft sind Fernwärme,Strom. Der Endenergieverbrauch Strom beträgt 67.00 kWh/(m²*a). Der Endenergieverbrauch Wärme beträgt 65.00 kWh/(m²*a).Verfügbare Fläche
Lage und Verkehrsanbindung
Das Objekt befindet sich inmitten des Düsseldorfer Medienhafens. Die Mischung aus altem Industriecharakter und der modernen, architektonisch ansprechenden Skyline, sorgt für ein hochwertiges Ambiente. Hotels, Gastronomie und die Nähe zur City runden den Standort ab. Zahlreiche namhafte Unternehmen haben das Potenzial bereits erkannt und machen den Standort zum „Place-to-be“ außerhalb des CBD.
- Flughafen, Düsseldorf, Fahrzeit: 14 min
- Bundesautobahn, A 52, Fahrzeit: 7 min
- Bundesautobahn, A 46, Fahrzeit: 7 min
- Bus, Speditionstraße 723, 732, Gehzeit: 1 min
- Hauptbahnhof, Hauptbahnhof, Fahrzeit: 7 min
- Straßenbahn/Tram, Speditionsstraße 707, Gehzeit: 1 min
Ihr Kontakt

Anna-Louisa Kratochvil
Ihr Kontakt
















