Büros
ID D0120Aktualisiert
Büroimmobilie - Düsseldorf, Stadtmitte - D0120
Stadtmitte, 40211, Düsseldorf, Nordrhein-Westfalen
Provisionspflichtig: bei Anmietung 3 Netto-Monatsmieten zzgl. gesetzlicher Umsatzsteuer.** der Wert kann je nach Vertragslaufzeit variieren.
22,50 € / m²
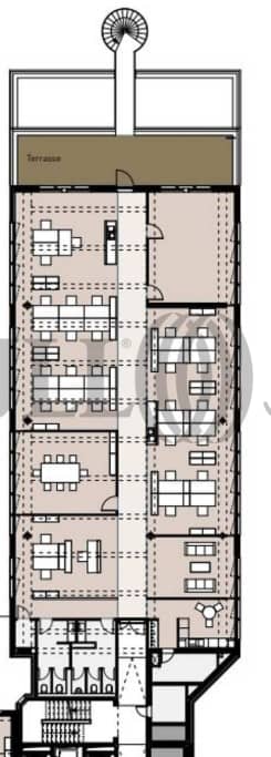
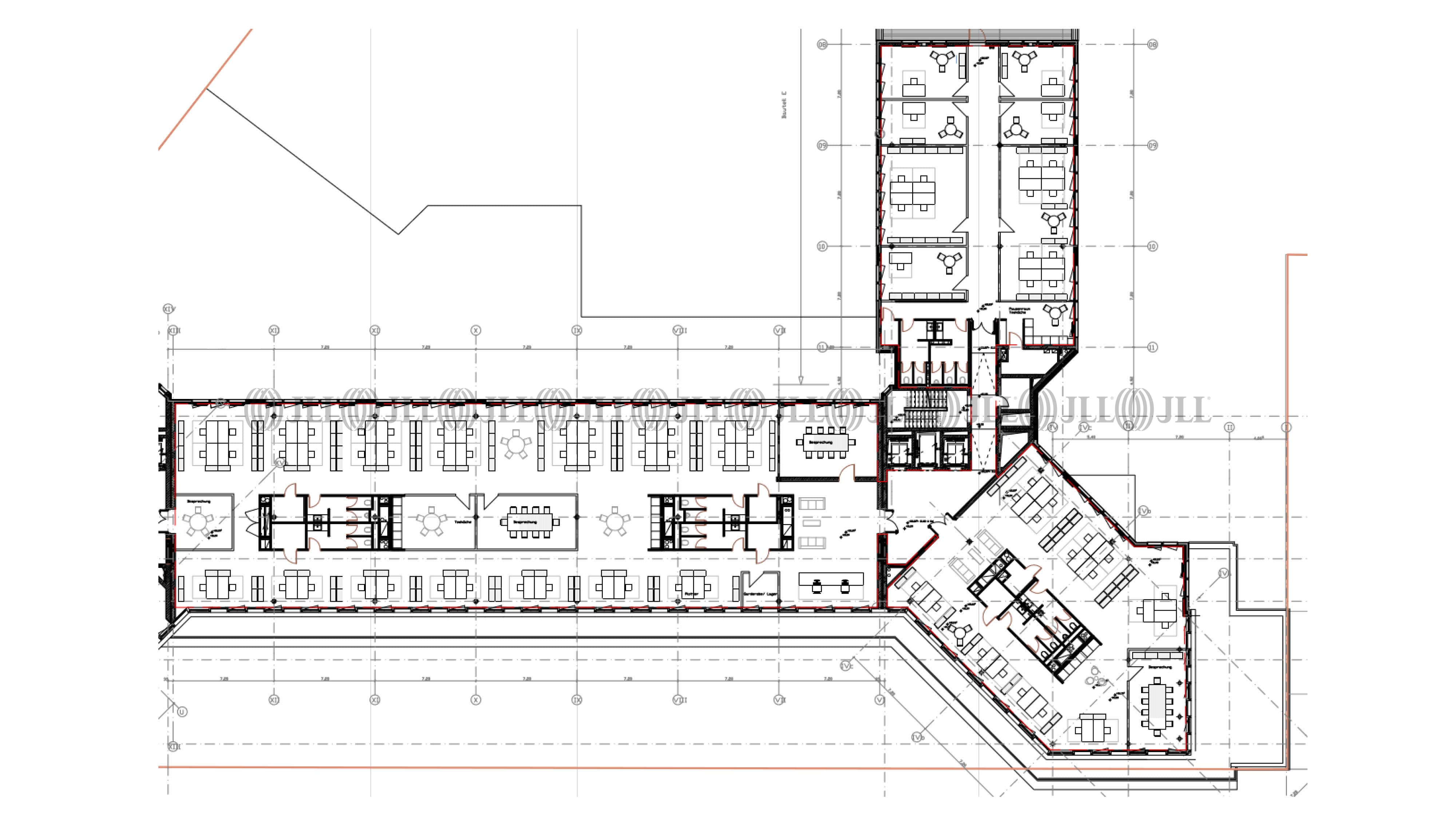
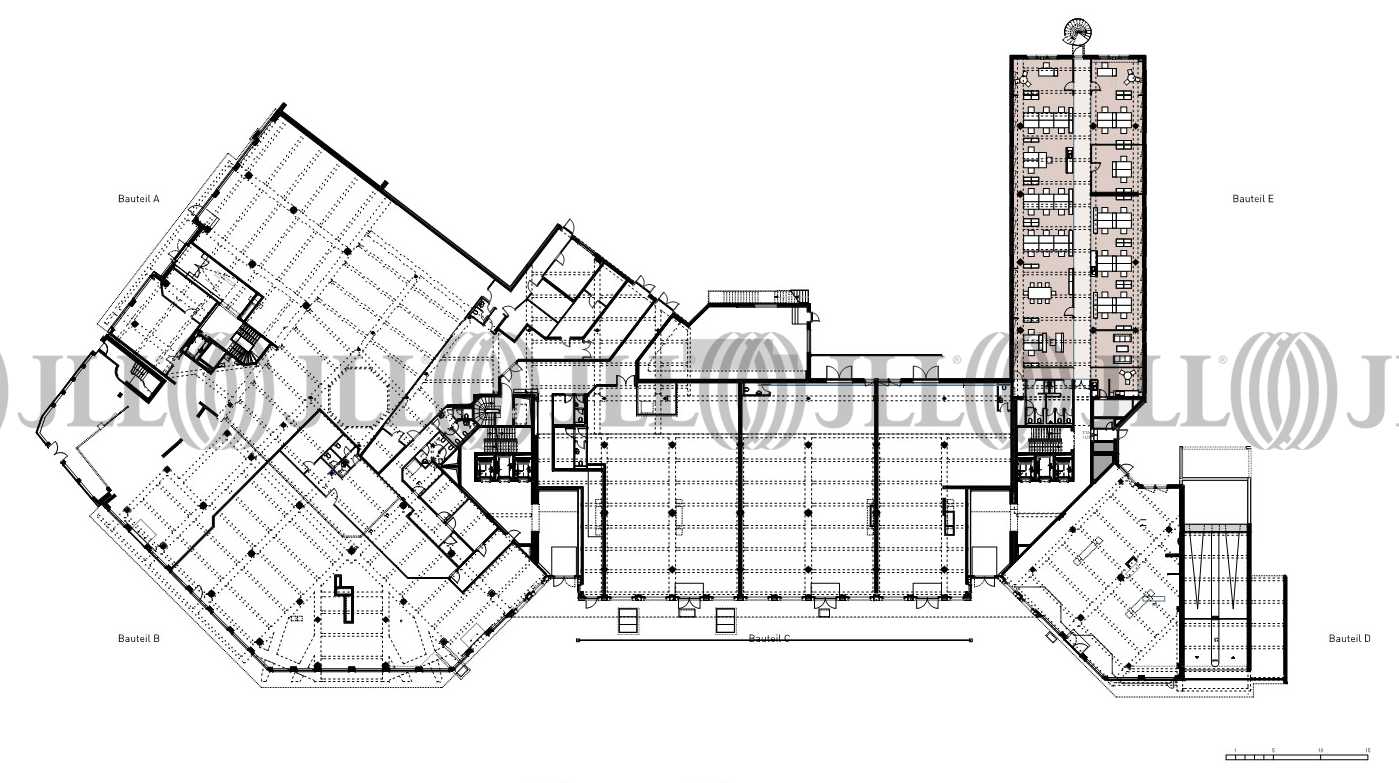
- Fläche436 - 4.259 m²
- VerfügbarkeitSofort
- Objekt
- Ausstattung
- Lage und Verkehrsanbindung
- Grundrisse
- Exposé herunterladen
- Ihr Kontakt
- Anfrage senden
Objekt
Das ehemalige „Wehrhahn-Center“ wurde im Jahr 2016 revitalisiert und in „Momentum“ unbenannt. Diese Revitalisierung hat den Standort rund um die bekannte Einkaufsstraße weiter aufgewertet. Das Momentum bietet sehr zentrumsnah auf insgesamt 18.000 m² die Möglichkeit, moderne und flexible Büroflächen anzumieten. Die Grundrisse sowie die verschiedenen Eingangssituationen bieten potenziellen Nutzern zahlreiche Möglichkeiten.
Zertifizierungen
Energieausweis
Für diese Liegenschaft liegt ein Bedarfsausweis vom 2019-06-04 vom Eigentümer/Vermieter vor. Der wesentliche Energieträger der Liegenschaft ist Fernwärme. Der Endenergiebedarf Strom beträgt 29.70 kWh/(m²*a). Der Endenergiebedarf Wärme beträgt 88.40 kWh/(m²*a).Verfügbare Fläche
Lage und Verkehrsanbindung
Die Liegenschaft befindet sich in zentraler Innenstadtlage von Düsseldorf. Dieser Standort zeichnet sich besonders durch eine sehr gute Infrastruktur und ÖPNV Anbindung aus. Zahlreiche Einkaufsmöglichkeiten, Geschäfte des alltäglichen Bedarfs sowie Restaurants und Ärzte sind in unmittelbarer Nähe zu finden. Die Altstadt direkt am Rhein gelegen sowie die beliebte Einkaufsmeile Königsallee laden zum Verweilen ein und liegen in fußläufiger Entfernung.
- Flughafen, Düsseldorf, Fahrzeit: 13 min
- Bundesautobahn, A 44, Fahrzeit: 10 min
- Bundesautobahn, A 46, Fahrzeit: 10 min
- Bus, Pempelforter Straße 721, 722, 737, 807, Gehzeit: 2 min
- U-Bahn, Pempelforter Straße U71, U72, U73, U83, Gehzeit: 2 min
- Hauptbahnhof, Düsseldorf, Fahrzeit: 5 min
Ihr Kontakt

Anna-Louisa Kratochvil
Ihr Kontakt












