Büros
ID D0103Provisionsfrei
Aktualisiert
Büroimmobilie - Erkrath - D0103
40699, Erkrath, Nordrhein-Westfalen
10 € - 12,50 € / m²
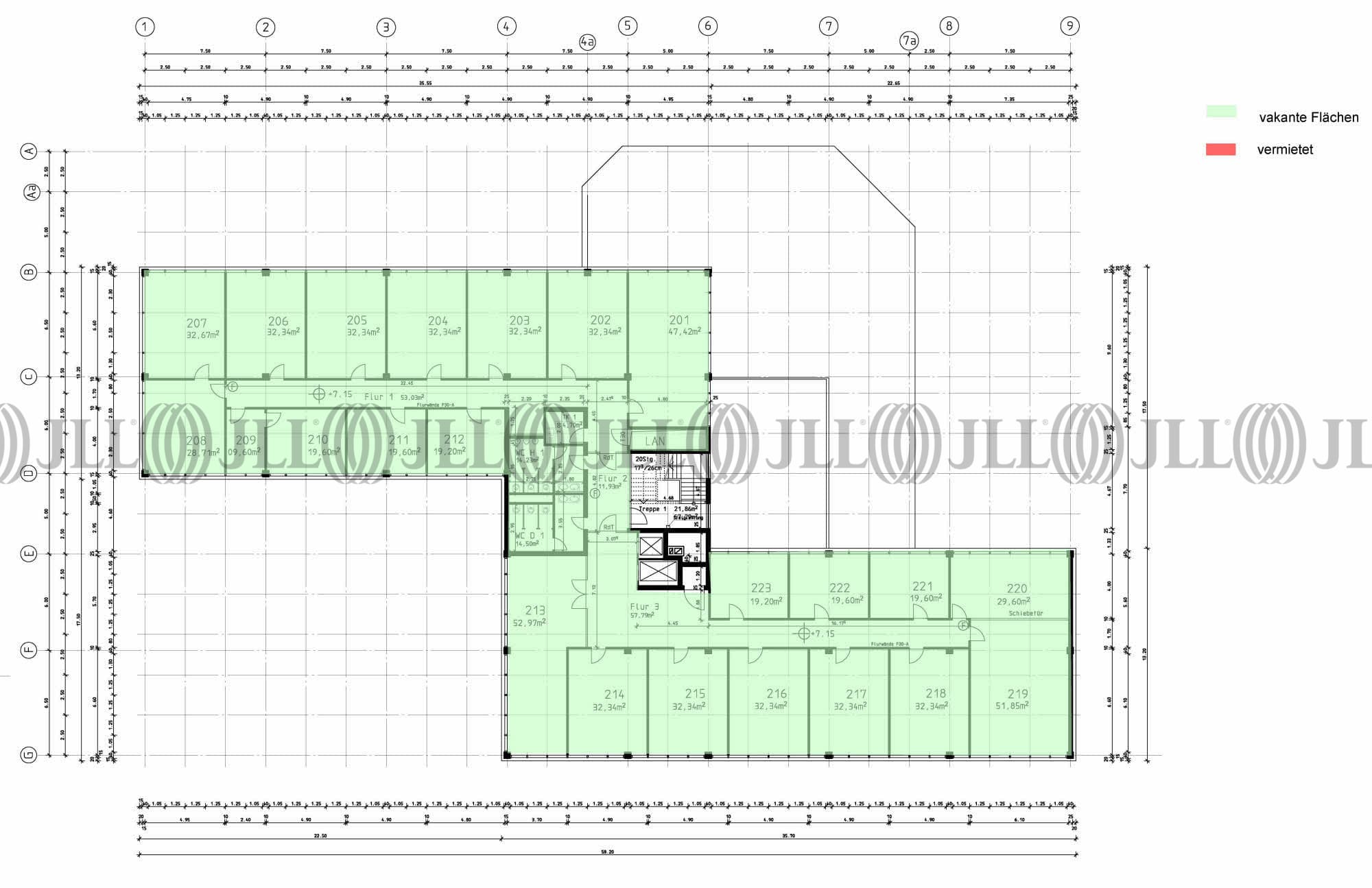
- Fläche180 - 3.560 m²
- VerfügbarkeitAuf Anfrage
- Objekt
- Ausstattung
- Lage und Verkehrsanbindung
- Grundrisse
- Exposé herunterladen
- Ihr Kontakt
- Anfrage senden
Objekt
Die Liegenschaft befindet sich gut sichtbar in Erkrath-Unterfeldhaus. Das Bürogebäude wurde 2012 umfangreich modernisiert, sodass die Fassade sowie der Eingangsbereich komplett neu gestaltet wurden. Die Flächen werden nach den Wünschen des zukünftigen Nutzers ausgebaut und renoviert übergeben.
Zertifizierungen
Energieausweis
Für diese Liegenschaft liegt ein Bedarfsausweis vom 2019-06-21 vom Eigentümer/Vermieter vor. Die wesentlichen Energieträger der Liegenschaft sind Erdgas schwer,Strom. Der Endenergiebedarf Strom beträgt 52.10 kWh/(m²*a). Der Endenergiebedarf Wärme beträgt 119.10 kWh/(m²*a).Verfügbare Fläche
Lage und Verkehrsanbindung
Erkrath-Unterfeldhaus ist ein begehrter Gewerbestandort, unmittelbar an der Stadtgrenze zu Düsseldorf. Dieses Gebiet liegt in dem günstigen Schnittpunkt der A 3 (Köln/ Oberhausen) und der A 46 (Düsseldorf/ Wuppertal) zwischen den Anschlussstellen „Hildener Kreuz“ und „Erkrath-Unterbach“. Beide Autobahnanschlussstellen sind in weniger als 5 Minuten zu erreichen. Dienstleister des täglichen Bedarfs befinden sich in der Nähe.
- Flughafen, Düsseldorf, Fahrzeit: 19 min
- Bundesautobahn, A 46, Fahrzeit: 3 min
- Bundesautobahn, A 3, Fahrzeit: 5 min
- Bus, Rohrsmühle 735, 737, 780, 781, Gehzeit: 7 min
- Hauptbahnhof, Erkrath, Fahrzeit: 2 min
Ihr Kontakt

Janice Lehmann
Ihr Kontakt










