Büros
ID D0094Provisionsfrei
Büroimmobilie - Düsseldorf, Mörsenbroich - D0094
Mörsenbroich, 40470, Düsseldorf, Nordrhein-Westfalen
Kontaktieren Sie uns für den Preis
- Fläche600 m²
- VerfügbarkeitSofort
- Objekt
- Ausstattung
- Lage und Verkehrsanbindung
- Grundrisse
- Exposé herunterladen
- Ihr Kontakt
- Anfrage senden
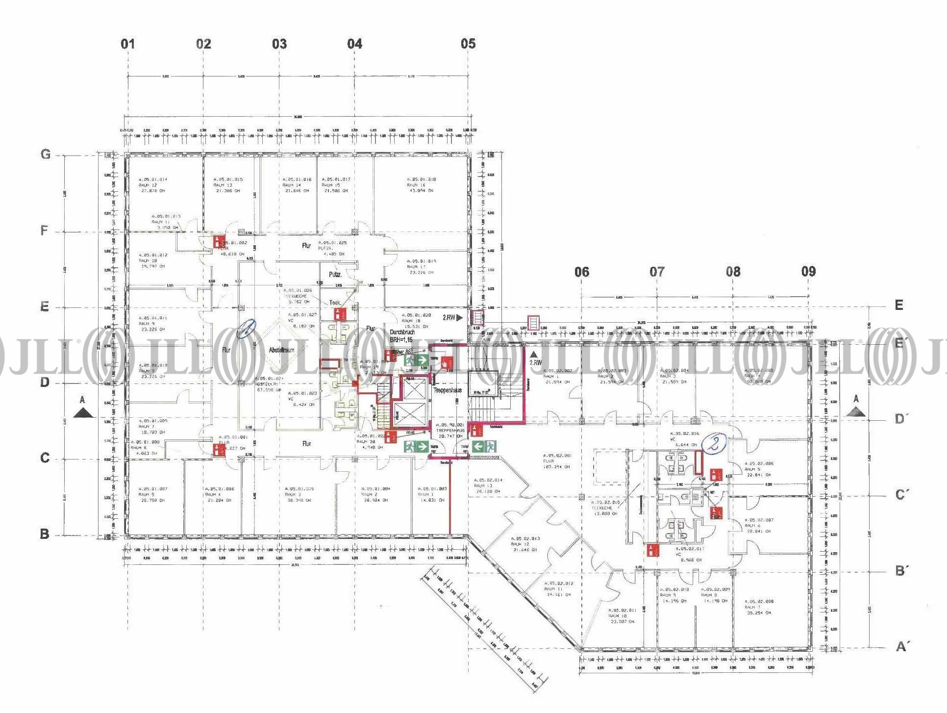
Objekt
Das 6-geschossige Gebäude wird über einen großzügigen und repräsentativen Eingangsbereich erschlossen, der 2012 hochwertig saniert wurde. Die Büroflächen sind individuell nutzbar und lassen sich flexibel an die Wünsche des Mieters anpassen.
Zertifizierungen
Energieausweis
Für diese Liegenschaft liegt ein Bedarfsausweis vom 2009-03-04 vom Eigentümer/Vermieter vor. Die wesentlichen Energieträger der Liegenschaft sind Strom,Erdgas schwer. Endenergiebedarf: 141.00000 kWh/(m²*a).Verfügbare Fläche
Lage und Verkehrsanbindung
Das Bürogebäude liegt im nördlichen Stadtteil Mörsenbroich. Die Nähe zum „Nördlichen Zubringer“ sorgt für eine perfekte Anbindung an das Autobahnnetz, so dass Flughafen und Messe schnell zu erreichen sind. Dienstleister des täglichen Bedarfs befinden sich in der Nähe.
- Flughafen, Düsseldorf, Fahrzeit: 10 min
- Bundesautobahn, A 52, Fahrzeit: 1 min
- Bundesautobahn, A 44, Fahrzeit: 3 min
- Bus, Vogelsanger Weg 756, 758, Gehzeit: 3 min
- U-Bahn, Am Schein U71, Gehzeit: 10 min
- Straßenbahn/Tram, Am Schein 701, Gehzeit: 10 min
- Hauptbahnhof, Düsseldorf, Fahrzeit: 12 min
Ihr Kontakt

Katharina Ufelmann
Ihr Kontakt










