Büros
ID D0084Aktualisiert
Büroimmobilie - Essen, Altenessen-Süd - D0084
Altenessen-Süd, 45141, Essen, Nordrhein-Westfalen
Provisionspflichtig: bei Anmietung 3 Netto-Monatsmieten zzgl. gesetzlicher Umsatzsteuer.** der Wert kann je nach Vertragslaufzeit variieren.
8 € - 13 € / m²
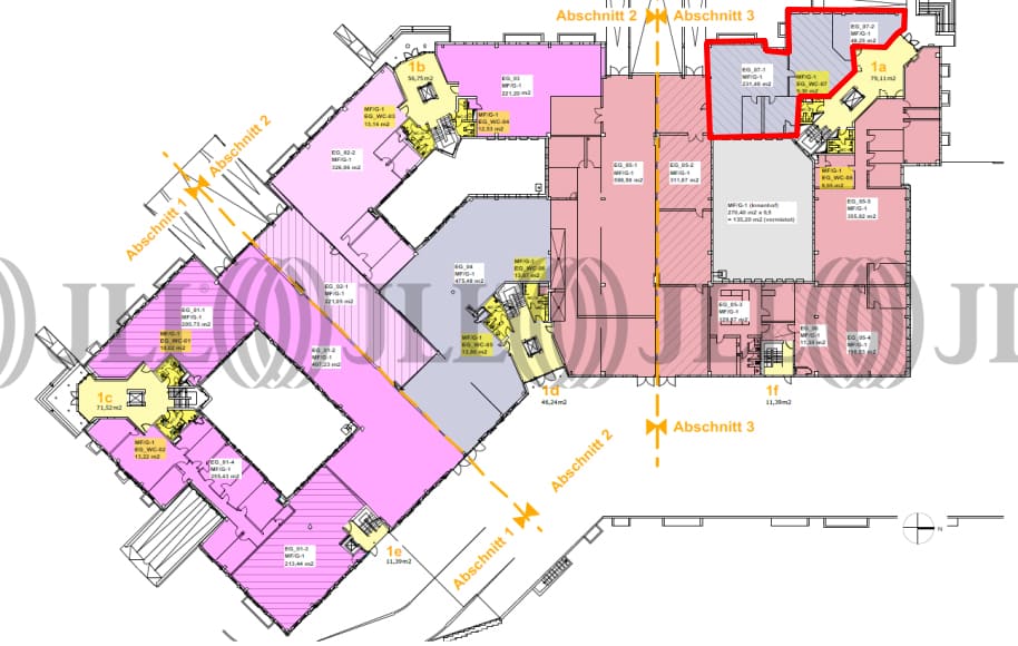
- Fläche518 - 5.605 m²
- VerfügbarkeitSofort
- Objekt
- Ausstattung
- Lage und Verkehrsanbindung
- Grundrisse
- Exposé herunterladen
- Ihr Kontakt
- Anfrage senden
Objekt
Das Objekt bietet eine ideale Kombination aus Büro-, Hallen- und Serviceflächen. Die Häuser verfügen über großzügige Foyers und befinden sich in einem sehr gepflegten Zustand. Die Mietflächen wirken durch großzügige Fensterflächen sehr hell und freundlich und werden in Abstimmung mit dem Mieter renoviert übergeben.
Zertifizierungen
Energieausweis
Für diese Liegenschaft liegt ein Verbrauchsausweis vom 2014-06-23 vom Eigentümer/Vermieter vor. Der wesentliche Energieträger der Liegenschaft ist Heizwerk, fossil. Der Endenergieverbrauch Strom beträgt 29.00 kWh/(m²*a). Der Endenergieverbrauch Wärme beträgt 32.30 kWh/(m²*a).Verfügbare Fläche
Lage und Verkehrsanbindung
Der Gewerbepark M1 ist ein Entwicklungsgebiet auf dem Gelände der ehemaligen Lokomotiv- und Wagonfabrik Krupp im Stadtteil Altenessen-Süd, welches durch die Bottroper Straße und den Berthold-Beitz-Boulevard begrenzt wird. Bis auf wenige freie Projektgrundstücke sind alle Flächen mit hochwertigen Bürogebäuden mit teilweise angeschlossener Hallennutzung bebaut. Die Gebäude überzeugen durch eine repräsentative Architektur bei zugleich höchster Funktionalität. Über die B 224 sind die Autobahnen A 40, A 42 und A 52 in wenigen Minuten erreichbar, wodurch der Standort aus allen Richtungen gut erreichbar ist.
- Flughafen, Düsseldorf, Fahrzeit: 25 min
- Bundesautobahn, A 42, Fahrzeit: 5 min
- Bundesautobahn, A 40, Fahrzeit: 10 min
- Hauptbahnhof, Essen, Fahrzeit: 7 min
- U-Bahn, Bamlerstraße U11, U17, Gehzeit: 8 min
- Bus, Gewerbepark M1 SB16, 166, 196, Gehzeit: 1 min
Ihr Kontakt

Martin Jahnke
Ihr Kontakt






