Büros
ID D0081Provisionsfrei
Aktualisiert
Büroimmobilie - Düsseldorf, Stadtmitte - D0081
Stadtmitte, 40212, Düsseldorf, Nordrhein-Westfalen
20,90 € / m²
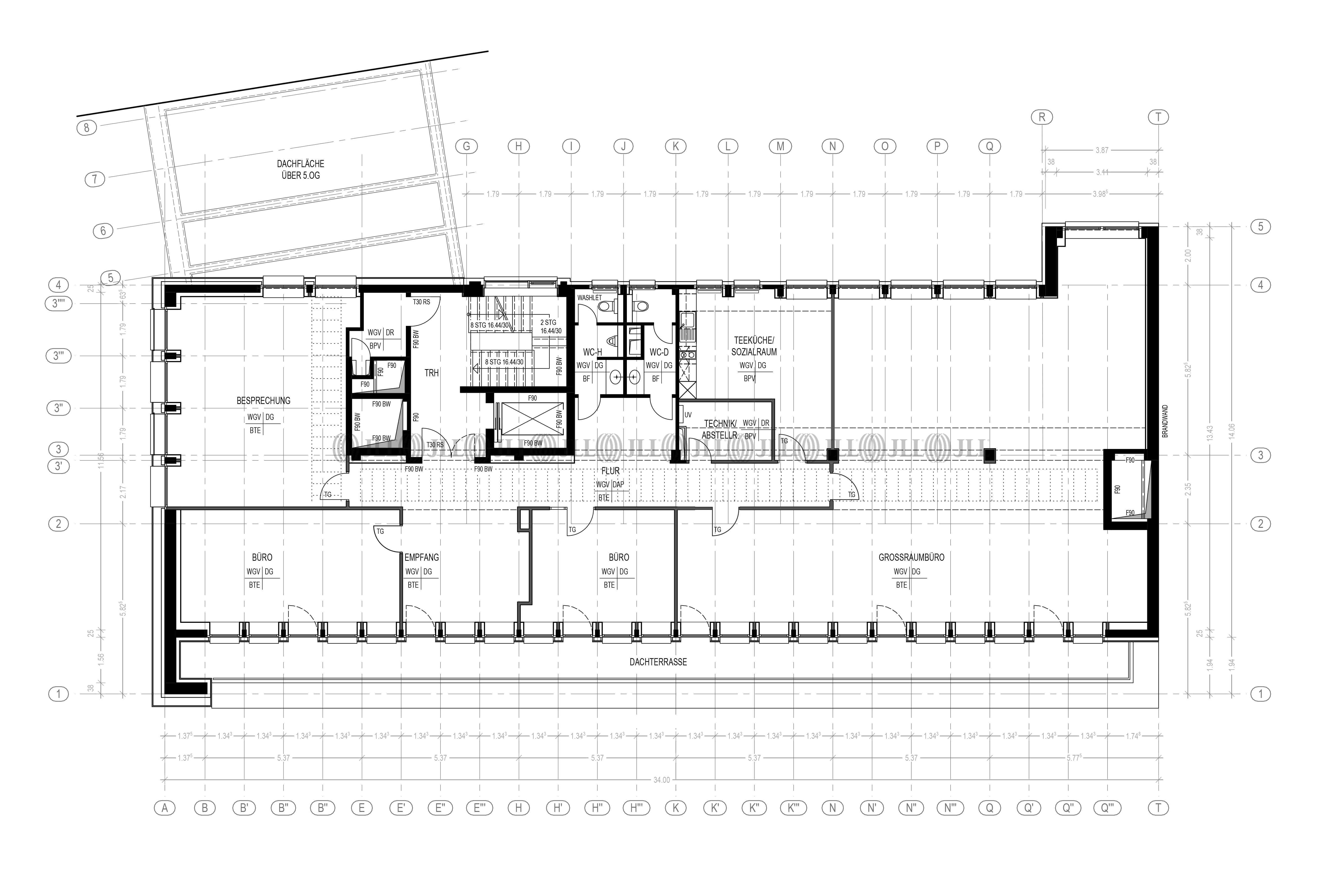
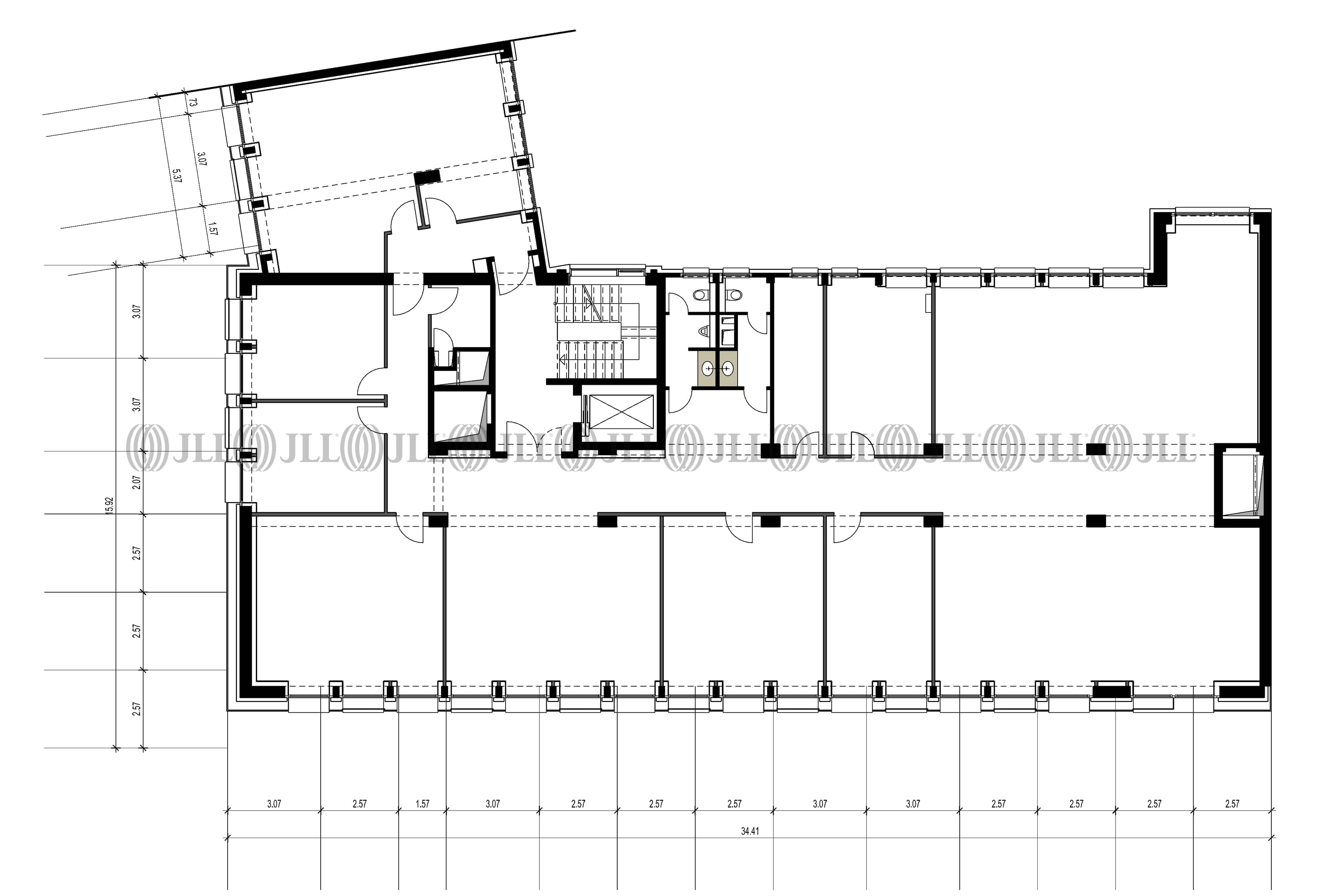
- Fläche481 m²
- VerfügbarkeitSofort
- Objekt
- Ausstattung
- Lage und Verkehrsanbindung
- Grundrisse
- Exposé herunterladen
- Ihr Kontakt
- Anfrage senden
Objekt
Das Gebäude wurde umfangreich saniert. Die Regelgeschosse werden als hochwertig modernisierte Büroflächen angeboten und lassen sich flexibel aufteilen.
Zertifizierungen
Energieausweis
Für diese Liegenschaft liegt ein Verbrauchsausweis vom 03.07.2025 vom Eigentümer/Vermieter vor. Der wesentliche Energieträger der Liegenschaft ist Erdgas schwer. Der Endenergieverbrauch Strom beträgt 81.5 kWh/(m²*a). Der Endenergieverbrauch Wärme beträgt 109 kWh/(m²*a).Verfügbare Fläche
Lage und Verkehrsanbindung
Die Berliner Allee verläuft parallel zur weltbekannten Königsallee und ist eine der Hauptverkehrsachsen der nordrhein-westfälischen Landeshauptstadt Düsseldorf. Durch die Projekte Wehrhahn-Linie und insbesondere dem Kö-Bogen I und II im nördlichen Abschnitt hat der Standort eine preisgekrönte und aufwertende Umgestaltung erlebt.
- Flughafen, Düsseldorf, Fahrzeit: 10 min
- Bundesautobahn, A 44, Fahrzeit: 7 min
- Bundesautobahn, A 52, Fahrzeit: 8 min
- Bus, Steinstraße/Königsallee 780, 782, 785, 805, 817, SB50, Gehzeit: 1 min
- Straßenbahn/Tram, Steinstraße / Königsallee 701, 705, 706, Gehzeit: 1 min
- U-Bahn, Steinstraße / Königsallee U70, U74, U75, U76, U77, U78, U79, Gehzeit: 1 min
- Hauptbahnhof, Düsseldorf, Fahrzeit: 2 min
Ihr Kontakt

Nell Ewert
Ihr Kontakt








