Büros
ID D0048Provisionsfrei
Aktualisiert
Büroimmobilie - Düsseldorf, Friedrichstadt - D0048
Friedrichstadt, 40215, Düsseldorf, Nordrhein-Westfalen
14 € - 15 € / m²
- Fläche322 - 2.522 m²
- VerfügbarkeitSofort
- Objekt
- Ausstattung
- Lage und Verkehrsanbindung
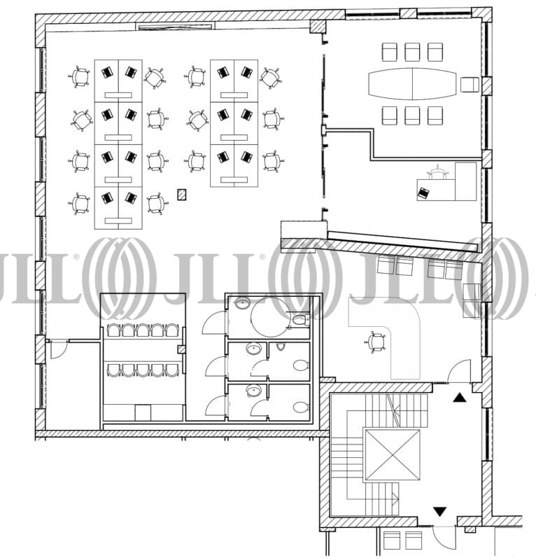
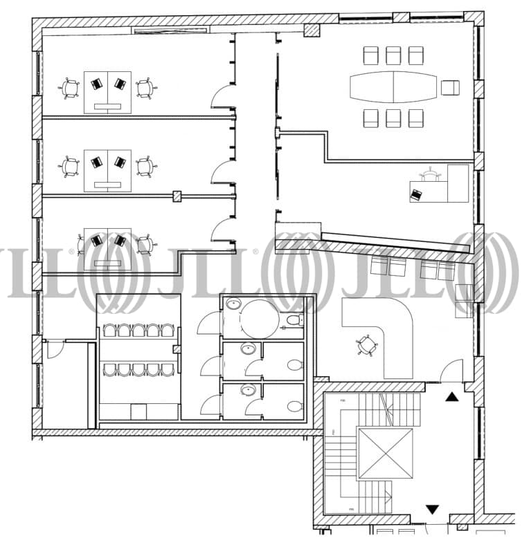
- Grundrisse
- Exposé herunterladen
- Ihr Kontakt
- Anfrage senden
Objekt
Das „Creativ Center Düsseldorf“ befindet sich in der denkmalgeschützten ehemaligen Haribo-Fabrik. Das architektonisch reizvolle Backsteingebäude wurde vor einigen Jahren aufwendig renoviert und wird heute vorwiegend von Unternehmen aus kreativen Berufssparten genutzt.
Verfügbare Fläche
Lage und Verkehrsanbindung
Das Objekt ist südlich der Düsseldorfer Innenstadt gelegen. Der größtenteils durch Wohnnutzung geprägte Teil der City verbindet den belebten CBD mit den Südbezirken. Der Standort zeichnet sich insbesondere durch die schnelle Anbindung an die südlich gelegenen Autobahnen aus. Dienstleister des täglichen Bedarfs befinden sich in der Nähe.
- Flughafen, Düsseldorf, Fahrzeit: 14 min
- Bundesautobahn, A 46, Fahrzeit: 6 min
- Bundesautobahn, A 52, Fahrzeit: 7 min
- Hauptbahnhof, Düsseldorf, Fahrzeit: 8 min
- Straßenbahn/Tram, Morsestraße 701, 704, 707, Gehzeit: 3 min
- Bus, Morsestraße 736, Gehzeit: 2 min
- S-Bahn, Friedrichstradt S8, S11, Gehzeit: 3 min
Ihr Kontakt

Janice Lehmann
Ihr Kontakt


























