Büros
ID D0047Büroimmobilie - Düsseldorf, Stadtmitte - D0047
Stadtmitte, 40211, Düsseldorf, Nordrhein-Westfalen
Provisionspflichtig: bei Anmietung 3 Netto-Monatsmieten zzgl. gesetzlicher Umsatzsteuer.** der Wert kann je nach Vertragslaufzeit variieren.
13,50 € - 16 € / m²
- Fläche307 - 927 m²
- VerfügbarkeitSofort
- Objekt
- Ausstattung
- Lage und Verkehrsanbindung
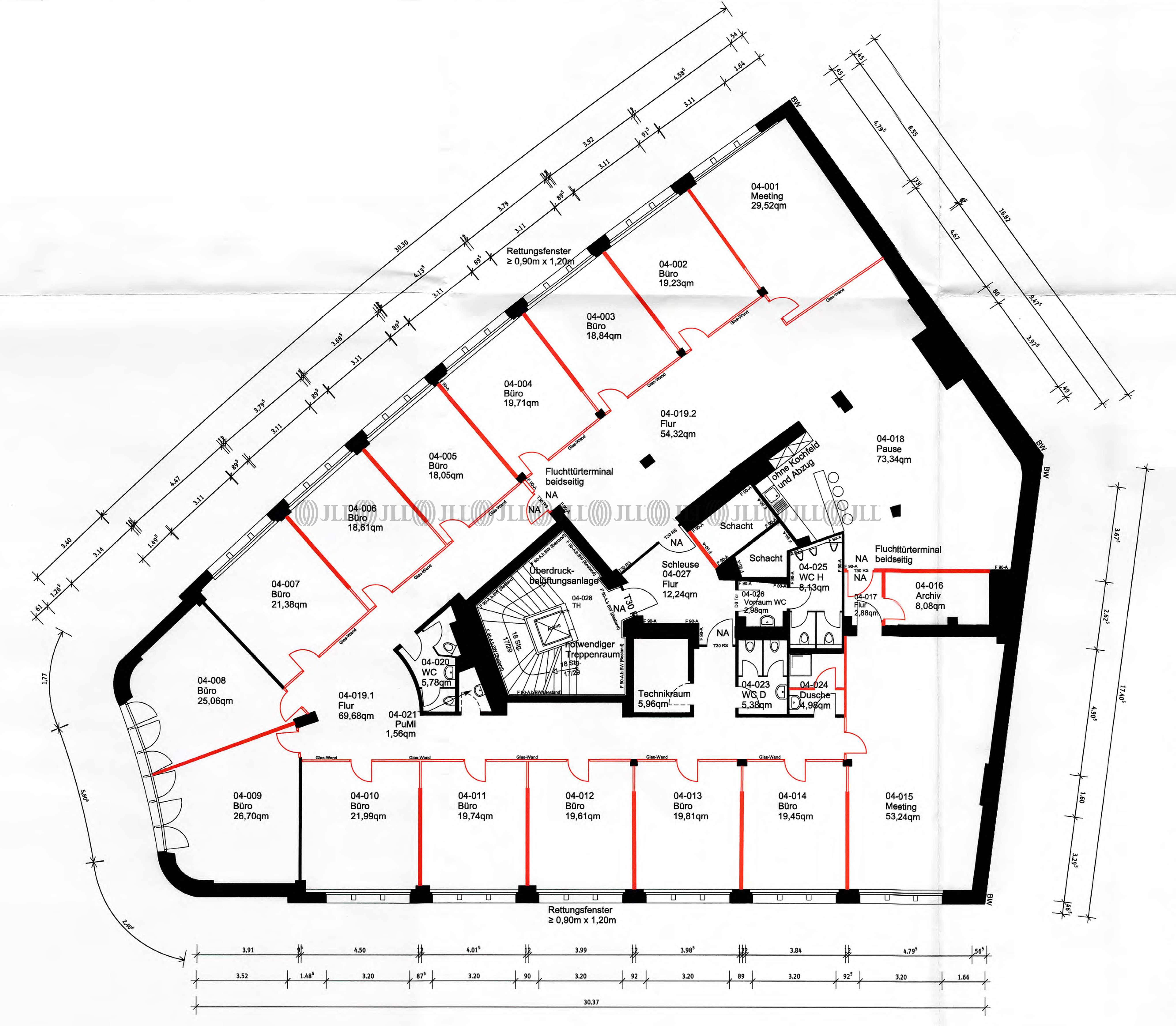
- Grundriss
- Exposé herunterladen
- Ihr Kontakt
- Anfrage senden
Objekt
Das markante Büro- und Geschäftshaus wurde erst kürzlich komplett modernisiert und saniert. Der Eingangsbereich wurde repräsentativ in Granit gestaltet, die Außenfassade ist durch eine neue Sandsteinfassade ersetzt worden.
Verfügbare Fläche
Lage und Verkehrsanbindung
Die Liegenschaft befindet sich in zentraler Innenstadtlage von Düsseldorf. Dieser Standort zeichnet sich besonders durch eine sehr gute Infrastruktur und ÖPNV Anbindung aus. Zahlreiche Einkaufsmöglichkeiten, Geschäfte des alltäglichen Bedarfs sowie Restaurants und Ärzte sind in unmittelbarer Nähe zu finden. Die Altstadt direkt am Rhein gelegen sowie die beliebte Einkaufsmeile Königsallee laden zum Verweilen ein und liegen in fußläufiger Entfernung.
- Hauptbahnhof, Düsseldorf, Fahrzeit: 7 min
- Straßenbahn/Tram, Jacobistraße 701, 703, 706, 707, 712, 713, 715, Gehzeit: 2 min
- Bus, Jacobistraße SB55, 737, 752, 754, Gehzeit: 2 min
- Bundesautobahn, A 52, Fahrzeit: 8 min
- Bundesautobahn, A 46, Fahrzeit: 8 min
- Flughafen, Düsseldorf, Fahrzeit: 12 min
Ihr Kontakt

Janice Lehmann
Ihr Kontakt








