Büros
ID D0015Provisionsfrei
Büroimmobilie - Frankfurt am Main, Westend-Süd - D0015
Westend-Süd, 60325, Frankfurt am Main, Hessen
34 € / m²
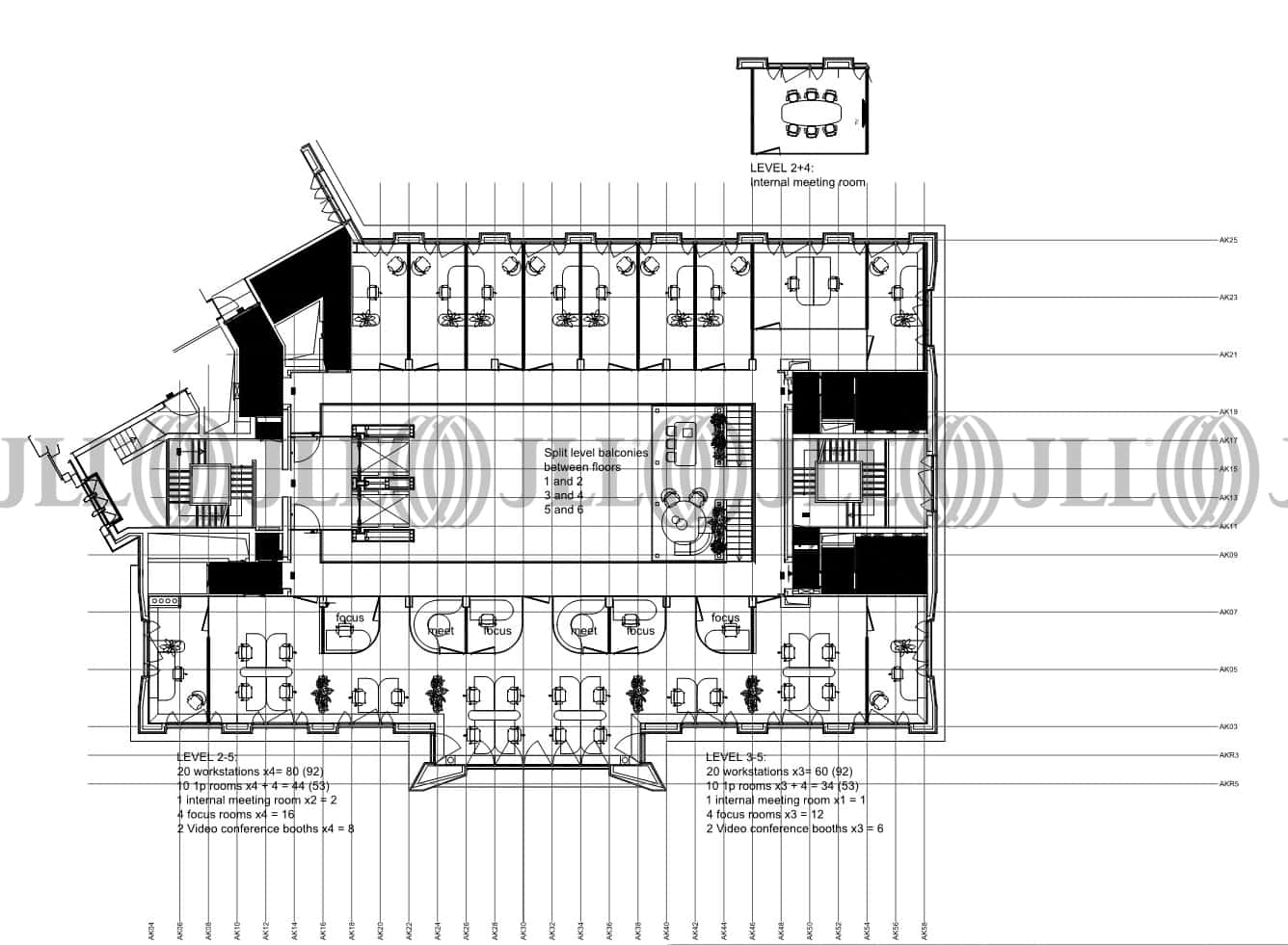
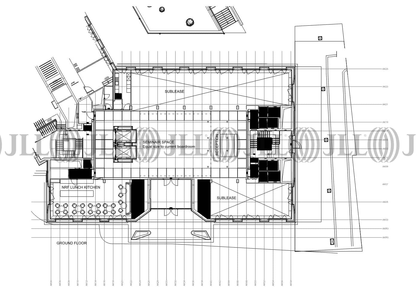
- Fläche402 - 7.435 m²
- VerfügbarkeitSofort
- Objekt
- Ausstattung
- Lage und Verkehrsanbindung
- Grundrisse
- Exposé herunterladen
- Ihr Kontakt
- Anfrage senden
Objekt
Das Areal zwischen Taunusanlage, Kettenhofweg und Guiollettstraße wurde komplett neu ausgestattet. Die neoklassizistische Fassade zur Guiollettstraße wurde abgetragen und in den Neubau wieder integriert. Die weiteren Fassaden wurden in einem attraktiven Naturstein ausgebildet und das Entree zur Taunusanlage hin erhielt eine markante Gestaltung mit großem Atrium. Insgesamt wurden zwei Baukörper in “Kammform“ errichtet. Durch diese entstand ein geschützter Innenhof, der gärtnerisch reizvoll angelegt wurde. Die Flächen verteilen sich auf 7 Geschosse, die alle Formen der Büronutzung zulassen.
Der Stellplatzschlüssel beträgt 1 Stellplatz/100 m² angemieteter Bürofläche.
Der Stellplatzschlüssel beträgt 1 Stellplatz/100 m² angemieteter Bürofläche.
Zertifizierungen
Energieausweis
DGNB: GoldFür diese Liegenschaft liegt ein Bedarfsausweis vom 19.06.2023 vom Eigentümer/Vermieter vor. Die wesentlichen Energieträger der Liegenschaft sind Fernwärme, Nahwärme, Strom. Der Endenergiebedarf Strom beträgt 99 kWh/(m²*a). Der Endenergiebedarf Wärme beträgt 41 kWh/(m²*a).
Verfügbare Fläche
Lage und Verkehrsanbindung
- Hauptbahnhof, Frankfurt am Main, Fahrzeit: 2 min
- Hauptbahnhof, Frankfurt am Main, Gehzeit: 8 min
- S-Bahn, Taunusanlage, Linie S1-S6, S8, S9, Gehzeit: 1 min
- Bundesautobahn, A 648, Fahrzeit: 5 min
- Bundesautobahn, A 5, Fahrzeit: 10 min
- Flughafen, Frankfurt am Main, Fahrzeit: 17 min
Ihr Kontakt

Genia Eitan
Ihr Kontakt






















