Büros
ID D0001Provisionsfrei
Büroimmobilie - Frankfurt am Main, Westend-Süd - D0001
Westend-Süd, 60325, Frankfurt am Main, Hessen
23 € / m²
- Fläche132 - 3.537 m²
- VerfügbarkeitAuf Anfrage
- Objekt
- Ausstattung
- Lage und Verkehrsanbindung
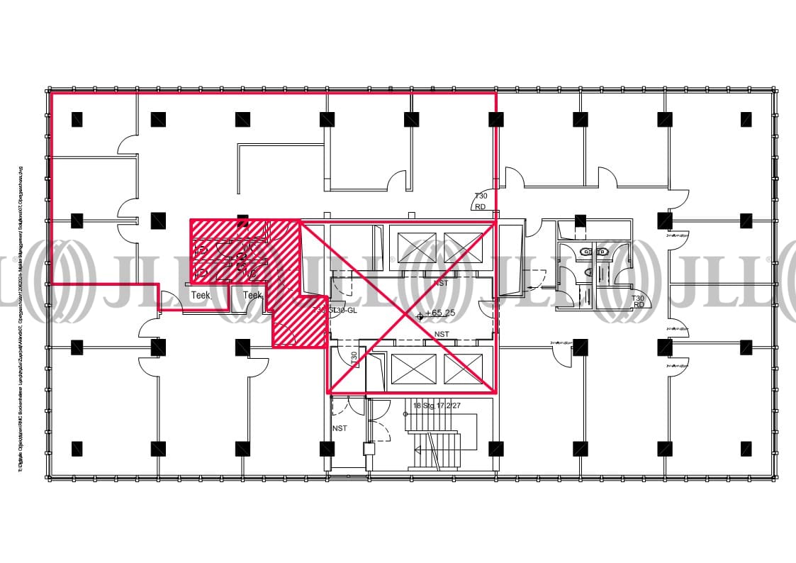
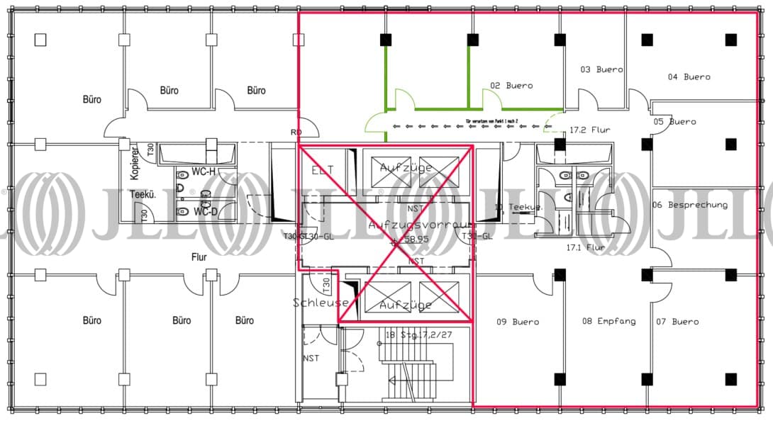
- Grundrisse
- Exposé herunterladen
- Ihr Kontakt
- Anfrage senden
Objekt
Das Rhein-Main-Center ist ein 22-geschossiges Bürogebäude, das umfangreich umgebaut wurde. Es verfügt über moderne und individuell teilbare Büroetagen mit viel Tageslicht sowie Serviceflächen im Erdgeschoss. Stellplätze sind sind vorhanden, zusätzlich können bei Bedarf weitere Stellplätze angemietet werden. Der Stellplatzschlüssel beträgt 1 Stellplatz pro 100 m².
Zertifizierungen
Energieausweis
Für diese Liegenschaft liegt ein Verbrauchsausweis vom 23.08.2024 vom Eigentümer/Vermieter vor. Die wesentlichen Energieträger der Liegenschaft sind Öl, Strom. Der Endenergieverbrauch Strom beträgt 68 kWh/(m²*a). Der Endenergieverbrauch Wärme beträgt 166 kWh/(m²*a).Verfügbare Fläche
Lage und Verkehrsanbindung
- Hauptbahnhof, Frankfurt am Main, Gehzeit: 10 min
- Hauptbahnhof, Frankfurt am Main, Fahrzeit: 7 min
- U-Bahn, Westend, Linie U6, U7, Gehzeit: 2 min
- Bus, Alte Oper, Linie 64, Gehzeit: 5 min
- Bundesautobahn, A 66, Fahrzeit: 5 min
- Bundesautobahn, A 648, Fahrzeit: 5 min
- Bundesautobahn, A 5, Fahrzeit: 10 min
- Flughafen, Frankfurt am Main, Fahrzeit: 19 min
Ihr Kontakt

Christian Lütter
Ihr Kontakt







