Büros
ID B3325Büroimmobilie - Berlin, Mitte - B3325
Mitte, 10117, Berlin, Berlin
Provisionspflichtig: bei Anmietung 3 Netto-Monatsmieten zzgl. gesetzlicher Umsatzsteuer.** der Wert kann je nach Vertragslaufzeit variieren.
Kontaktieren Sie uns für den Preis
- Fläche2.600 m²
- Verfügbarkeit01.01.2027
- Objekt
- Lage und Verkehrsanbindung
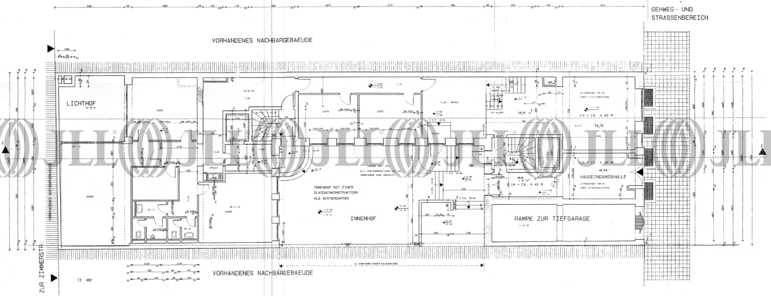
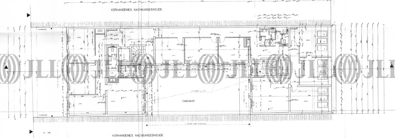
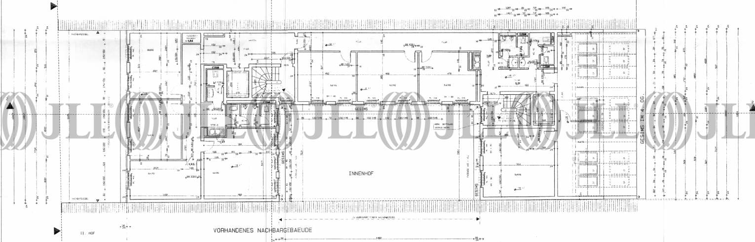
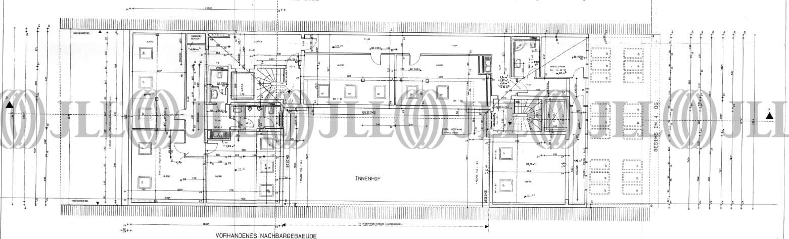
- Grundrisse
- Exposé herunterladen
- Ihr Kontakt
- Anfrage senden
Objekt
Bei dem Gebäude handelt es sich um ein denkmalgeschütztes Bauwerk aus dem 19. Jahrhundert, das ursprünglich als zweigeschossiges Wohnhaus errichtet wurde. Im Laufe der Zeit wurde es mehrfach erweitert und aufgestockt, unter anderem durch einen Seitenflügel und ein Quergebäude, wodurch es seine heutige viergeschossige Struktur erhielt. Eine Besonderheit stellt die aufwendig gestaltete und restaurierte Fassadenbemalung im Stil der Neorenaissance dar, die dem Gebäude einen repräsentativen Charakter verleiht. Im Inneren sind ebenfalls historische Elemente wie spätklassizistische Wandfassungen mit Schablonenmalereien erhalten geblieben. Die hohen Decken und großzügigen Fensterflächen sorgen für helle und lichtdurchflutete Räumlichkeiten. Nach einer wechselvollen Nutzungsgeschichte, die von einer Likörfabrik über verschiedene Unternehmenssitze bis hin zu einer Parteizentrale reicht, präsentiert sich das Anwesen heute als modern ausgestattetes Büro- und Geschäftshaus, das historischen Charme mit zeitgemäßen Arbeitswelten verbindet.
Verfügbare Fläche
Lage und Verkehrsanbindung
Die Immobilie befindet sich in einer äußerst zentralen und prestigeträchtigen Lage im Herzen Berlins. Das Umfeld ist geprägt von einer hohen Dichte an Regierungsgebäuden, Ministerien und Botschaften sowie zahlreichen Unternehmens- und Verbandsrepräsentanzen. Diese exklusive Nachbarschaft unterstreicht die Bedeutung des Standortes als politisches und wirtschaftliches Zentrum der Hauptstadt. In unmittelbarer Nähe befinden sich bedeutende historische Plätze, Prachtstraßen und kulturelle Einrichtungen von Weltrang, die eine inspirierende und repräsentative Atmosphäre schaffen. Die ausgezeichnete Anbindung an den öffentlichen Nahverkehr ermöglicht eine schnelle Erreichbarkeit aller Teile der Stadt. Die umliegende Infrastruktur bietet zudem eine Vielzahl an gastronomischen Angeboten und Einkaufsmöglichkeiten, die den täglichen Bedarf weit übersteigen und die hohe Attraktivität dieses innerstädtischen Quartiers abrunden.
- U-Bahn, Stadtmitte, Linien U2, U6, Gehzeit: 3 min
- Bus, U Stadtmitte, Linie 200, Gehzeit: 3 min
- Bundesautobahn, A 100, Fahrzeit: 20 min
- Bundesstraße, B1 , Fahrzeit: 1 min
- Flughafen, Berlin Brandenburg, Fahrzeit: 30 min
Ihr Kontakt

Sophie Schröter
Ihr Kontakt
Marktinformationen
Mietmarkt
Mitte, Berlin
siehe 170 passende MietobjekteErfahren Sie mehr
* Durchschnittspreis auf Grundlage historischer Transaktionen.


