Büros
ID B3324Provisionsfrei
Büroimmobilie - Berlin, Mitte - B3324
Mitte, 10178, Berlin, Berlin
40 € - 60 € / m²
- Fläche546 - 37.820 m²
- VerfügbarkeitII quartal 2027
- Objekt
- Ausstattung
- Lage und Verkehrsanbindung
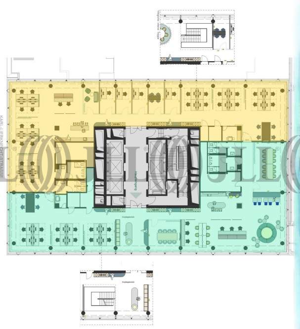
- Grundriss
- Exposé herunterladen
- Ihr Kontakt
- Anfrage senden
Objekt
In prominenter Lage erhebt sich ein modernes Hochhaus, das mit seiner klaren und zeitlosen Architektursprache neue Maßstäbe setzt. Das 146 Meter hohe Gebäude mit seinen 34 Stockwerken fügt sich harmonisch in das urbane Umfeld ein und bildet eine Symbiose mit einem bereits bestehenden Warenhaus. Die Fassade aus Glas und hellem Naturstein verleiht dem Turm eine filigrane Eleganz und sorgt für lichtdurchflutete Büroflächen, die einen ungehinderten Blick über die Stadt ermöglichen. Im Inneren zeichnet sich das Gebäude durch eine hohe Flexibilität und Nachhaltigkeit aus, was durch Zertifizierungen nach LEED und WELL Standards unterstrichen wird. Neben den rund 40.000 Quadratmetern an attraktiven Büroflächen beherbergt das Gebäude auch öffentlich zugängliche Bereiche. Eine repräsentative, zehn Meter hohe Lobby mit einer Kaffeebar empfängt Besucher und Mitarbeiter. In den oberen Etagen befinden sich eine Konferenzetage mit Skylounge und eine Dachterrasse, die zum Verweilen und Netzwerken einladen.
Zertifizierungen
Energieausweis
LEED: Platinum WELL: Gold WIREDSCORE: PlatinumVerfügbare Fläche
Lage und Verkehrsanbindung
Der Standort im Herzen der deutschen Hauptstadt zeichnet sich durch seine außergewöhnliche Zentralität und Lebendigkeit aus. An einem der bekanntesten und frequentiertesten Plätze Europas gelegen, profitiert diese Lage von einer unübertroffenen Anbindung an den öffentlichen Nah- und Fernverkehr. Zahlreiche S- und U-Bahnlinien, Straßenbahnen und Busse vernetzen den Ort mit allen Teilen der Metropole und dem Umland. Das direkte Umfeld ist ein dynamisches urbanes Quartier, das eine vielfältige Mischung aus Einzelhandel, Gastronomie und kulturellen Einrichtungen bietet. Die unmittelbare Nachbarschaft zu einem großen Warenhaus sowie zu zahlreichen weiteren Geschäften, Restaurants und Cafés sorgt für eine exzellente Nahversorgung und eine hohe Aufenthaltsqualität. Diese pulsierende Umgebung zieht täglich eine große Zahl an Pendlern, Touristen und Anwohnern an und macht sie zu einem der gefragtesten Geschäfts- und Arbeitsstandorte in der gesamten Stadt. Die ständige Weiterentwicklung des Areals durch neue Bauprojekte trägt zusätzlich zur Attraktivität und zukünftigen Bedeutung dieses zentralen Knotenpunktes bei.
- S-Bahn, Alexanderplatz; Linien S3, S5, S7, S75, S9, Gehzeit: 1 min
- U-Bahn, Alexanderplatz, U2, U5, U8, Gehzeit: 1 min
- Straßenbahn/Tram, S+U Alexanderplatz/Gontardstr.; Linien M2, M4, M5, M6, Gehzeit: 1 min
- Bus, Memhardstr.; Linien 100, 200, 300, Gehzeit: 1 min
- Bundesautobahn, A 100, Fahrzeit: 25 min
- Flughafen, Berlin Brandenburg, Fahrzeit: 40 min
Ihr Kontakt

Steve Ritt
Ihr Kontakt
Marktinformationen
Mietmarkt
Mitte, Berlin
Gew. Ø-Miete
40 € - 60 € / m²
siehe 170 passende MietobjekteErfahren Sie mehr* Durchschnittspreis auf Grundlage historischer Transaktionen.








