Büros
ID B3296Büroimmobilie - Berlin, Lichtenberg - B3296
Lichtenberg, 10367, Berlin, Berlin
Provisionspflichtig: bei Anmietung 3 Netto-Monatsmieten zzgl. gesetzlicher Umsatzsteuer.** der Wert kann je nach Vertragslaufzeit variieren.
Kontaktieren Sie uns für den Preis
- Fläche1.400 m²
- VerfügbarkeitSofort
- Ausstattung
- Lage und Verkehrsanbindung
- Grundrisse
- Exposé herunterladen
- Ihr Kontakt
- Anfrage senden
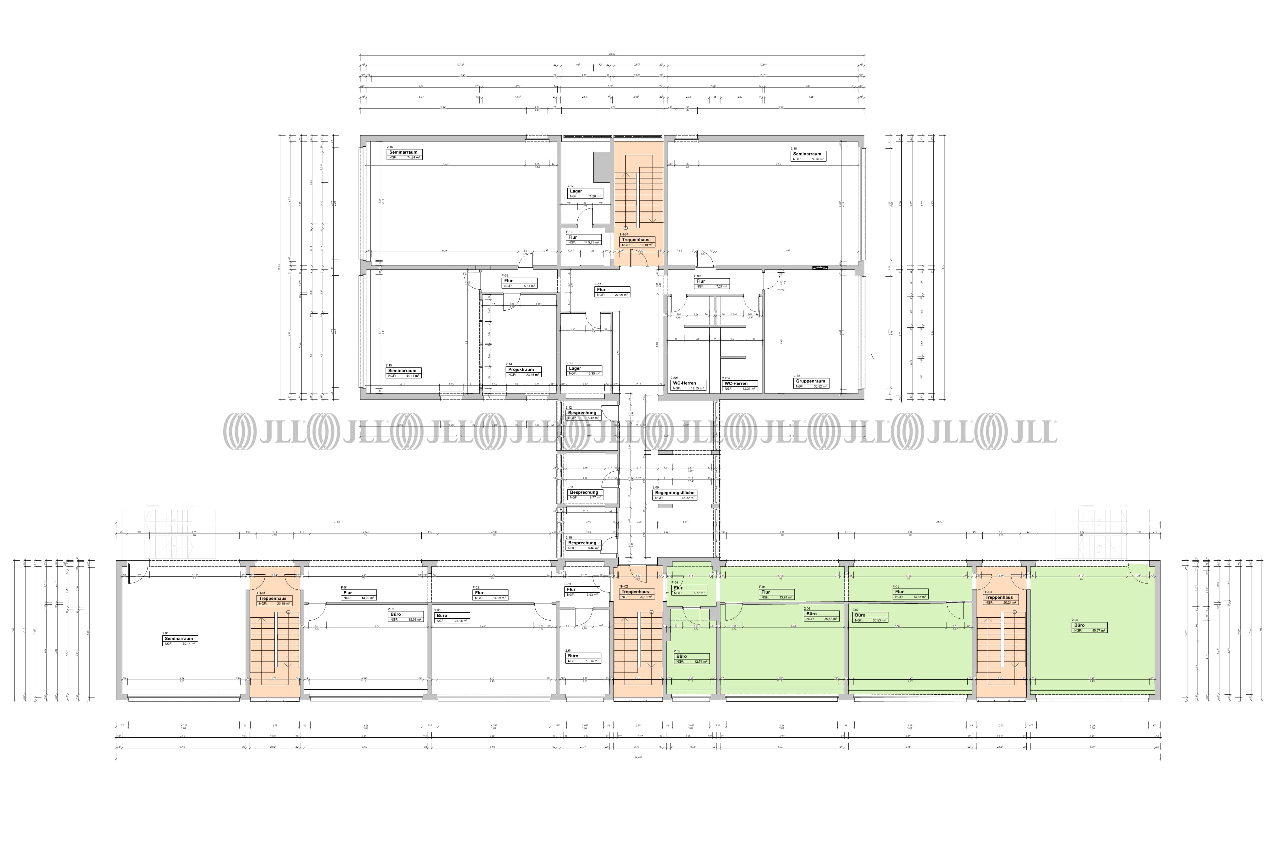
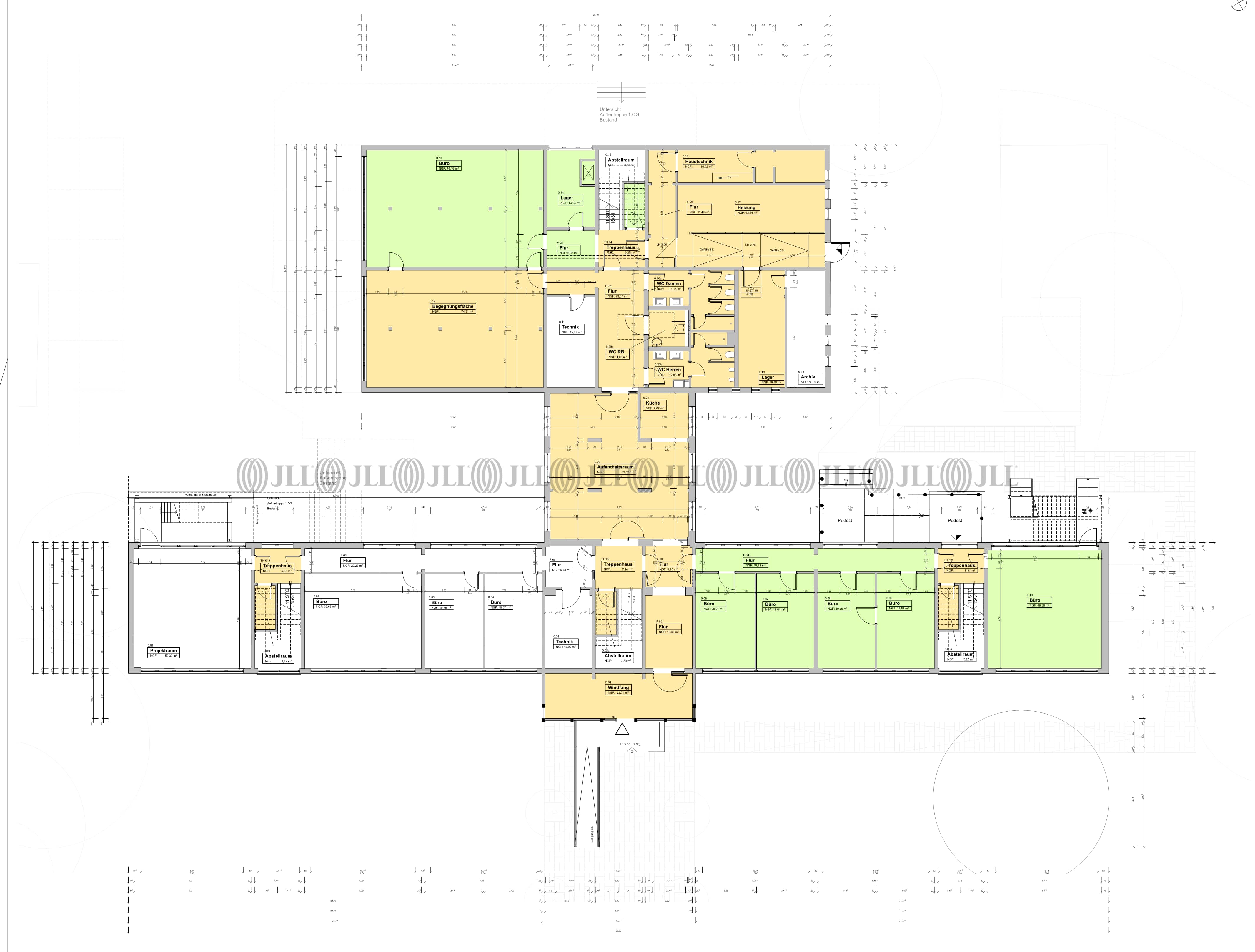
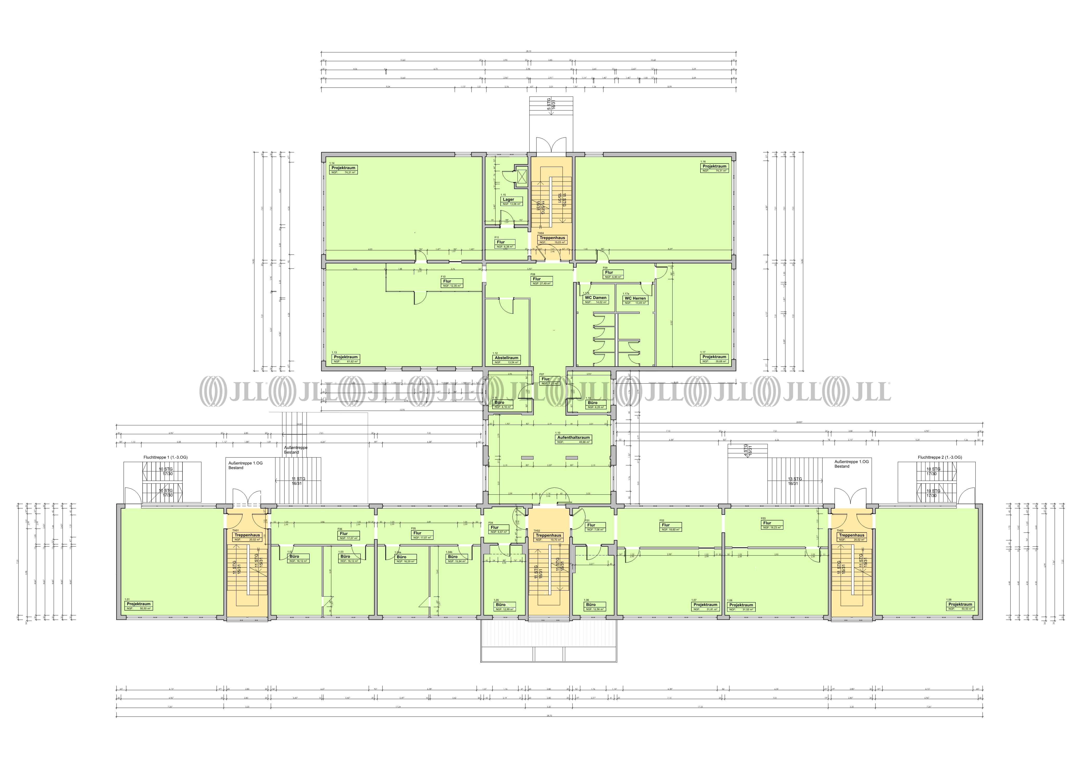
Verfügbare Fläche
Lage und Verkehrsanbindung
Das Objekt befindet sich im Bezirk Berlin- Lichtenberg, im Gewerbegebiet. Die zentrale Lage bietet eine ausgezeichnete Verkehrsanbindung: Der Alexanderplatz im Herzen Berlins ist in nur zehn Bahnminuten erreichbar. Restaurants, Einkaufszentren, Sportzentren und Hotels befinden sich ebenfalls in der unmittelbaren Umgebung.
- Straßenbahn/Tram, Möllendorffstr./Storkower Str., Linien 21, 50, M10, Gehzeit: 8 min
- Bus, Josef-Orlopp-Str./Vulkanstr., Linien 240, 250, Gehzeit: 2 min
- Bundesautobahn, A 100, Fahrzeit: 15 min
- Bundesstraße, B 1, Fahrzeit: 5 min
- Flughafen, Berlin Brandenburg, Fahrzeit: 40 min
Ihr Kontakt

Alexandra Teich
Ihr Kontakt












