Büros
ID B3261Provisionsfrei
Büroimmobilie - Berlin, Reinickendorf - B3261
Reinickendorf, 13403, Berlin, Berlin
10,70 € / m²
- Fläche225 - 711 m²
- VerfügbarkeitSofort
- Objekt
- Ausstattung
- Lage und Verkehrsanbindung
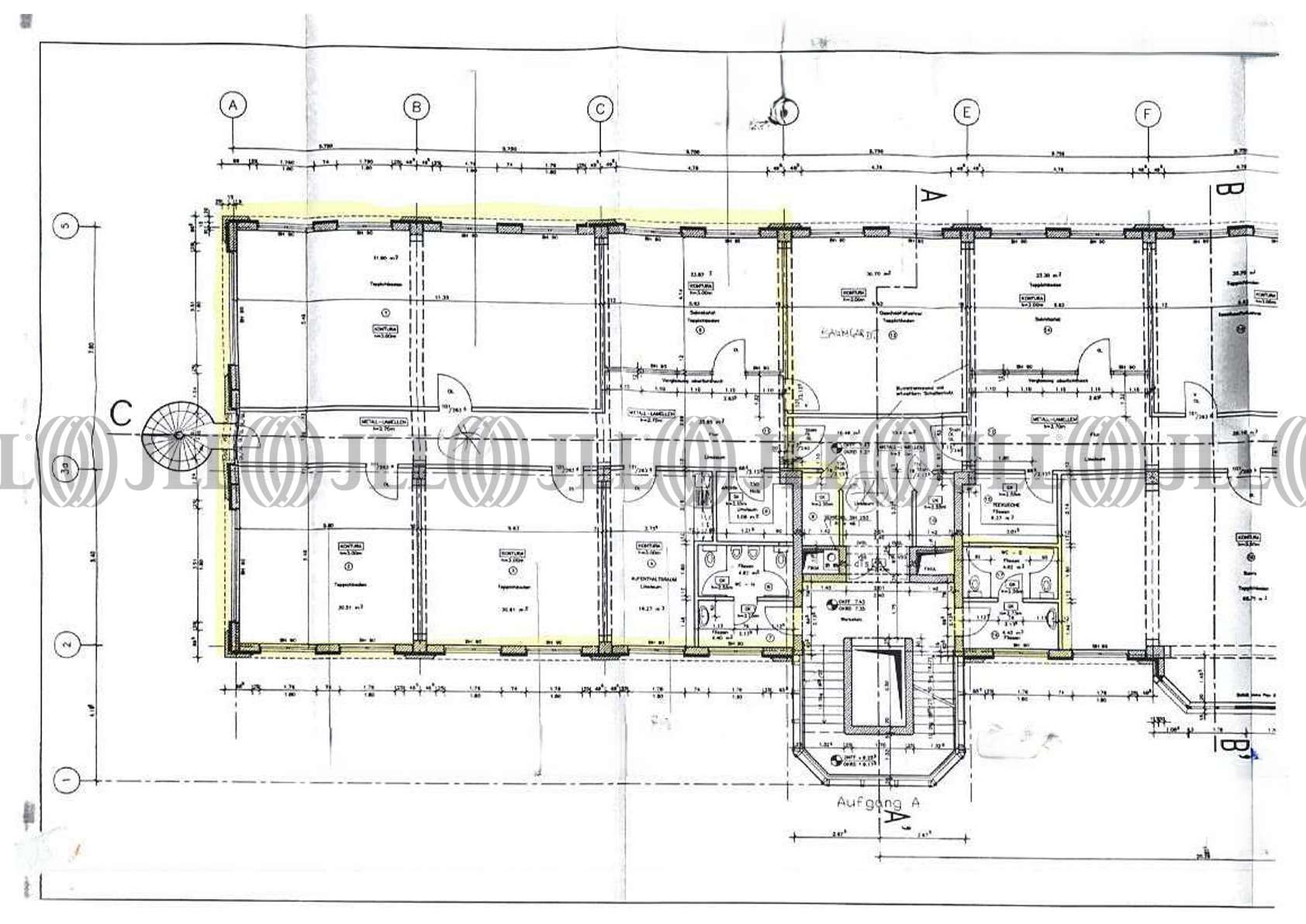
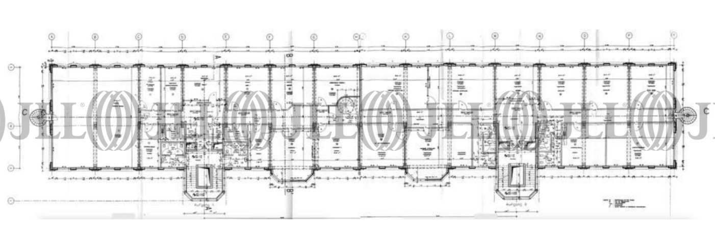
- Grundrisse
- Exposé herunterladen
- Ihr Kontakt
- Anfrage senden
Objekt
Die Büroflächen befinden sich im renovierten Zustand und können ab sofort übergeben werden.
Durch den flexiblen Grundriss kann die Raumaufteilung an sämtliche Bürobedarfe angepasst werden. Von Einzelbüros über Gruppenbüros bis hin zu Großraumkonzepten ist alles möglich. Die Fläche verfügt zudem über eine neuwertige Teeküche inkl. Elektrogeräten. Die getrennten Sanitäreinheiten sind über das Treppenhaus erreichbar.
Durch den flexiblen Grundriss kann die Raumaufteilung an sämtliche Bürobedarfe angepasst werden. Von Einzelbüros über Gruppenbüros bis hin zu Großraumkonzepten ist alles möglich. Die Fläche verfügt zudem über eine neuwertige Teeküche inkl. Elektrogeräten. Die getrennten Sanitäreinheiten sind über das Treppenhaus erreichbar.
Verfügbare Fläche
Lage und Verkehrsanbindung
Der Bürostandort befindet sich in einer etablierten Geschäftslage im Berliner Norden, im Bezirk Reinickendorf. Ein wesentlicher Vorteil ist die unmittelbare Nähe zu einem bedeutenden Verkehrsknotenpunkt, der eine exzellente Anbindung an den öffentlichen Nahverkehr gewährleistet. Eine U-Bahn-Linie sowie diverse Buslinien sind fußläufig erreichbar und ermöglichen eine schnelle Verbindung in die Berliner Innenstadt und andere Stadtteile. Auch die Anbindung für den motorisierten Individualverkehr ist hervorragend: Die Stadtautobahn ist in nur wenigen Fahrminuten erreichbar und bietet einen direkten Anschluss an den Berliner Ring sowie eine zügige Anfahrt zum Flughafen BER. Die umliegende Infrastruktur ist sehr gut ausgebaut und bietet zahlreiche Einkaufsmöglichkeiten für den täglichen Bedarf, diverse gastronomische Angebote sowie weitere Dienstleistungen direkt vor Ort. Naherholungsgebiete wie der Tegeler See sind ebenfalls schnell erreichbar und bieten einen hohen Freizeitwert als Ausgleich zum Arbeitsalltag.
- S-Bahn, Karl-Bonhoeffer-Nervenklinik, Linie S25, Fahrzeit: 10 min
- Bus, Pfahlerstraße, Linie M21, Gehzeit: 1 min
- Bundesautobahn, A 111, Fahrzeit: 10 min
- Flughafen, Berlin-Brandenburg, Fahrzeit: 45 min
- Hauptbahnhof, Berlin, Fahrzeit: 20 min
Ihr Kontakt

Alexandra Teich
Ihr Kontakt
Marktinformationen
Mietmarkt
Reinickendorf, Berlin
siehe 1 passende MietobjekteErfahren Sie mehr
* Durchschnittspreis auf Grundlage historischer Transaktionen.






