Büros
ID B3256Provisionsfrei
Büroimmobilie - Leipzig, Neustadt-Neuschönefeld - B3256
Neustadt-Neuschönefeld, 04103, Leipzig, Sachsen
14,50 € / m²
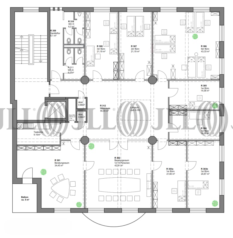
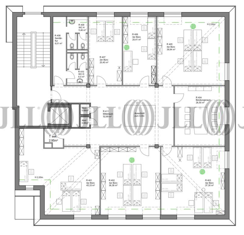
- Fläche626 - 633 m²
- VerfügbarkeitOktober 2026
- Objekt
- Ausstattung
- Lage und Verkehrsanbindung
- Grundrisse
- Exposé herunterladen
- Ihr Kontakt
- Anfrage senden
Objekt
Das Bürohaus befindet sich im grafischen Viertel. Mitte der 1990er Jahre wurde das Viertel durch Büroneubauten und die Sanierungen belebt und ist heute einer der wichtigsten Bürostandorte Leipzigs. Die vakante Mietfläche befindet sich im 3. und 4. Obergeschoss mit einer Größe von ca. 626 m². Eine interne Verbindung gibt es momentan nicht sondern die Flächen sind über den Aufzug bzw. das Treppenhaus zu erreichen. Die Büroräume stehen in verschiedenen Größenordnungen zur Verfügung. Eine Klimatisierung ist bis auf die Sanitärbereiche gegeben. Die Erneuerung der Zaunanlage mit elektr. Torsteuerung und die Umrüstung auf Fernwärme wird vom Eigentümer kurzfristig angestrebt. Der finale Mietpreis richtet sich nach der Vertragslaufzeit sowie den Ausstattungswünschen des Mieters.
Verfügbare Fläche
Lage und Verkehrsanbindung
Die Büroimmobilie liegt an einer erstklassigen Adresse außerhalb des Innenstadtrings von Leipzig im renommierten Grafischen Viertel. Dieses dynamische und vollständig entwickelte Stadtgebiet besticht durch seine Vielfalt an Nutzungsarten, darunter hochmoderne Bürogebäude, renommierte Bildungseinrichtungen, hoch spezialisierte Praxen, attraktive Wohngebäude, gehobene Hotels und vielfältige Einzelhandelsangebote. Der Stadtteil ist insbesondere bekannt für die renommierten Rahn-Schulen mit dem hochmodernen Rahn-Campus, das stilvolle Penta-Hotel, die innovative Praxisklinik und das beeindruckende Brockhaus Center. Eine besondere kulturelle Bereicherung bietet das Max-Planck-Institut für Mathematik, das sich direkt gegenüber dem Objekt auf der Inselstraße befindet. Die Anbindung an den öffentlichen Nahverkehr ist hervorragend: Das Gebiet ist aus drei Richtungen mit Hauptstraßenbahnlinien erschlossen, und der Hauptbahnhof Leipzig ist in maximal 5 Gehminuten erreichbar. Zudem sorgen die drei Hauptstraßenbahntrassen für eine unkomplizierte Verbindung in alle Teile der Stadt. Dank der nahegelegenen, vierspurig ausgebauten Bundesstraße 2 sind auch die Autobahnen A14 und A38 schnell und bequem erreichbar, was das Viertel zu einem optimalen Ausgangspunkt für sämtliche Geschäftsaktivitäten macht.
- Hauptbahnhof, Leipzig, Gehzeit: 5 min
- Straßenbahn/Tram, Hofmeisterstr., Gehzeit: 4 min
- Bus, Hofmeisterstr., Gehzeit: 4 min
- Bundesautobahn, A14, Fahrzeit: 15 min
- Flughafen, Leipzig/Halle, Fahrzeit: 20 min
- Bundesautobahn, A 9, Fahrzeit: 30 min
Ihr Kontakt

Kay Förster
Ihr Kontakt












