Büros
ID B3253Provisionsfrei
Büroimmobilie - Berlin, Mitte - B3253
Mitte, 10117, Berlin, Berlin
24 € / m²
- Fläche416 - 862 m²
- VerfügbarkeitSofort
- Ausstattung
- Lage und Verkehrsanbindung
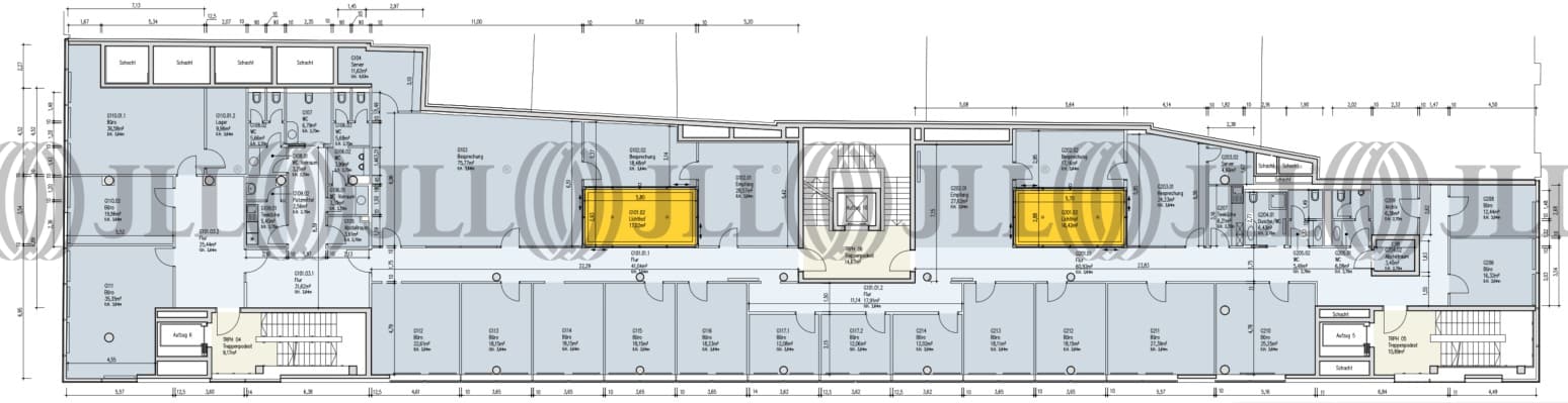
- Grundriss
- Exposé herunterladen
- Ihr Kontakt
- Anfrage senden
Verfügbare Fläche
Lage und Verkehrsanbindung
Das Objekt befindet sich im Herzen Berlins, im Bezirk Mitte. Diese Gegend bietet eine Mischung aus modernen Bürogebäuden, Restaurants und Geschäften, die alle umgeben von wichtigen Sehenswürdigkeiten wie dem Checkpoint Charlie und dem Gendarmenmarkt sind. Dienstleistungen des täglichen Bedarfs befinden sich in der Nähe.
- Hauptbahnhof, Berlin, Fahrzeit: 10 min
- U-Bahn, Spittelmarkt, Linie U2, Gehzeit: 5 min
- Bus, U Spittelmarkt, Linie 200, Gehzeit: 5 min
- Bundesautobahn, A 100, Fahrzeit: 20 min
- Bundesstraße, B1, Fahrzeit: 1 min
- Flughafen, Berlin Brandenburg, Fahrzeit: 40 min
Ihr Kontakt

Tobias Rodewald
Ihr Kontakt
Marktinformationen
Mietmarkt
Mitte, Berlin
Gew. Ø-Miete
24 € / m²
siehe 177 passende MietobjekteErfahren Sie mehr* Durchschnittspreis auf Grundlage historischer Transaktionen.





