Büros
ID B3234Provisionsfrei
Büroimmobilie - Berlin, Moabit - B3234
Moabit, 10553, Berlin, Berlin
Kontaktieren Sie uns für den Preis
- Fläche80 - 3.340 m²
- VerfügbarkeitAuf Anfrage
- Objekt
- Ausstattung
- Lage und Verkehrsanbindung
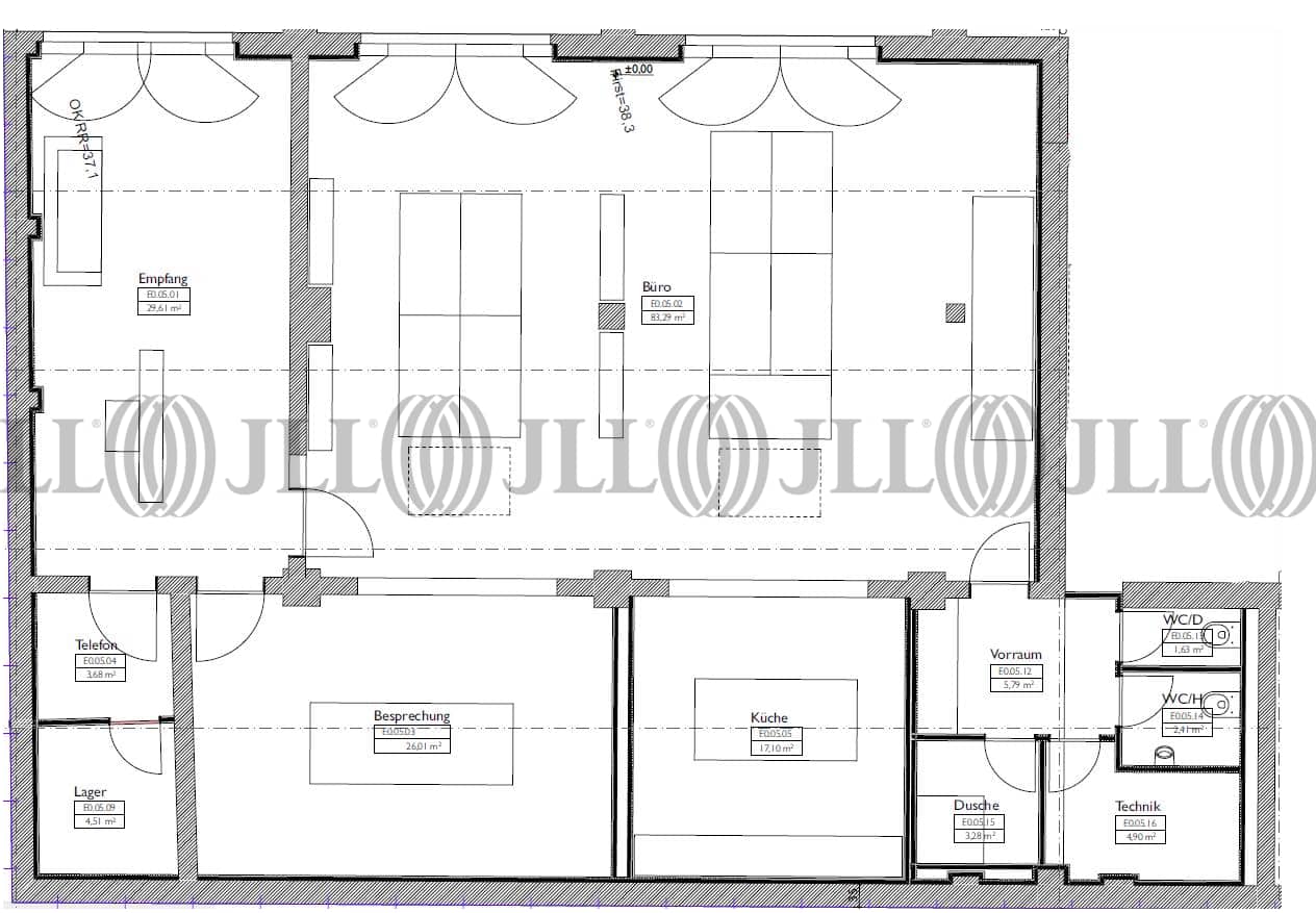
- Grundrisse
- Exposé herunterladen
- Ihr Kontakt
- Anfrage senden
Objekt
Auf dem 2.252 Quadratmeter großen historischen Industrieareal aus den 1930er Jahren entsteht mitten im urbanen Viertel Berlin Moabit ein gemischt genutzter Light Industrial Komplex. Die bestehenden Produktions- und Büroflächen im hinteren Teil des Grundstücks werden durch ein flexibel nutzbares Vorderhaus mit sechs Obergeschossen und ca. 3.200 Quadratmeter Mietfläche ergänzt. Mit dem Neubau wird die Straßenkante geschlossen und der typische Berliner Blockrand wieder hergestellt. Der Bestand wird ebenfalls sukzessive modernisiert. Hier liegt der Schwerpunkt auf der Optimierung von Erschließung und Energieeffizienz.
Zertifizierungen
Energieausweis
DGNB: GoldVerfügbare Fläche
Lage und Verkehrsanbindung
Das Objekt liegt in einer idealen Lage zwischen dem lebhaften Huttenkiez im Norden und dem malerischen Charlottenburger Spreebogen im Süden. Die Umgebung besticht durch eine abwechslungsreiche Mischung aus Wohn- und Gewerbebauten, die eine lebendige Atmosphäre schaffen. Seit 2018 ist eine bemerkenswerte Zunahme an Neubauten sowohl im Bereich hochwertiger Eigentumswohnungen als auch im Gewerbesektor zu verzeichnen. In der unmittelbaren Nachbarschaft finden sich zahlreiche Gewerbehöfe, die eine breite Palette von Mietern aus verschiedenen Wirtschaftszweigen beherbergen. Dadurch entsteht ein vielfältiges kulinarisches Angebot, das jeden Geschmack anspricht. Zu den namhaften Nachbarn zählen renommierte Unternehmen wie Siemens, Menzel Elektromotoren, Porsche, Atotech, Horn&Görwitz sowie das Frauenhofer-Institut und viele weitere führende Firmen.
- Hauptbahnhof, Berlin, Fahrzeit: 10 min
- U-Bahn, Turmstraße; Linie U9, Fahrzeit: 12 min
- Bus, Alt-Moabit/Gotzkowskystr.; Linien 101, 106, 245, Gehzeit: 3 min
- Bundesautobahn, A 100, Fahrzeit: 4 min
- Flughafen, Berlin Brandenburg, Fahrzeit: 40 min
Ihr Kontakt

Alexandra Teich
Ihr Kontakt
Marktinformationen
Mietmarkt
Moabit, Berlin
siehe 33 passende MietobjekteErfahren Sie mehr
* Durchschnittspreis auf Grundlage historischer Transaktionen.








