Büros
ID B3215Provisionsfrei
Büroimmobilie - Leipzig, Plagwitz - B3215
Plagwitz, 04229, Leipzig, Sachsen
12,50 € / m²
- Fläche216 - 521 m²
- VerfügbarkeitSofort
- Objekt
- Ausstattung
- Lage und Verkehrsanbindung
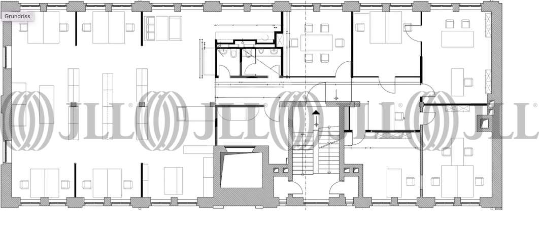
- Grundrisse
- Exposé herunterladen
- Ihr Kontakt
- Anfrage senden
Objekt
Das Gebäudeensemble wurde im Zeitraum der Industrialisierung als Kleinstückgießerei errichtet und in den Folgejahren mehrfach umgebaut und erweitert. Der freundliche Innenhof und die klare Gebäudestruktur geben dem Gebäude einen unverwechselbaren Charme. Es steht aktuell eine Fläche von ca. 305 m² im 1. Obergeschoss zur Vermietung. Die Fläche zeigt einen abwechslungsreichen Grundriss mit offenen Bereichen und fünf Büroräumen. Durch die großzügigen, lichtdurchfluteten Fensterfronten und hohen Decken erhalten die Räumlichkeiten Loft-Charakter. Im 2. OG des Gebäudes steht zudem eine kleine Einheit mit ca. 215 m² frei, die über einen kleinen Balkon und eine klare Struktur verfügt. Die im Exposé angegebene Angebotsmiete bezieht sich auf den aktuellen Zustand der Mietfläche. Eine Klimatisierung der Flächen ist auf Wunsch möglich.
Verfügbare Fläche
Lage und Verkehrsanbindung
Der Stadtteil Plagwitz befindet sich im Westen Leipzigs. Das Viertel erhält seinen unverwechselbaren Charakter und bestechenden Charme durch seine Wasserstraßen und historischen Industriebauten. Bereits ab 1860 entstanden hier erste Industriegebäude und das Viertel wuchs rasant. Eine Vielzahl der industriellen Zweckbauten wurden in den letzten 10 Jahren saniert und offerieren heute moderne Loftwohnungen und einzigartige Büroflächen. Die Nähe zum Karl-Heine-Kanal, der belebten Karl-Heine-Straße und dem Bahnhof Leipzig Plagwitz ergänzen darüber hinaus die bestehenden positiven Standortfaktoren. Dienstleister des täglichen Bedarfs befinden sich in der Nähe.
- Flughafen, Leipzig/Halle, Fahrzeit: 28 min
- Bundesautobahn, A 38, Fahrzeit: 15 min
- Bundesautobahn, A 9, Fahrzeit: 24 min
- Bus, Karl-Heine-/Gießerstraße, Linie 60, Gehzeit: 2 min
Ihr Kontakt

Kay Förster
Ihr Kontakt







