Büros
ID B3213Provisionsfrei
Büroimmobilie - Leipzig, Zentrum - B3213
Zentrum, 04109, Leipzig, Sachsen
14 € / m²
- Fläche195 - 1.498 m²
- VerfügbarkeitAuf Anfrage
- Objekt
- Ausstattung
- Lage und Verkehrsanbindung
- Grundrisse
- Exposé herunterladen
- Ihr Kontakt
- Anfrage senden
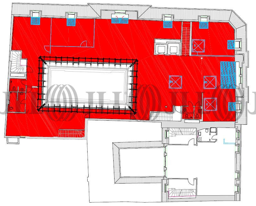
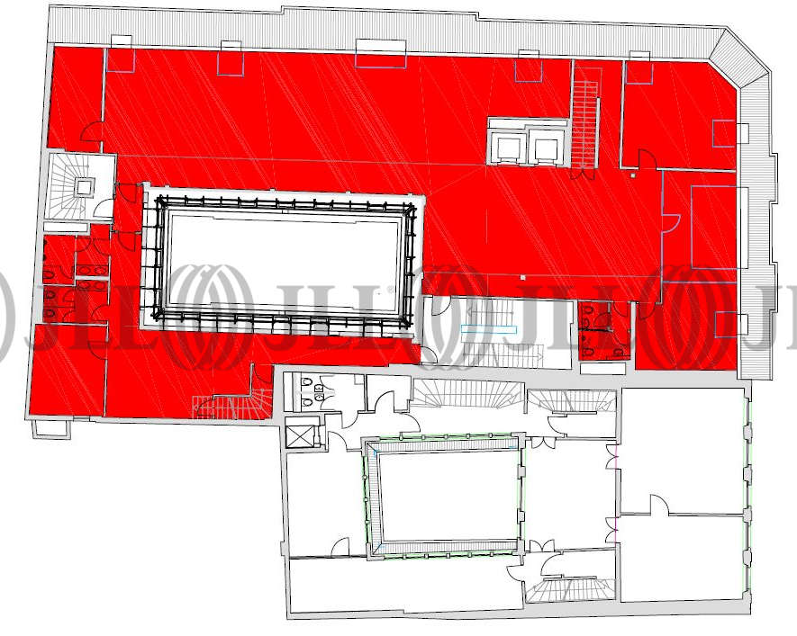
Objekt
Das „Romanushaus" in markanter Ecklage am Brühl und der Katharinenstraße 23 stammt aus dem Jahr 1701 und bietet repräsentative Büroflächen. Vakante Flächen befinden sich im 4./5. Obergeschoss sowie im Gebäudeteil Katharinenstraße 21 im 2. und vom 4. bis 6. Obergeschoss.
Die Büroimmobilie bietet eine großzügige Maisonette-Bürofläche im 4. und 5. Obergeschoss. Das Design ist modern und minimalistisch gehalten. Durch die offene Raumgestaltung entsteht ein einladender Open-Space-Bereich, der sich ideal für die Zusammenarbeit und Kommunikation eignet. Zur Ausstattung gehören Klimatisierung im 5. Obergeschoss, Glaselemente, ein hochwertiges Bad mit Dusche und ein kleiner Sportraum.
Die Räumlichkeiten vom 2. und vom 4. bis zum 6. Obergeschoss in der Katharinenstraße 21 bestechen durch ihre hochwertige Ausstattung und elegante Atmosphäre.
Im 4. Obergeschoss erwartet Sie ein harmonisches Zusammenspiel aus Tradition und Moderne. Der straßenseitige Bürobereich ist mit einem edlen Dielenfußboden ausgestattet, während der hintere Teil einen Teppichboden aufweist. Die gesamte Etage verfügt über ein modernes Netzwerk und restaurierte Fenster und Türen, die den historischen Charme bewahren. Ein Personenaufzug mit eigenem Zugang bis zu dieser Etage gewährleistet bequeme Erreichbarkeit. Die Fläche ist mit geschlechtergetrennten WC-Anlagen sowie einer separaten Teeküche ausgestattet.
Das 5. Obergeschoss, erreichbar über zwei eigene Treppenaufgänge, besticht durch seine hohen Decken mit optisch ansprechenden Holzbalken, die dem Raum eine besondere Atmosphäre verleihen. Hier finden Sie auch eine voll ausgestattete Einbauküche sowie ein WC mit Dusche.
Das 6. Obergeschoss, ebenfalls über zwei separate Treppenaufgänge zugänglich, setzt die elegante Gestaltung fort. Auch hier sorgen die sichtbaren Holzbalken an der Decke für ein eindrucksvolles Ambiente. Wie im 5. Obergeschoss steht den Nutzern ein WC mit Dusche zur Verfügung.
Der Zugang zu diesem exklusiven Bürokomplex erfolgt über den hofseitigen Eingang der Katharinenstraße 23.
Die Büroimmobilie bietet eine großzügige Maisonette-Bürofläche im 4. und 5. Obergeschoss. Das Design ist modern und minimalistisch gehalten. Durch die offene Raumgestaltung entsteht ein einladender Open-Space-Bereich, der sich ideal für die Zusammenarbeit und Kommunikation eignet. Zur Ausstattung gehören Klimatisierung im 5. Obergeschoss, Glaselemente, ein hochwertiges Bad mit Dusche und ein kleiner Sportraum.
Die Räumlichkeiten vom 2. und vom 4. bis zum 6. Obergeschoss in der Katharinenstraße 21 bestechen durch ihre hochwertige Ausstattung und elegante Atmosphäre.
Im 4. Obergeschoss erwartet Sie ein harmonisches Zusammenspiel aus Tradition und Moderne. Der straßenseitige Bürobereich ist mit einem edlen Dielenfußboden ausgestattet, während der hintere Teil einen Teppichboden aufweist. Die gesamte Etage verfügt über ein modernes Netzwerk und restaurierte Fenster und Türen, die den historischen Charme bewahren. Ein Personenaufzug mit eigenem Zugang bis zu dieser Etage gewährleistet bequeme Erreichbarkeit. Die Fläche ist mit geschlechtergetrennten WC-Anlagen sowie einer separaten Teeküche ausgestattet.
Das 5. Obergeschoss, erreichbar über zwei eigene Treppenaufgänge, besticht durch seine hohen Decken mit optisch ansprechenden Holzbalken, die dem Raum eine besondere Atmosphäre verleihen. Hier finden Sie auch eine voll ausgestattete Einbauküche sowie ein WC mit Dusche.
Das 6. Obergeschoss, ebenfalls über zwei separate Treppenaufgänge zugänglich, setzt die elegante Gestaltung fort. Auch hier sorgen die sichtbaren Holzbalken an der Decke für ein eindrucksvolles Ambiente. Wie im 5. Obergeschoss steht den Nutzern ein WC mit Dusche zur Verfügung.
Der Zugang zu diesem exklusiven Bürokomplex erfolgt über den hofseitigen Eingang der Katharinenstraße 23.
Verfügbare Fläche
Lage und Verkehrsanbindung
Die Leipziger Innenstadt zeichnet sich durch eine kompakte City mit sehr attraktiven Handelsstrukturen und einem Mix aus aufwendig sanierten Handelshöfen, Passagen und stilvollen Neubauten aus. Der Standort ist eine der renommiertesten Adressen in Leipzig. Das historisch bedeutende Gebäude ist nur ca. 2 Gehminuten vom Leipziger Markt entfernt. Hier befindet sich die unterirdische Haltestelle der S-Bahn, welche Ende 2013 in Betrieb genommen wurde und die Leipziger Innenstadt umstandslos mit ihrem mitteldeutschen Umfeld verbindet. Vis-a-vis laden die Höfe am Brühl zu einem Bummel in der Mittagspause ein. Dienstleister des täglichen Bedarfs befinden sich in der Nähe.
- Flughafen, Leipzig/Halle, Fahrzeit: 24 min
- Bundesautobahn, A 14, Fahrzeit: 15 min
- Bundesautobahn, A 38, Fahrzeit: 20 min
- S-Bahn, Leipzig-Markt, Gehzeit: 2 min
- Hauptbahnhof, Leipzig, Gehzeit: 7 min
- Hauptbahnhof, Leipzig, Fahrzeit: 5 min
Ihr Kontakt

Kay Förster
Ihr Kontakt
Marktinformationen
Mietmarkt
Zentrum, Leipzig
siehe 40 passende MietobjekteErfahren Sie mehr
* Durchschnittspreis auf Grundlage historischer Transaktionen.






















