Büros
ID B3210Provisionsfrei
Büroimmobilie - Leipzig, Neustadt-Neuschönefeld - B3210
Neustadt-Neuschönefeld, 04105, Leipzig, Sachsen
11,50 € / m²
- Fläche196 - 907 m²
- VerfügbarkeitSofort
- Objekt
- Ausstattung
- Lage und Verkehrsanbindung
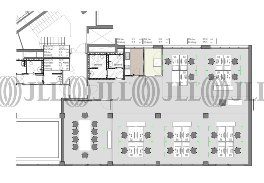
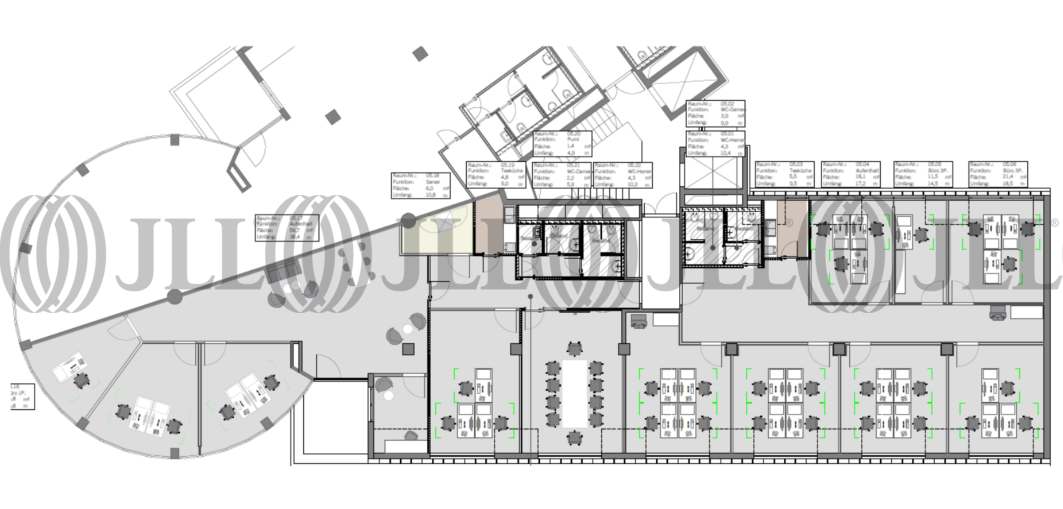
- Grundrisse
- Exposé herunterladen
- Ihr Kontakt
- Anfrage senden
Objekt
Das Geschäftshaus befindet sich in attraktiver Ecklage. Die Hauptansicht der Liegenschaft ist architektonisch besonders reizvoll in Form eines Turmes gestaltet. Zur Anmietung steht eine großzügige Fläche mit ca. 480 m² im 4. OG zur Verfügung. Aber auch kleinere Mieteinheiten mit ca. 194 m² im EG und ca. 230 m² im 5. OG stehen zur Vermietung frei. Die im Exposé verwendeten Grundrisse zeigen Beispielplanungen. Die Mietflächen befinden sich teils im veredelten Rohbau, das Grundrisslayout ist flexibel und richtet sich nach den Nutzungsprofil des Mieters.
Zertifizierungen
Energieausweis
DGNB: GoldFür diese Liegenschaft liegt ein Bedarfsausweis vom 04.12.2019 vom Eigentümer/Vermieter vor. Die wesentlichen Energieträger der Liegenschaft sind Heizwerk, fossil, KWK, Strom. Der Endenergiebedarf Strom beträgt 18.50 kWh/(m²*a). Der Endenergiebedarf Wärme beträgt 122.60 kWh/(m²*a).
Verfügbare Fläche
Lage und Verkehrsanbindung
Das Gebäude befindet sich in bester Lage nordöstlich des Cityrandes und in direkter Nachbarschaft zum Graphischen Viertel. Am Standort etablierten sich, bedingt durch bestehende Lagevorteile, Unternehmen wie die AOK Sachsen, die BARMER GEK sowie die Haema AG. Imbissmöglichkeiten und Discounter befinden sich vor Ort. Die zentrale Lage gewährt einen hervorragenden Anschluss an die umliegenden Verkehrsachsen. Der Leipziger Hauptbahnhof kann zu Fuß in lediglich 15 Minuten erreicht werden. Die B 2 verbindet das Objekt mit den Autobahnen A 9 und A 14. Haltestellen des ÖPNV befinden sich in direkter Umgebung. Kurzum dieser Bürostandort wird auch den höchsten Ansprüchen verkehrstechnischer Vernetzung gerecht. Dienstleister des täglichen Bedarfs befinden sich in der Nähe.
- Flughafen, Leipzig/Halle, Fahrzeit: 23 min
- Bundesautobahn, A 14, Fahrzeit: 15 min
- Bundesautobahn, A 38, Fahrzeit: 21 min
- Bus, Friedrich-List-Platz Linien 72, 73, Gehzeit: 3 min
- Straßenbahn/Tram, Friedrich-List-Platz Linie 1, 3, 8, 9, 10, Gehzeit: 3 min
- Hauptbahnhof, Leipzig, Gehzeit: 15 min
- Hauptbahnhof, Leipzig, Fahrzeit: 4 min
Ihr Kontakt

Kay Förster
Ihr Kontakt
















