Büros
ID B3208Provisionsfrei
Büroimmobilie - Berlin, Wilmersdorf - B3208
Wilmersdorf, 10717, Berlin, Berlin
25 € / m²
- Fläche225 - 7.690 m²
- Verfügbarkeit6 Monate ab Vertragsunterzeichnung
- Objekt
- Ausstattung
- Lage und Verkehrsanbindung
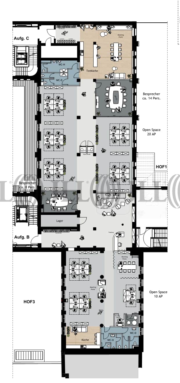
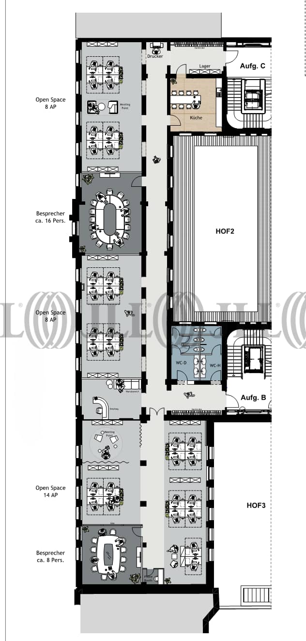
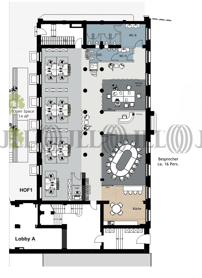
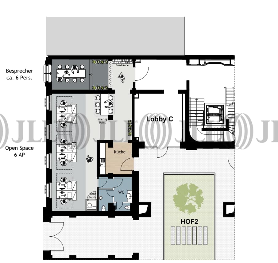
- Grundrisse
- Exposé herunterladen
- Ihr Kontakt
- Anfrage senden
Objekt
Bei diesem Anwesen handelt es sich um ein historisches Gebäude, dessen Schalterhalle bereits in den späten 1920er Jahren umgestaltet wurde und das ursprünglich als Postamt diente. Heute wird die Immobilie kommerziell genutzt und beherbergt unter anderem medizinische Dienstleister. Die Liegenschaft bietet flexibel gestaltbare Büro- und Gewerbeeinheiten, die sich für diverse Unternehmensgrößen eignen. Die Architektur ermöglicht helle und gut ausgeleuchtete Räumlichkeiten, die eine angenehme Arbeitsatmosphäre schaffen.
Zertifizierungen
Energieausweis
DGNB: GoldVerfügbare Fläche
Lage und Verkehrsanbindung
Der Standort befindet sich in einer ruhigen Seitenstraße im Herzen des Berliner Ortsteils Wilmersdorf, einem etablierten und begehrten Bezirk im Westen der Stadt. Die Umgebung ist geprägt von einer Mischung aus repräsentativen Altbauten und modernen Wohn- und Geschäftsgebäuden. Das direkte Umfeld zeichnet sich durch eine ausgezeichnete Infrastruktur mit zahlreichen Restaurants, Cafés, Einkaufsmöglichkeiten und Apotheken aus, die fußläufig erreichbar sind. Trotz der zentralen Lage bietet die Gegend eine ruhige und grüne Atmosphäre, die für eine hohe Lebens- und Arbeitsqualität sorgt.
- Hauptbahnhof, Berlin, Fahrzeit: 20 min
- U-Bahn, Blissestraße; Linie U7, Gehzeit: 4 min
- Bus, U Blissestr./Uhlandstr.; Linien 143, 249, 310, Gehzeit: 4 min
- Bundesautobahn, A 100, Fahrzeit: 5 min
- Bundesstraße, B 1, Fahrzeit: 7 min
- Flughafen, Berlin Brandenburg, Fahrzeit: 30 min
Ihr Kontakt

Chiara Costa Jacinto
Ihr Kontakt
Marktinformationen
Mietmarkt
Wilmersdorf, Berlin
siehe 0 passende MietobjekteErfahren Sie mehr
* Durchschnittspreis auf Grundlage historischer Transaktionen.





