Büros
ID B3207Provisionsfrei
Büroimmobilie - Berlin, Wilmersdorf - B3207
Wilmersdorf, 10713, Berlin, Berlin
15 € / m²
- Fläche1.724 - 1.847 m²
- VerfügbarkeitSofort
- Ausstattung
- Lage und Verkehrsanbindung
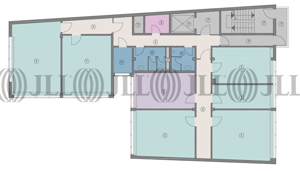
- Grundrisse
- Exposé herunterladen
- Ihr Kontakt
- Anfrage senden
Verfügbare Fläche
Lage und Verkehrsanbindung
Das Objekt befindet sich im Stadtteil Wilmersdorf im Bezirk Charlottenburg-Wilmersdorf in Berlin. Diese Gegend ist geprägt durch eine Mischung aus Wohn- und Geschäftsnutzungen und ist bekannt für ihre grüne Umgebung und die Nähe zu zahlreichen Parks. In Bezug auf den öffentlichen Nahverkehr ist die Lage sehr gut angebunden. Die nächstgelegene U-Bahn-Station ist "Blissestraße" (U7), die nur wenige Gehminuten entfernt liegt. Diese U-Bahn-Linie bietet eine schnelle Verbindung in das Stadtzentrum und zu anderen wichtigen Verkehrsknotenpunkten Berlins. Zusätzlich gibt es mehrere Buslinien, die in der Nähe der Berliner Straße verkehren und somit eine gute Anbindung an den Rest der Stadt gewährleisten. Die Umgebung bietet außerdem zahlreiche Einkaufsmöglichkeiten, Restaurants und Cafés, die leicht zu Fuß erreichbar sind. Aufgrund dieser Eigenschaften ist die Berliner Straße 121 eine attraktive Lage sowohl für den Wohnbereich als auch für geschäftliche Aktivitäten.
- Flughafen, Berlin Brandenburg, Fahrzeit: 21 min
- Bundesautobahn, A100, Fahrzeit: 3 min
- Bundesautobahn, A103, Fahrzeit: 5 min
- U-Bahn, Blissestraße, Linie U7, Gehzeit: 2 min
- Bus, Blissestraße, Linien 101, 143, Gehzeit: 3 min
Ihr Kontakt

Tobias Rodewald
Ihr Kontakt
Marktinformationen
Mietmarkt
Wilmersdorf, Berlin
siehe 0 passende MietobjekteErfahren Sie mehr
* Durchschnittspreis auf Grundlage historischer Transaktionen.








