
Büros
ID B3205Provisionsfrei
Büroimmobilie - Berlin, Charlottenburg - B3205
Charlottenburg, 14059, Berlin, Berlin
19,50 € / m²
- Fläche1.571 - 9.426 m²
- VerfügbarkeitSofort
- Objekt
- Ausstattung
- Lage und Verkehrsanbindung
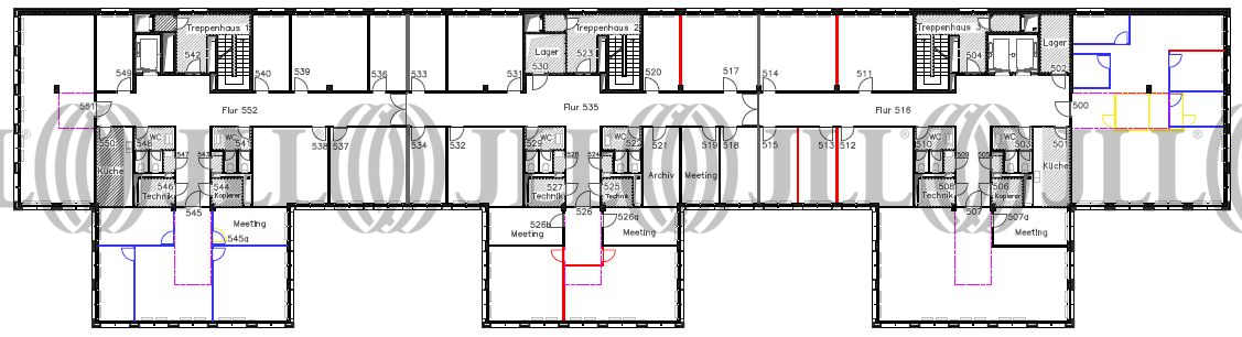
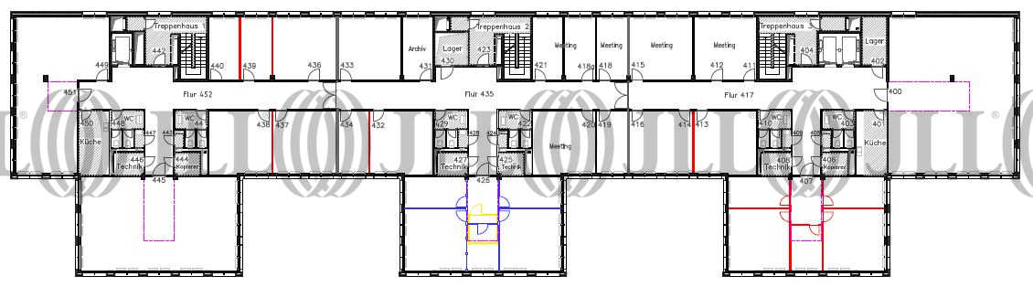
- Grundrisse
- Exposé herunterladen
- Ihr Kontakt
- Anfrage senden
Zertifizierungen
Energieausweis
Für diese Liegenschaft liegt ein Verbrauchsausweis vom 22.10.2020 vom Eigentümer/Vermieter vor. Der wesentliche Energieträger der Liegenschaft ist Erdgas leicht. Der Endenergieverbrauch Strom beträgt 219.60 kWh/(m²*a). Der Endenergieverbrauch Wärme beträgt 49.90 kWh/(m²*a).Verfügbare Fläche
Lage und Verkehrsanbindung
Das Objekt begeistert durch seine erstklassige Lage im Herzen des begehrten Bezirks Charlottenburg, eingebettet im charmanten und ruhigen Westend. Die Umgebung bietet eine Fülle von Annehmlichkeiten: Geschäfte für den täglichen Bedarf, vielfältige Restaurants und gemütliche Cafés sind nur wenige Schritte entfernt und laden zu entspannten Besuchen ein. Ein besonderes Highlight ist das majestätische Schloss Charlottenburg, das nicht nur historisches Ambiente, sondern auch weitläufige Parkanlagen für Erholung und Freizeitaktivitäten zu bieten hat – alles bequem zu Fuß erreichbar. Die Verkehrsanbindung könnte kaum besser sein: Der S-Ringbahnhof Westend und der U-Bahnhof Sophie-Charlotte-Platz ermöglichen eine schnelle und unkomplizierte Erreichbarkeit diverser Stadtteile, unterstützt von zahlreichen Buslinien. Zudem ist die Autobahnauffahrt in nur wenigen Minuten mit dem Auto zu erreichen, was die Mobilität zusätzlich erleichtert und die Lage auch für Pendler attraktiv macht. Diese Kombination aus Ruhe, urbanem Lebensstil und erstklassiger Infrastruktur macht das Objekt zu einer besonders begehrten Adresse in Berlin.
- S-Bahn, Westend; Linien S41, S42, S46, Gehzeit: 3 min
- Bus, Sophie-Charlotten-Straße; Linie 309, Gehzeit: 4 min
- Bundesautobahn, A100, Fahrzeit: 2 min
- Bundesautobahn, A111, Fahrzeit: 5 min
- Bundesstraße, B2, Fahrzeit: 3 min
- Flughafen, Berlin Brandenburg, Fahrzeit: 40 min
Ihr Kontakt

Steve Ritt
Ihr Kontakt
Marktinformationen
Mietmarkt
Charlottenburg, Berlin
Gew. Ø-Miete
19,50 € / m²
siehe 101 passende MietobjekteErfahren Sie mehr* Durchschnittspreis auf Grundlage historischer Transaktionen.