Büros
ID B3204Provisionsfrei
Büroimmobilie - Berlin, Charlottenburg - B3204
Charlottenburg, 10719, Berlin, Berlin
20 € / m²
- Fläche210 m²
- VerfügbarkeitSofort
- Ausstattung
- Lage und Verkehrsanbindung
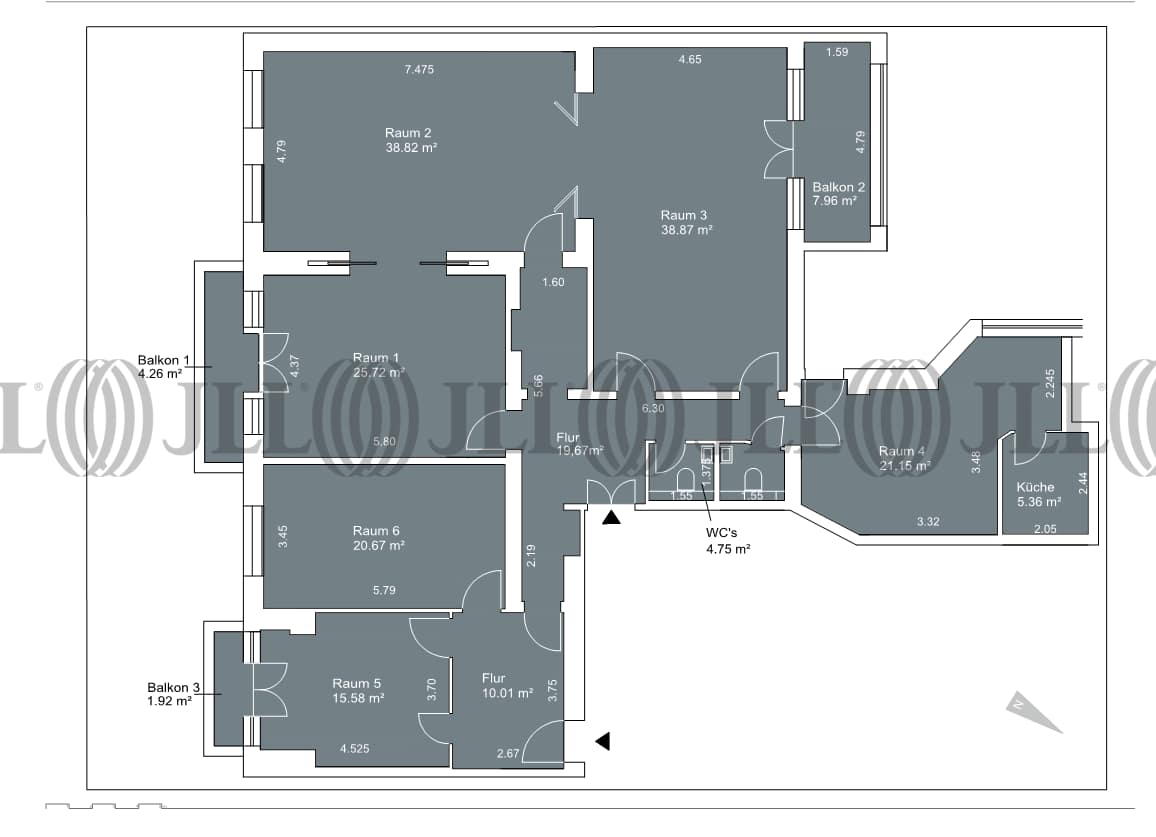
- Grundriss
- Exposé herunterladen
- Ihr Kontakt
- Anfrage senden
Verfügbare Fläche
Lage und Verkehrsanbindung
Das Objekt befindet sich im Berliner Stadtteil Wilmersdorf, in unmittelbarer Nähe zum Kurfürstendamm, welcher innerhalb weniger Gehminuten erreichbar ist. Die Stadtautobahn ist ebenfalls nur wenige Autominuten entfernt, ebenso der Potsdamer Platz, welcher einer der Hauptknotenpunkte zwischen Ost und West darstellt. Zahlreiche Anbieter des täglichen Bedarfs, namhafte Einzelhandelsgeschäfte sowie gastronomische Einrichtungen befinden sich in unmittelbarer Umgebung. Dienstleister des täglichen Bedarfs befinden sich in der Nähe.
Ihr Kontakt

Alexandra Teich
Ihr Kontakt
Marktinformationen
Mietmarkt
Charlottenburg, Berlin
Gew. Ø-Miete
20 € / m²
siehe 98 passende MietobjekteErfahren Sie mehr* Durchschnittspreis auf Grundlage historischer Transaktionen.












