Büros
ID B3189Provisionsfrei
Büroimmobilie - Berlin, Charlottenburg - B3189
Charlottenburg, 10789, Berlin, Berlin
30 € / m²
- Fläche685 m²
- VerfügbarkeitSofort
- Objekt
- Ausstattung
- Lage und Verkehrsanbindung
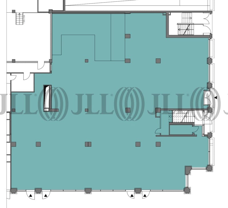
- Grundriss
- Exposé herunterladen
- Ihr Kontakt
- Anfrage senden
Objekt
Die Gewerbeflächen beeindrucken mit großzügigen und eleganten Schaufensterfronten, die eine hervorragende Sichtbarkeit zum lebhaften Los-Angeles-Platz bieten. Durch den flexibel gestaltbaren Grundriss eröffnen sich zahlreiche Nutzungsmöglichkeiten, sei es für den Einzelhandel, exklusive Showrooms oder die Bereitstellung hochwertiger Dienstleistungen.
Die Flächen befinden sich auf Straßenniveau und sind dank ihres barrierefreien Zugangs bequem erreichbar. Dadurch eignen sie sich ideal für eine Vielzahl von Nutzungsmöglichkeiten, einschließlich moderner Fitnessstudios, hochfrequentierter Arztpraxen und weiterer innovativer Einrichtungen, die von einer erstklassigen Lage profitieren möchten.
Die Flächen befinden sich auf Straßenniveau und sind dank ihres barrierefreien Zugangs bequem erreichbar. Dadurch eignen sie sich ideal für eine Vielzahl von Nutzungsmöglichkeiten, einschließlich moderner Fitnessstudios, hochfrequentierter Arztpraxen und weiterer innovativer Einrichtungen, die von einer erstklassigen Lage profitieren möchten.
Verfügbare Fläche
Lage und Verkehrsanbindung
Das angebotene Mietobjekt genießt eine erstklassige Lage in unmittelbarer Nähe zu Berlins begehrter Einkaufsmeile, die sowohl die lokale Bevölkerung als auch Besucher aus aller Welt anzieht. Diese exklusive Geschäftsadresse im Herzen der City-West profitiert von einem angesehenen Umfeld, das durch erstklassige Boutiquen, bedeutende internationale Modelabels, diverse Restaurants, charmante Cafés und luxuriöse Hotels geprägt ist. Der Bereich zeichnet sich durch eine dynamische Mischung renommierter Unternehmen aus.
Ihr Kontakt

Alexandra Teich
Ihr Kontakt
Marktinformationen
Mietmarkt
Charlottenburg, Berlin
Gew. Ø-Miete
30 € / m²
siehe 101 passende MietobjekteErfahren Sie mehr* Durchschnittspreis auf Grundlage historischer Transaktionen.



