Büros
ID B3153Provisionsfrei
Büroimmobilie - Leipzig, Zentrum - B3153
Zentrum, 04109, Leipzig, Sachsen
17,50 € / m²
- Fläche480 m²
- VerfügbarkeitSofort
- Objekt
- Ausstattung
- Lage und Verkehrsanbindung
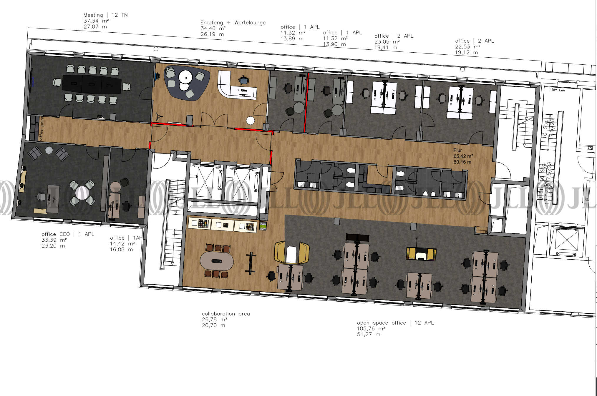
- Grundrisse
- Exposé herunterladen
- Ihr Kontakt
- Anfrage senden
Objekt
Das Büroensemble, bestehend aus zwei Gebäuden aus dem Jahr 1997 und gegenüber des Leipziger Hauptbahnhofs gelegen, vereint modernes Arbeiten mit nachhaltigen Energiekonzepten. Die flexiblen Mietfläche lässt sich den Vorstellungen der Mieter entsprechend umgestalten. Über Treppenhäuser und Aufzüge ist die Mietfläche auf der 6. Etage erreichbar. Die Mieteinheit präsentiert sich aktuell mit einer ansprechenden Mischung aus verschiedenen Bürotypologien, wobei sowohl Einzel- als auch Großraumbüros realisiert werden können.
Ein wesentlicher Bestandteil des innovativen Energiekonzepts ist die Quelllüftungsanlage, die eine effektive und energiesparende Kühlung der Büroflächen ermöglicht, indem sie die Räume maximal bis zu 7 Grad Celsius unter der Außentemperatur kühlen kann. Dabei wird systematisch die kühlere Luft nah am Boden in den Raum geleitet, um über die natürliche Thermik für eine angenehme Terminaltemperatur zu sorgen.
Die Energieeffizienz wurde weiterhin durch die Umstellung auf LED-Beleuchtung erheblich gesteigert. Eine umweltgerechte Wärmeversorgung erfolgt durch Fernwärme. Darüber hinaus ist die Planung und Umsetzung einer Photovoltaik-Anlage für das Jahr 2024 angedacht, um den Energiehaushalt des Ensembles weiter zu optimieren.
Stellplätze stehen für Mitarbeiter und Besucher sowohl in der hauseigenen Tiefgarage als auch im Innenhof zur Anmietung bereit.
Die angegebenen Angebotsmieten beziehen sich auf langfristige Mietverträge und den aktuellen baulichen Zustand der Flächen.
Ein wesentlicher Bestandteil des innovativen Energiekonzepts ist die Quelllüftungsanlage, die eine effektive und energiesparende Kühlung der Büroflächen ermöglicht, indem sie die Räume maximal bis zu 7 Grad Celsius unter der Außentemperatur kühlen kann. Dabei wird systematisch die kühlere Luft nah am Boden in den Raum geleitet, um über die natürliche Thermik für eine angenehme Terminaltemperatur zu sorgen.
Die Energieeffizienz wurde weiterhin durch die Umstellung auf LED-Beleuchtung erheblich gesteigert. Eine umweltgerechte Wärmeversorgung erfolgt durch Fernwärme. Darüber hinaus ist die Planung und Umsetzung einer Photovoltaik-Anlage für das Jahr 2024 angedacht, um den Energiehaushalt des Ensembles weiter zu optimieren.
Stellplätze stehen für Mitarbeiter und Besucher sowohl in der hauseigenen Tiefgarage als auch im Innenhof zur Anmietung bereit.
Die angegebenen Angebotsmieten beziehen sich auf langfristige Mietverträge und den aktuellen baulichen Zustand der Flächen.
Zertifizierungen
Energieausweis
BREEAM: Very goodFür diese Liegenschaft liegt ein Bedarfsausweis vom 11.10.2022 vom Eigentümer/Vermieter vor. Der wesentliche Energieträger der Liegenschaft ist Fernwärme. Der Endenergiebedarf Strom beträgt 17.00 kWh/(m²*a). Der Endenergiebedarf Wärme beträgt 111.00 kWh/(m²*a).
Verfügbare Fläche
Lage und Verkehrsanbindung
Die Leipziger Innenstadt zeichnet sich durch eine kompakte City mit sehr attraktiven Handelsstrukturen und einem Mix aus aufwendig sanierten Handelshöfen, Passagen und stilvollen Neubauten aus. Der „Brühl“ ist eine der ältesten Straßen Leipzigs. Sie liegt im Norden der Altstadt und ist fußläufig ca. 3 min vom Hauptbahnhof und ca. 7 min vom Leipziger Markt entfernt. Hier befindet sich die unterirdische Haltestelle der S-Bahn, die seit Ende 2013 die Leipziger Innenstadt mit ihrem mitteldeutschen Umfeld verbindet. Halle/Saale, Zwickau, Dessau und Hoyerswerda sind nunmehr umstandslos zu erreichen.
- Flughafen, Leipzig/Halle, Fahrzeit: 23 min
- Bundesautobahn, A 14, Fahrzeit: 14 min
- Bundesautobahn, A 9, Fahrzeit: 22 min
- Hauptbahnhof, Leipzig, Gehzeit: 4 min
Ihr Kontakt

Kay Förster
Ihr Kontakt
Marktinformationen
Mietmarkt
Zentrum, Leipzig
siehe 40 passende MietobjekteErfahren Sie mehr
* Durchschnittspreis auf Grundlage historischer Transaktionen.


















