Büros
ID B3142Provisionsfrei
Büroimmobilie - Berlin, Tiergarten - B3142
Tiergarten, 10785, Berlin, Berlin
21,50 € / m²
- Fläche240 m²
- VerfügbarkeitSofort
- Objekt
- Lage und Verkehrsanbindung
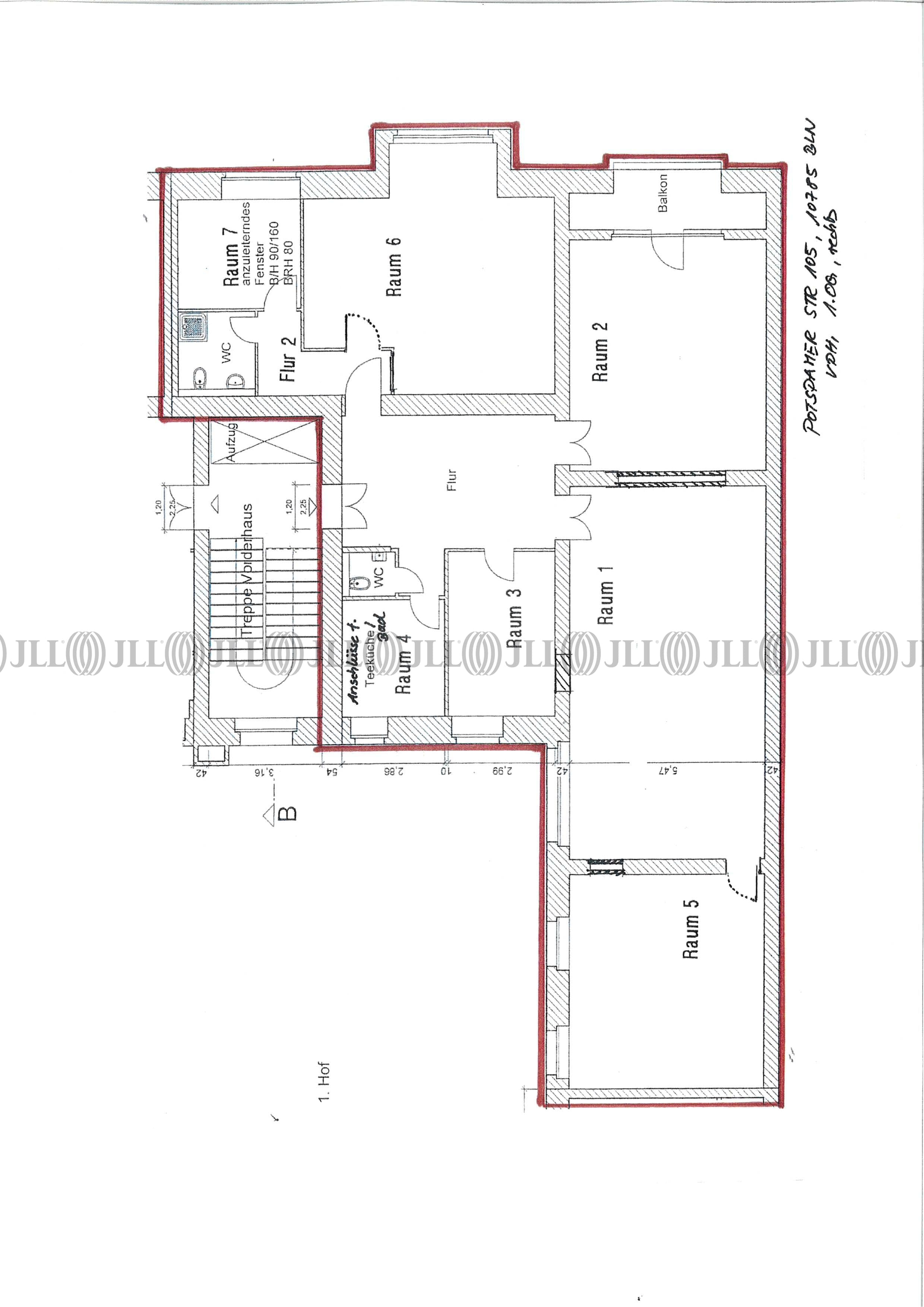
- Grundriss
- Exposé herunterladen
- Ihr Kontakt
- Anfrage senden
Objekt
Das um 1900 errichtete, denkmalgeschützte Wohn- und Geschäftshaus beeindruckt durch seine kunstvolle Sandsteinfassade mit detailreichen Ornamenten und Figuren.
Die Immobilie wurde in den Jahren 1995/1996 unter Beachtung aller denkmalpflegerischen Auflagen umfassend restauriert. Dabei wurde die historische Bausubstanz fachgerecht saniert und das charakteristische Dach mit originalen, grünlasierten Dachziegeln neu eingedeckt.
Die Immobilie wurde in den Jahren 1995/1996 unter Beachtung aller denkmalpflegerischen Auflagen umfassend restauriert. Dabei wurde die historische Bausubstanz fachgerecht saniert und das charakteristische Dach mit originalen, grünlasierten Dachziegeln neu eingedeckt.
Verfügbare Fläche
Lage und Verkehrsanbindung
Das Wohn- und Geschäftshaus befindet sich im Stadtbezirk Tiergarten. Durch den am Objekt gelegenen U-Bahnhof sowie die Buslinien direkt am Objekt ist der Standort hervorragend mit öffentlichen Verkehrsmitteln zu erreichen. Durch die zentrale Lage ist sowohl die City-Ost als auch die City-West schnell erreichbar.in der Potsdamer Straße zwischen Kurfürstenstraße und Pohlstraße am U-Bhf. Kurfürstenstraße. In unmittelbarer Nähe befinden sich eine Vielzahl gastronomischer Einrichtungen von Imbissen über koreanisches Streetfood, BIO-Läden, Pizzerien, Restaurants bis hin zur Sterneküche. Ebenfalls sind Supermarkt, Drogeriemarkt, Bäckereien usw. fußläufig in wenigen Minuten erreichbar. Attraktiv ist auch die Nähe zum Gleisdreieckpark.
- Hauptbahnhof, Berlin, Fahrzeit: 10 min
- U-Bahn, Kurfürstenstraße; Linien U1, U3, Gehzeit: 1 min
- U-Bahn, Bülowstraße ; Linie U2, Gehzeit: 4 min
- Bus, U Kurfürstenstraße; Linien M48, M85, Gehzeit: 1 min
- Bundesautobahn, A 100, Fahrzeit: 5 min
- Flughafen, Berlin Brandenburg, Fahrzeit: 35 min
Ihr Kontakt

Alexandra Teich
Ihr Kontakt
Marktinformationen
Mietmarkt
Tiergarten, Berlin
siehe 1 passende MietobjekteErfahren Sie mehr
* Durchschnittspreis auf Grundlage historischer Transaktionen.








