Büros
ID B3130Provisionsfrei
Büroimmobilie - Berlin, Schöneberg - B3130
Geneststraße 5, Reichartstraße 2
Schöneberg, 10829, Berlin, Berlin
13,84 € / m²
- Fläche1.383 m²
- VerfügbarkeitSofort
- Objekt
- Ausstattung
- Lage und Verkehrsanbindung
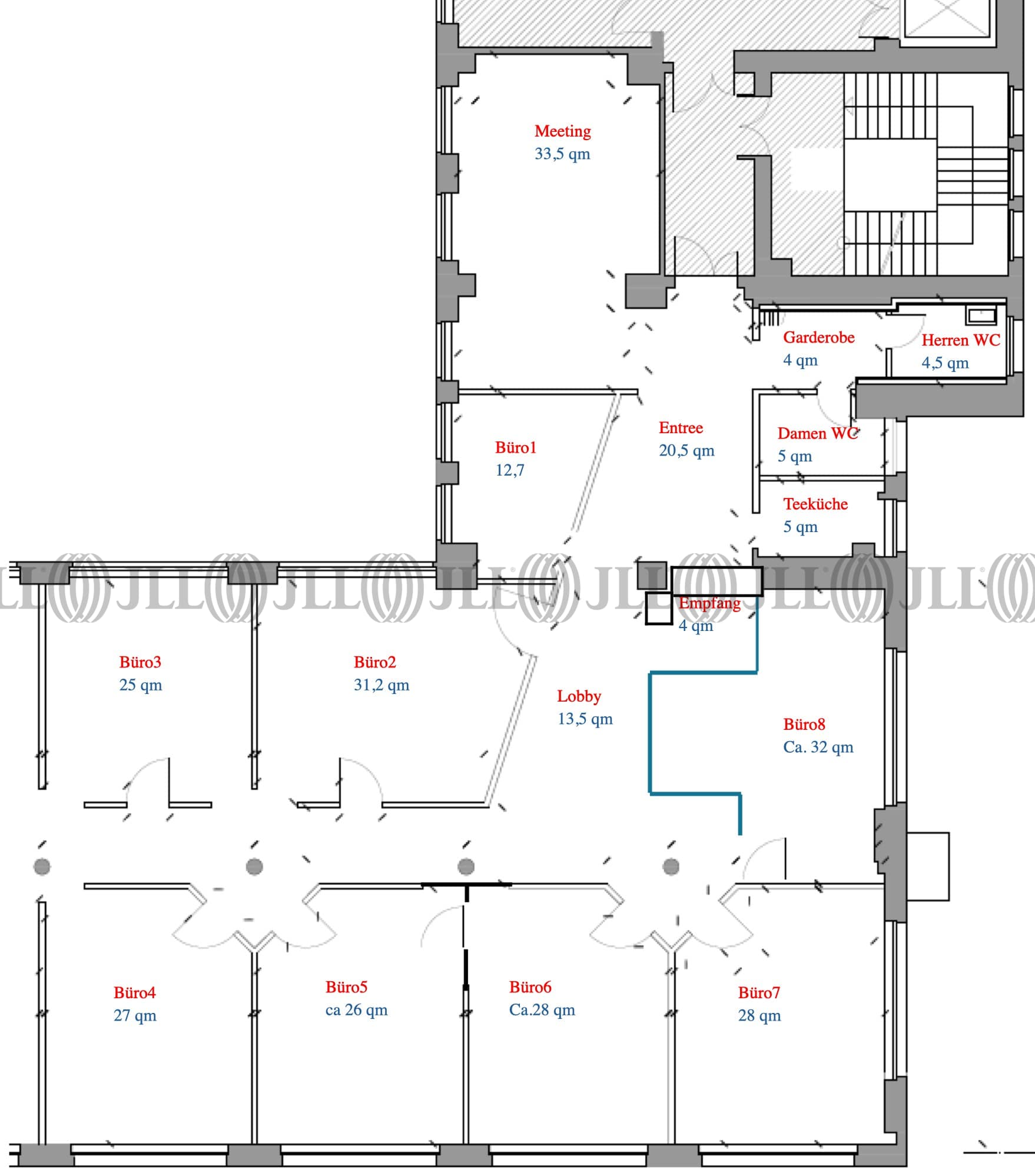
- Grundriss
- Exposé herunterladen
- Ihr Kontakt
- Anfrage senden
Objekt
Bei der Immobilie handelt es sich um ein Loftgebäude. Im Jahr 2006 wurde das Areal vollständig saniert. Auf dem Gelände steht eine Kantine zur Nahversorgung für die Mitarbeiter zur Verfügung.
Verfügbare Fläche
Lage und Verkehrsanbindung
Das Gebäude befindet sich im Berliner Bezirk Schöneberg und verfügt über eine hervorragende Anbindung an die Infrastruktur. Die Stadtautobahnausfahrt Alboinstraße befindet sich unweit vom Gebäude.
Ihr Kontakt

Sophie Schröter
Ihr Kontakt
Marktinformationen
Mietmarkt
Schöneberg, Berlin
Gew. Ø-Miete
13,84 € / m²
siehe 30 passende MietobjekteErfahren Sie mehr* Durchschnittspreis auf Grundlage historischer Transaktionen.













