Büros
ID B3089Provisionsfrei
Büroimmobilie - Berlin, Neukölln - B3089
Neukölln, 12055, Berlin, Berlin
18,50 € / m²
- Fläche137 - 3.950 m²
- VerfügbarkeitSofort
- Objekt
- Ausstattung
- Lage und Verkehrsanbindung
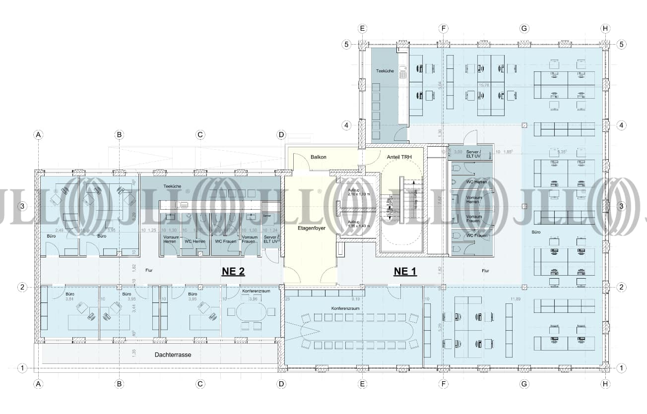
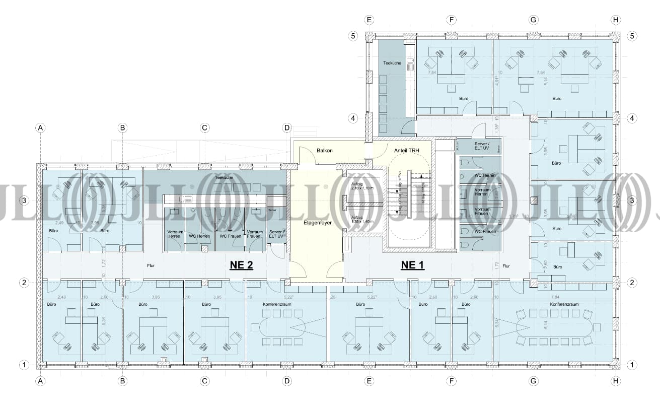
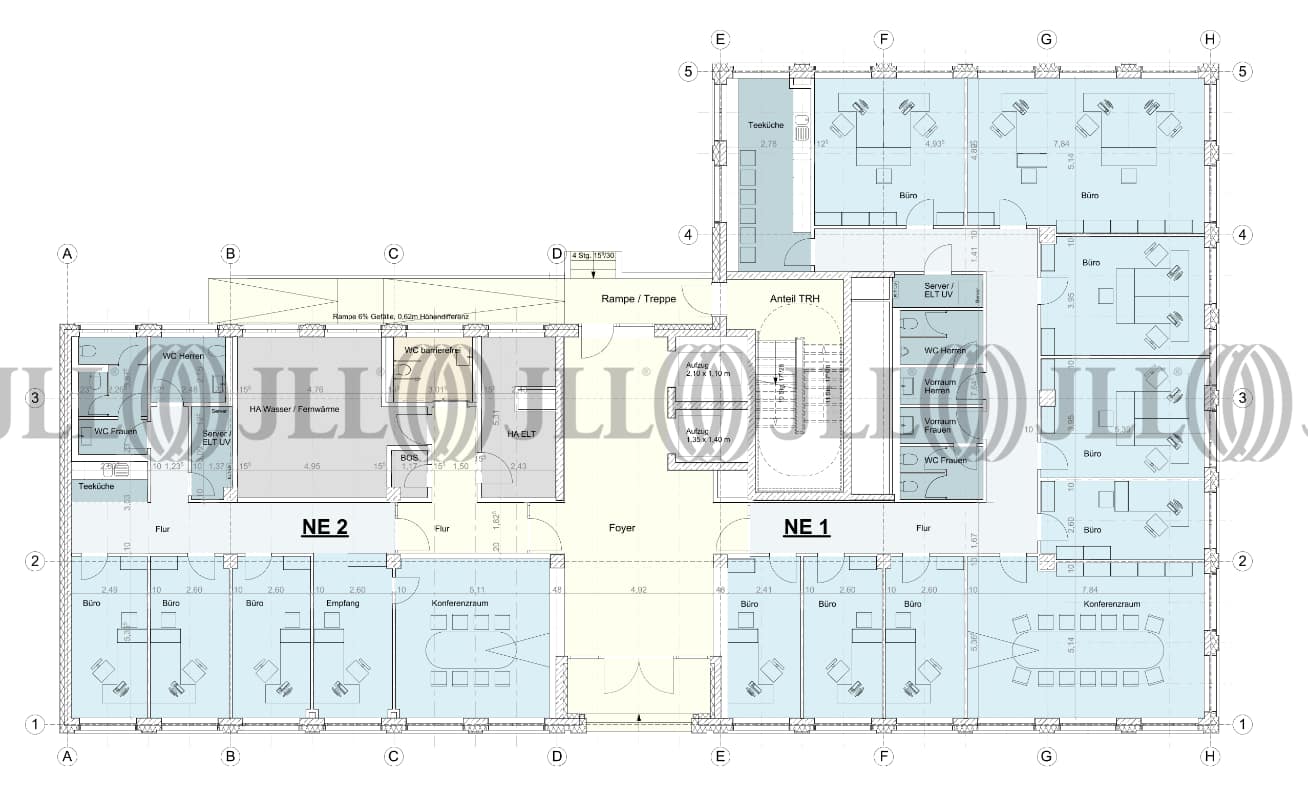
- Grundrisse
- Exposé herunterladen
- Ihr Kontakt
- Anfrage senden
Objekt
Die moderne Architektur, entworfen vom renommierten Berliner Architekturbüro „Niehaus Architekten", besticht durch durchdachte Raumkonzepte und maximale Flexibilität.
Jede Etage verfügt über zwei separate Mietbereiche, die bei Bedarf individuell gestaltet werden können - ob als Einzelbüros, Kombiraumlösung oder klassisches Großraumbüro. Das zentrale Treppenhaus mit zwei modernen Aufzügen gewährleistet eine barrierefreie Erreichbarkeit aller Etagen.
Die Premiumfläche im 6. Obergeschoss wird durch eine exklusive Terrasse aufgewertet. Eine Gesamtmietfläche von ca. 3.951 m² verteilt auf sieben Etagen steht zur Verfügung, mit flexiblen Teilungsmöglichkeiten im Erdgeschoss.
Jede Etage verfügt über zwei separate Mietbereiche, die bei Bedarf individuell gestaltet werden können - ob als Einzelbüros, Kombiraumlösung oder klassisches Großraumbüro. Das zentrale Treppenhaus mit zwei modernen Aufzügen gewährleistet eine barrierefreie Erreichbarkeit aller Etagen.
Die Premiumfläche im 6. Obergeschoss wird durch eine exklusive Terrasse aufgewertet. Eine Gesamtmietfläche von ca. 3.951 m² verteilt auf sieben Etagen steht zur Verfügung, mit flexiblen Teilungsmöglichkeiten im Erdgeschoss.
Verfügbare Fläche
Lage und Verkehrsanbindung
Das Objekt befindet sich in einer aufstrebenden Lage im Osten des Ortsteils Neukölln. Das dynamische Umfeld ist geprägt von einem attraktiven Mix aus Industrie und Geschäftshäusern. Ein Supermarkt in unmittelbarer Nähe ermöglicht schnelle Einkäufe im Arbeitsalltag. Das urbane Quartier verbindet Neukölln mit den angrenzenden Stadtteilen Treptow-Köpenick und Tempelhof. Der Schillerkiez mit seinem vielfältigen Freizeitangebot sowie das beliebte Tempelhofer Feld sind in kurzer Distanz zu erreichen. Die nahegelegene Haupteinkaufsstraße Neuköllns mit zahlreichen Ladenketten und Kaufhäusern erfährt aktuell eine umfassende Aufwertung.
- Hauptbahnhof, Berlin, Fahrzeit: 25 min
- S-Bahn, Neukölln; Linien S41, S42, S45, S46, S47, S8, Gehzeit: 5 min
- U-Bahn, Neukölln; Linie U7, Gehzeit: 5 min
- Bus, Mittelbuschweg; Linie 246, Gehzeit: 2 min
- Bundesautobahn, A 100, Fahrzeit: 3 min
- Flughafen, Berlin Brandenburg, Fahrzeit: 15 min
Ihr Kontakt

Alexandra Teich
Ihr Kontakt
Marktinformationen
Mietmarkt
Neukölln, Berlin
siehe 1 passende MietobjekteErfahren Sie mehr
* Durchschnittspreis auf Grundlage historischer Transaktionen.




