Büros
ID B3067Provisionsfrei
Büroimmobilie - Berlin, Friedrichshain - B3067
Friedrichshain, 10249, Berlin, Berlin
20 € / m²
- Fläche812 m²
- VerfügbarkeitSofort
- Ausstattung
- Lage und Verkehrsanbindung
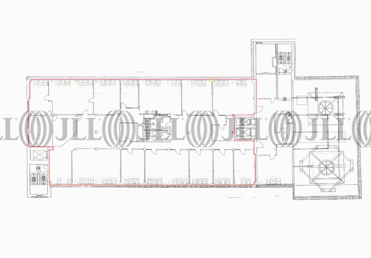
- Grundriss
- Exposé herunterladen
- Ihr Kontakt
- Anfrage senden
Verfügbare Fläche
Lage und Verkehrsanbindung
Das Objekt befindet sich im Berliner Bezirk Friedrichshain. Der Alexanderplatz mit seinem Fernsehturm sowie die Friedrichstraße und Unter den Linden sind nicht weit entfernt. Weiterhin sind ausreichend Einkaufsmöglichkeiten, Banken, Ärzte, Kindergärten und Schulen vorhanden. In der nahen Umgebung befinden sich viele Hotels, Museen, Theater-, Film-, Opern- und Musikhäuser.
Ihr Kontakt

Alexandra Teich
Ihr Kontakt
Marktinformationen
Mietmarkt
Friedrichshain, Berlin
siehe 51 passende MietobjekteErfahren Sie mehr
* Durchschnittspreis auf Grundlage historischer Transaktionen.











