Büros
ID B3056Provisionsfrei
Büroimmobilie - Berlin - B3056
10553, Berlin, Berlin
13,50 € / m²
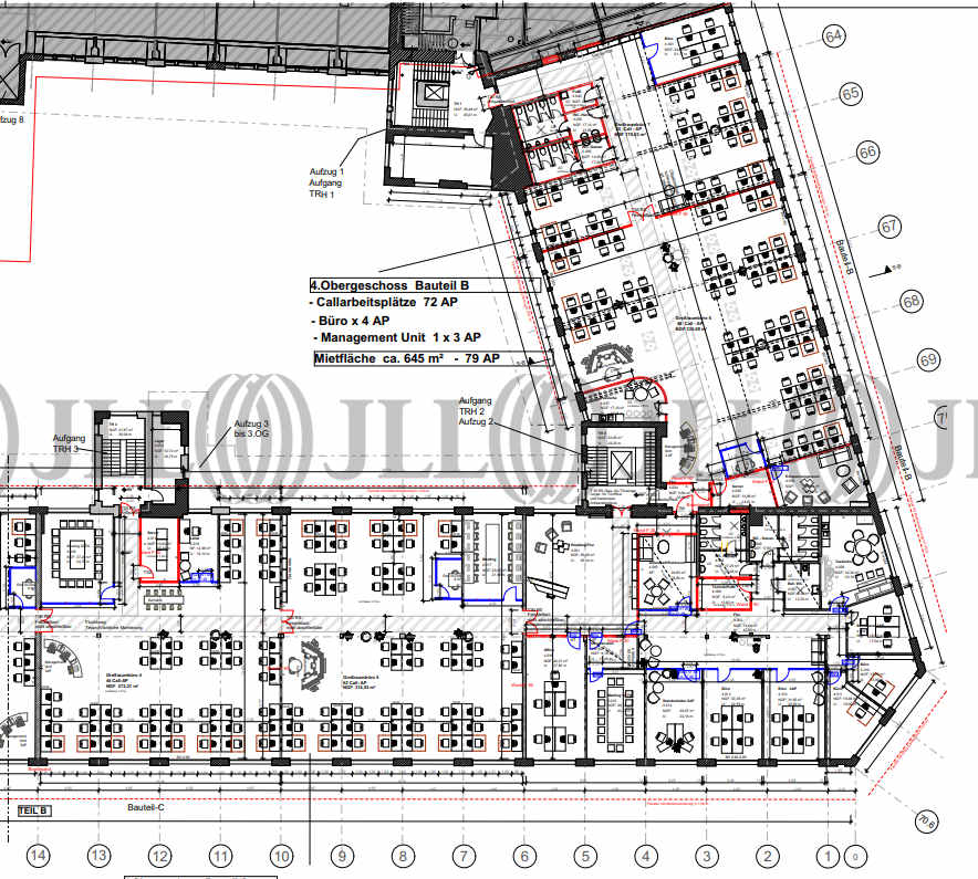
- Fläche645 - 1.993 m²
- VerfügbarkeitSofort
- Objekt
- Ausstattung
- Lage und Verkehrsanbindung
- Grundriss
- Exposé herunterladen
- Ihr Kontakt
- Anfrage senden
Objekt
Es handelt sich um eine im Jahre 1900 erbaute Industrieliegenschaft, die 1993/1994 saniert und modernisiert wurde. Die Liegenschaft hat eine eine Gesamtfläche von ca. 41.000 m² Büro-/Lager- und Produktionsfläche.
Verfügbare Fläche
Lage und Verkehrsanbindung
Das Objekt befindet sich im Berliner Bezirk Tiergarten, nur durch die Bahn vom Berliner Großmarkt Beusselstraße getrennt. Die Umgebung ist sehr gewerblich und industriell geprägt und gehört zu Berlins größtem innerstädtischen Industrieareal. Der in ca. 3 km Entfernung gelegene Westhafen ist Berlins größter Umschlaghafen und damit bedeutender Wirtschaftsfaktor.
- Hauptbahnhof, Berlin, Fahrzeit: 10 min
- S-Bahn, Beusselstraße; Linien S41, S42, Gehzeit: 8 min
- Bus, Beusselstraße; Linien 106, 123, Gehzeit: 8 min
- Bundesautobahn, A 100, Fahrzeit: 4 min
- Flughafen, Berlin Brandenburg, Fahrzeit: 40 min
Ihr Kontakt

Sophie Schröter
Ihr Kontakt


