Büros
ID B3055Büroimmobilie - Berlin, Mitte - B3055
Mitte, 10117, Berlin, Berlin
Provisionspflichtig: bei Anmietung 3 Netto-Monatsmieten zzgl. gesetzlicher Umsatzsteuer.** der Wert kann je nach Vertragslaufzeit variieren.
Kontaktieren Sie uns für den Preis
- Fläche225 - 496 m²
- VerfügbarkeitSofort
- Objekt
- Ausstattung
- Lage und Verkehrsanbindung
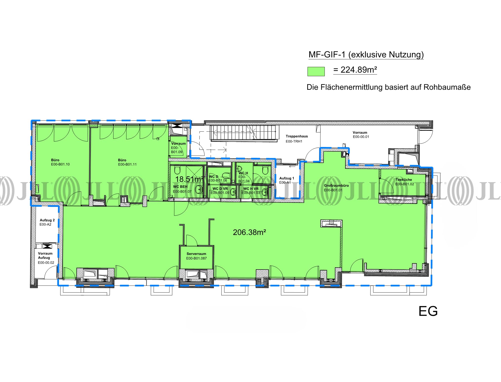
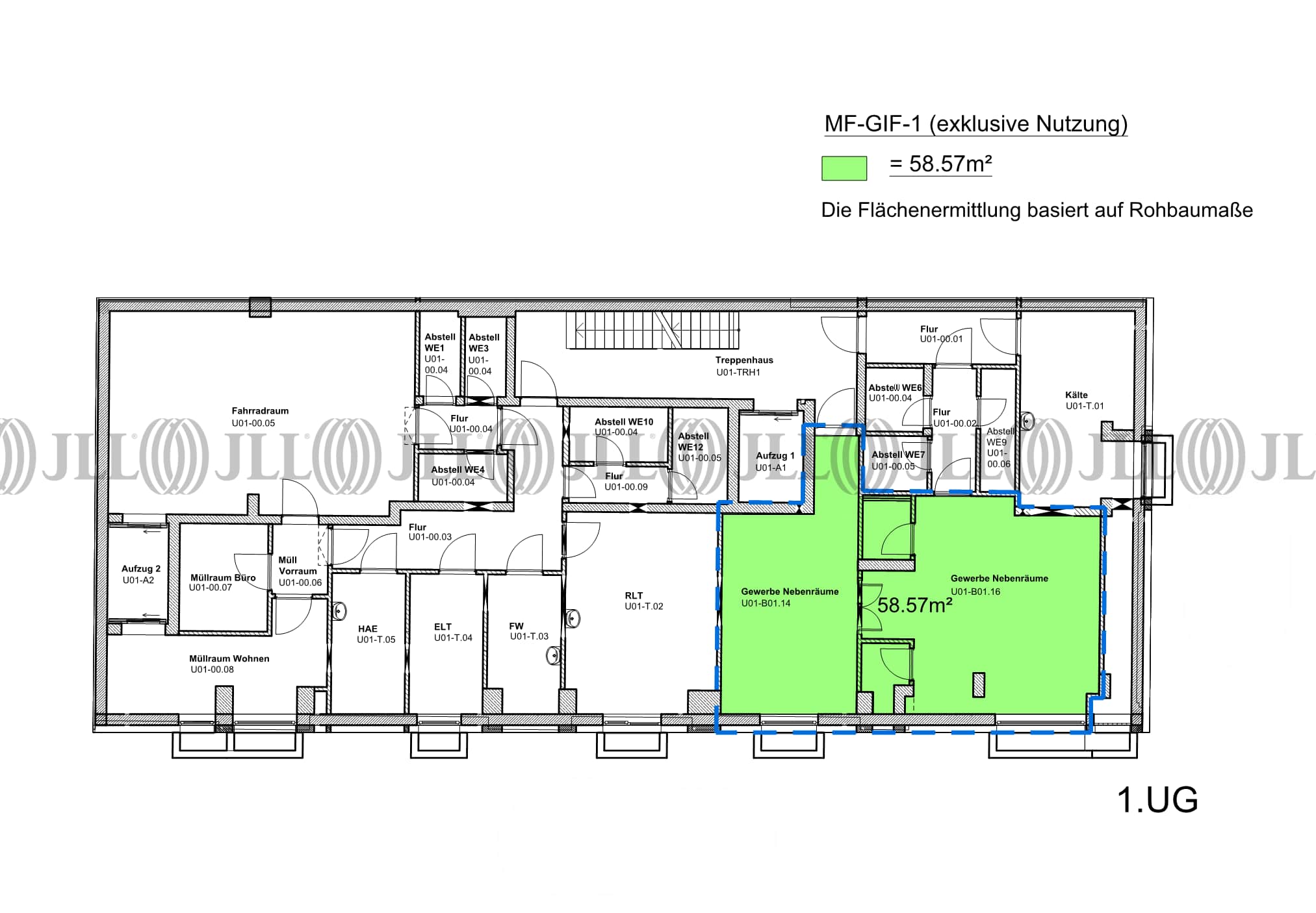
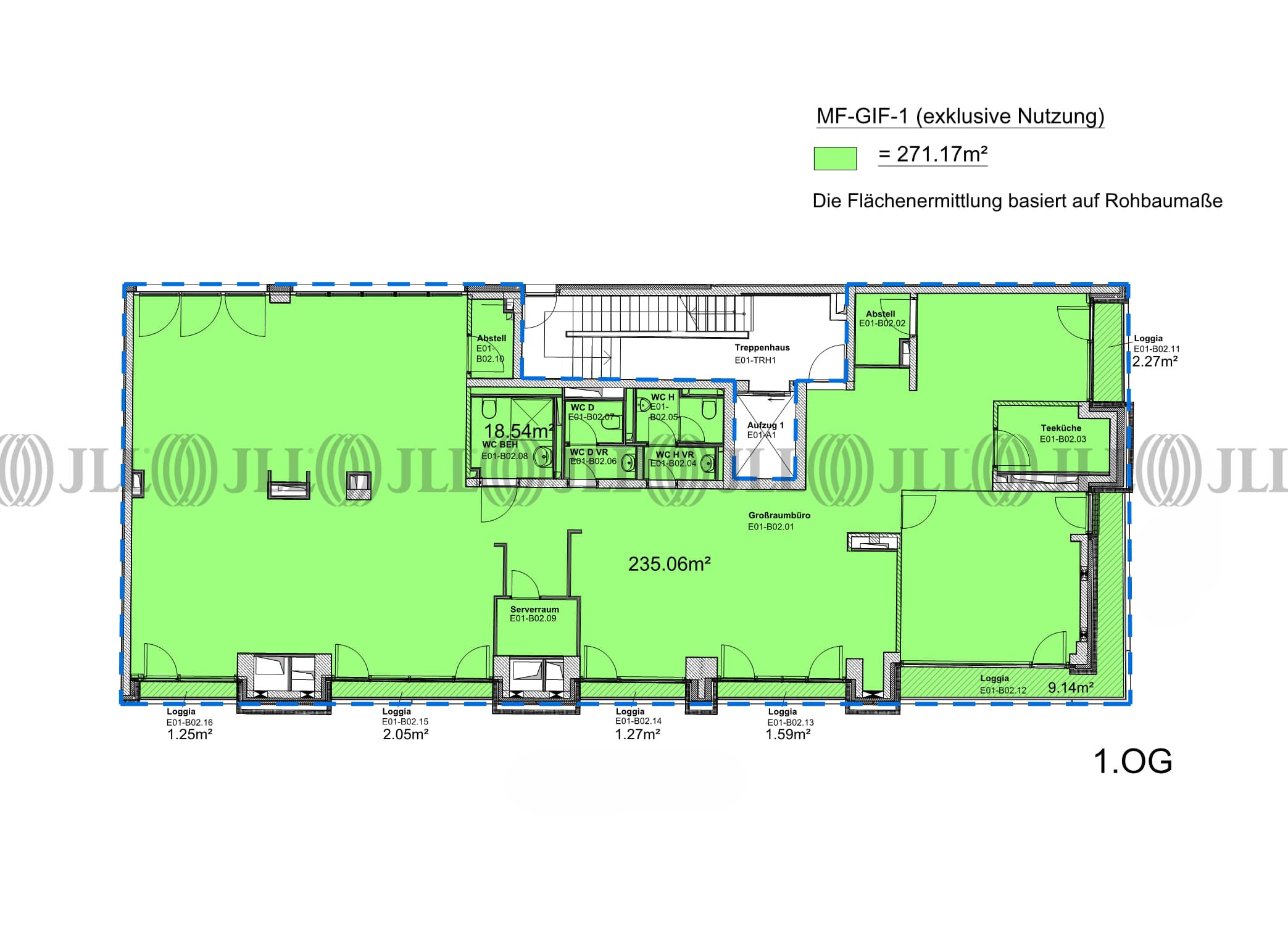
- Grundrisse
- Exposé herunterladen
- Ihr Kontakt
- Anfrage senden
Objekt
Bei diesem Gebäude handelt es sich um ein modernes Wohn- und Geschäftshaus, das durch seine einzigartige Architektur besticht. Es fügt sich mit seiner Kubatur und Farbgebung harmonisch in die umliegende, von moderner Wohnbebauung geprägte, Blockstruktur ein. Die Fassade ist mit einem System aus verschiebbaren Sonnenschutzlamellen gestaltet, das nicht nur funktionalen Sonnen- und Sichtschutz bietet, sondern auch die unterschiedliche Nutzung als Wohn- und Büroeinheiten von außen ablesbar macht. Im Inneren zeichnet sich das Objekt durch eine hochwertige Ausstattung mit bodentiefen Fenstern, Fußbodenheizung und Kühldecken aus. Ein Aufzug verbindet die sechs Etagen und den Fahrradkeller. Zudem stehen PKW-Stellplätze in der hauseigenen Tiefgarage zur Verfügung. Die flexiblen Grundrisse ermöglichen eine individuelle Gestaltung der Büro- und Wohneinheiten.
Verfügbare Fläche
Lage und Verkehrsanbindung
Der Standort befindet sich in einer äußerst zentralen und prestigeträchtigen Lage im Herzen Berlins, unweit des Brandenburger Tores und des Prachtboulevards Unter den Linden. Diese Gegend ist das politische und kulturelle Zentrum der Hauptstadt und beherbergt zahlreiche Bundeseinrichtungen, Ministerien und Botschaften. Die historische Umgebung ist geprägt von bedeutenden Sehenswürdigkeiten wie der Museumsinsel, dem Gendarmenmarkt und dem Deutschen Bundestag im Reichstagsgebäude. Die Infrastruktur ist exzellent ausgebaut, mit einer hervorragenden Anbindung an den öffentlichen Personennahverkehr durch nahegelegene U- und S-Bahnhöfe, die eine schnelle Erreichbarkeit aller Teile der Stadt gewährleisten. Das Umfeld bietet ein vielfältiges Angebot an gehobener Gastronomie, exklusiven Einkaufsmöglichkeiten und kulturellen Einrichtungen, was die hohe Attraktivität und die Frequenz dieses innerstädtischen Quartiers unterstreicht.
- Flughafen, Berlin Brandenburg, Fahrzeit: 45 min
- Hauptbahnhof, Berlin, Fahrzeit: 5 min
- Bundesautobahn, A 100, Fahrzeit: 8 min
- U-Bahn, Brandenburger Tor; Linie U5, Gehzeit: 5 min
- S-Bahn, Brandenburger Tor; Linien S1, S2, S25, S26, Gehzeit: 5 min
- Bus, Unter den Linden/Friedrichstraße; Linien 100, 147, 245, 300, Gehzeit: 5 min
- Straßenbahn/Tram, Unter den Linden/Friedrichstraße; Linien M1, 12, Gehzeit: 5 min
Ihr Kontakt

Alexandra Teich
Ihr Kontakt
Marktinformationen
Mietmarkt
Mitte, Berlin
siehe 167 passende MietobjekteErfahren Sie mehr
* Durchschnittspreis auf Grundlage historischer Transaktionen.




