Büros
ID B3044Provisionsfrei
Aktualisiert
Büroimmobilie - Berlin, Charlottenburg - B3044
Charlottenburg, 10707, Berlin, Berlin
34 € / m²
- Fläche363 - 843 m²
- VerfügbarkeitSofort
- Ausstattung
- Lage und Verkehrsanbindung
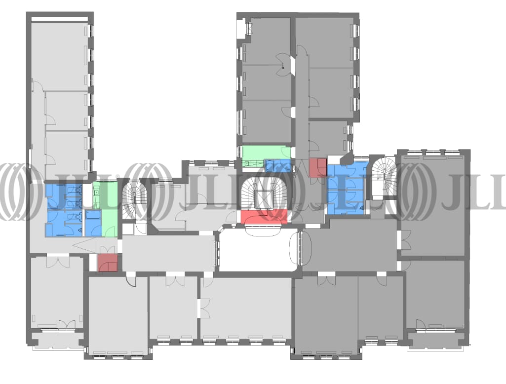
- Grundrisse
- Exposé herunterladen
- Ihr Kontakt
- Anfrage senden
Verfügbare Fläche
Lage und Verkehrsanbindung
Das Objekt befindet sich in prominenter Lage in unmittelbarer Nähe des Kurfürstendamms. Namhafte Einzelhandelsanbieter, gastronomische Einrichtungen sowie Anbieter des täglichen Bedarfs prägen das Umfeld.
- Flughafen, Berlin-Brandenburg , Fahrzeit: 45 min
- Bundesautobahn, A 100, Fahrzeit: 15 min
- Bundesautobahn, A 113, Fahrzeit: 20 min
- Hauptbahnhof, Berlin , Fahrzeit: 15 min
- U-Bahn, Uhlandstraße, Linie U1, Gehzeit: 10 min
Ihr Kontakt

Chiara Costa Jacinto
Ihr Kontakt
Marktinformationen
Mietmarkt
Charlottenburg, Berlin
Gew. Ø-Miete
34 € / m²
siehe 99 passende MietobjekteErfahren Sie mehr* Durchschnittspreis auf Grundlage historischer Transaktionen.



















